Tianyu Experimental Primary School | BAU – Brearley Architects & Urbanists | Suzhou, China
A New Approach to Educational Spaces in Suzhou
In the rapidly urbanizing periphery of a new district in Suzhou, BAU – Brearley Architects & Urbanists was invited to compete for the design of a combined kindergarten and primary school with 24 and 48 classes respectively. The result is the Tianyu Experimental Primary School—a cutting-edge educational complex that challenges traditional school design principles, transforming both classrooms and circulation spaces into interactive learning landscapes.
This project rethinks how architecture can foster curiosity, creativity, and collaboration in modern education.
Mixing Formal and Informal Learning
The BAU design begins with a fundamental question: what if every part of the school could become a learning space? Architecture softens the rigid boundaries between formal classrooms and informal transitional zones, creating an environment where learning occurs everywhere—from corridors to courtyards and even under the stairs.
Wide, winding internal corridors function as 'learning rays', replacing traditional halls with flexible spaces for group activities, exhibitions and unexpected discussions. These informal zones flow seamlessly into classrooms, encouraging students to collaborate and learn independently.
A Compact Site Reimagined
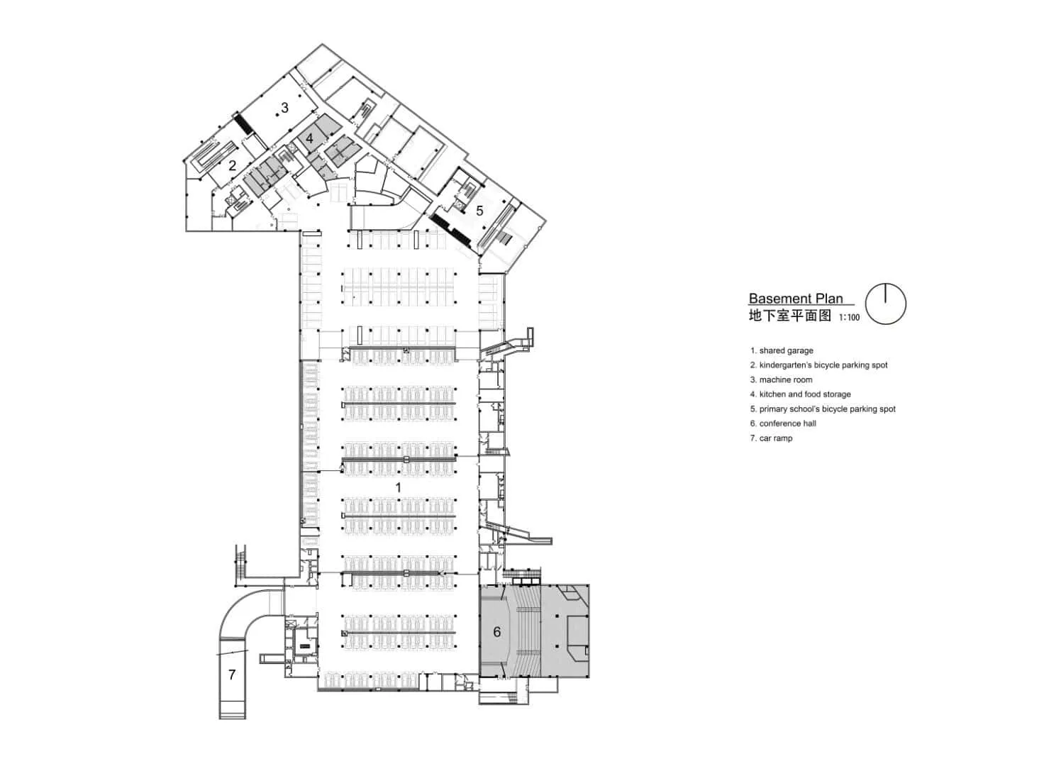
Unlike previous BAU projects where individual buildings were placed in open landscapes, this smaller and denser site required a reversal of figure and ground. Here, open spaces are carved out from a solid architectural mass, creating a composition reminiscent of a series of gardens, courtyards and terraces bounded by a continuous architectural line.
The project highlights key elements of open programming—sports areas, play zones and green rings—from the mass, leaving behind a continuous 'ray' of interconnected learning environments. This concept transforms the compact site into a dynamic topographical landscape of movement, light and discovery.
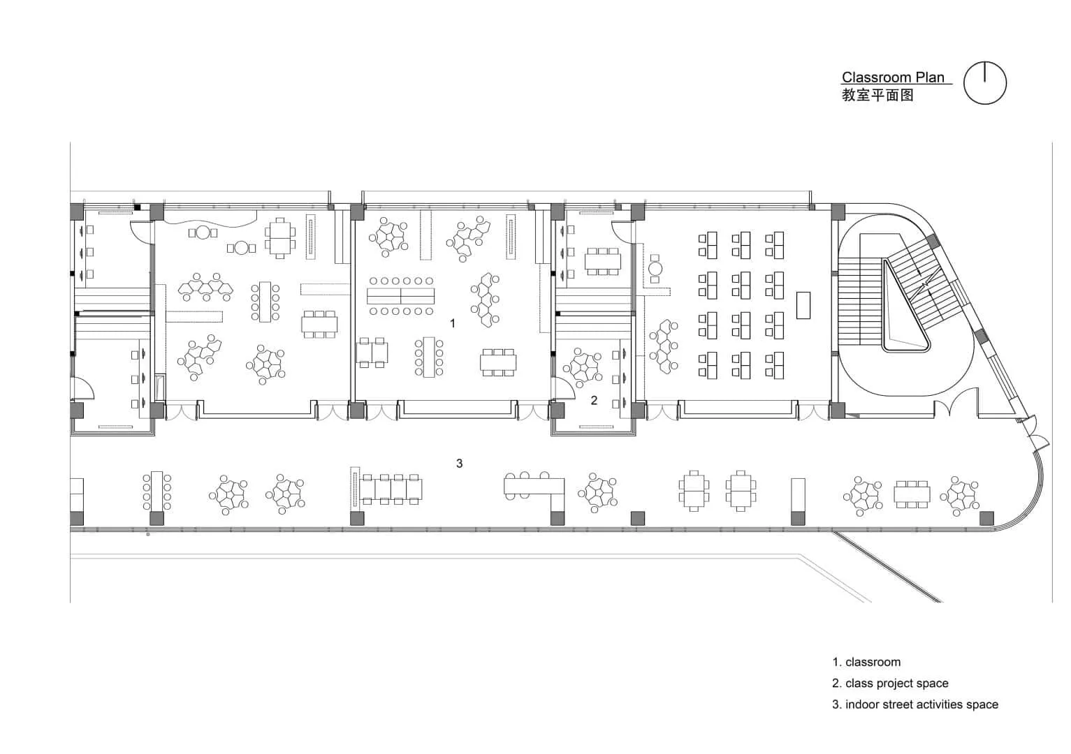
Classrooms as Flexible Foundations
Six sunlit 'normal rays' contain formal learning zones. Within each pair of classrooms, BAU introduces a glass room for small groups—a space that balances independence with supervision.
This dual system of structured classrooms within a flexible, interactive context encourages both focus and creativity. Teachers can guide groups without isolating them from the broader educational environment.
The contrast between the winding informal ray and linear classrooms—both spatially and materially, visually reflects the balance between play and structure that defines the school's educational philosophy.
Learning Through the Chinese Garden
Working with a specialist in classical Chinese gardens Craig Easton, BAU incorporated a subtle layer of local cultural geometry and symbolism. Through techniques such as frames, layers, scaling and wrapping, the project references historical Suzhou gardens—reinterpreting their poetic spatial qualities within a contemporary educational setting.
The result is a campus that appears deeply rooted in its context and forward-looking, integrating the sensory richness of traditional Chinese landscapes with the flexibility of modern pedagogical approaches.
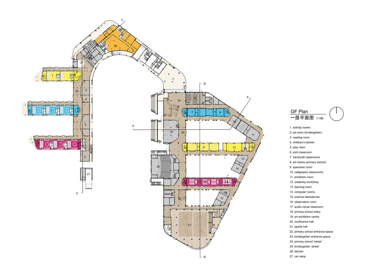
Kindergarten: Five Discovery Gardens
The kindergarten component emphasizes the true meaning of 'children's garden'. BAU designed five themed gardens, each stimulating different aspects of development:
-
🌿 Imagination Garden: A space for dreaming, making and storytelling.
-
🧗 Muscle Garden: For climbing, swinging, sliding and jumping—stimulating physical expression.
-
🌾 Nature Garden: A sensory landscape for digging, planting and exploring.
-
🛠️ Work Garden: A practical environment for cleaning, shoveling and organizing.
-
🌸 Sensory Garden: An immersive garden of scents, sounds, textures and tastes.
Together they form a pedagogical ecosystem supporting emotional, physical and intellectual growth.
Past, Present and Future
Tianyu Experimental Primary School demonstrates how ancient spatial models and progressive educational theories can coexist harmoniously. By combining cultural abstraction with contemporary flexibility, BAU created a prototype for future schools—one that transforms the architectural environment into an ever-evolving classroom.
This is not just a building for learning; it's a vital foundation for imagination, play and endless curiosity.
Photos © Courtesy of BAU – Brearley Architects & Urbanists
Photos © Courtesy of BAU – Brearley Architects & Urbanists
Photos © Courtesy of BAU – Brearley Architects & Urbanists
Photos © Courtesy of BAU – Brearley Architects & Urbanists
Photos © Courtesy of BAU – Brearley Architects & Urbanists
Photos © Courtesy of BAU – Brearley Architects & Urbanists
Photos © Courtesy of BAU – Brearley Architects & Urbanists
Photos © Courtesy of BAU – Brearley Architects & Urbanists
Photos © Courtesy of BAU – Brearley Architects & Urbanists
Photos © Courtesy of BAU – Brearley Architects & Urbanists
Photos © Courtesy of BAU – Brearley Architects & Urbanists
Photos © Courtesy of BAU – Brearley Architects & Urbanists
Photos © Courtesy of BAU – Brearley Architects & Urbanists
Photos © Courtesy of BAU – Brearley Architects & Urbanists
Photos © Courtesy of BAU – Brearley Architects & Urbanists
Photos © Courtesy of BAU – Brearley Architects & Urbanists
Photos © Courtesy of BAU – Brearley Architects & Urbanists
Photos © Courtesy of BAU – Brearley Architects & Urbanists
Photos © Courtesy of BAU – Brearley Architects & Urbanists
Photos © Courtesy of BAU – Brearley Architects & Urbanists
Photos © Courtesy of BAU – Brearley Architects & Urbanists
Photos © Courtesy of BAU – Brearley Architects & Urbanists
Photos © Courtesy of BAU – Brearley Architects & UrbanistsPlans










Need a renovation specialist?
Find verified professionals for any repair or construction job. Post your request and get offers from local experts.
You may also like
More articles:
Modern Collection of Pet Furniture for Happy Living
Complete Guide to Kitchen and Bathroom Countertops with Integrated Basins
Complete Checklist for Home Renovation
Modern Color Palette for Living Room
Complete Guide to Moving: How to Move a House with Minimal Stress
Modern Trend for Cozy Fireplace in Living Room 2024
Modern Outdoor Decoration Collection for 2024
Complete Guide to Home Repair