AVVENN品牌Time to Gather上海项目
项目: AVVENN 建筑师: Time to Gather 位置: 上海辛力路,中国 面积: 1356平方英尺 年份: 2023 摄影: 吴建元
Time to Gather的AVVENN品牌
在伟大的城市历史中,个人表达常常隐藏着温柔的情感。上海除了著名的建筑和繁华的区域外,还拥有不断变化的时尚与活力,持续丰富着城市的文化深度和内在结构。
AVVENN是一个多元化的设计师服装品牌,于2021年在上海创立。凭借将艺术美学与前沿设计理念结合的能力,它通过简约的方式传达出一致且舒适的状态。品牌的全新实体店回归上海,在这里空间成为讲述品牌故事的媒介。Time to Gather围绕服装原型——纸样展开设计,从多个角度诠释“先锋和谐”的品牌精神,涵盖外观、室内设计及细节。

1. 形式
先锋和谐
从外观来看,建筑设计脱离传统形式,重新定义为L形。视觉上对称的两侧入口大胆宣告品牌在冲突与和谐、尖锐与放松之间的立场,体现“先锋和谐”的特质。
“先锋”意味着独特与不同。天然石材作为主要建筑材料,确立了空间外墙的独特性。金属模块从外到内交织,视觉上强化通道体积感,引导人流同时营造进入空间的仪式感。手工做旧的石板与金属板材柔和了表面的坚硬感,唤起自然温暖与空间感受,传达品牌表达的“和谐”理念。
传统商业设计认为应占据空间每一部分。然而,让先锋成为“先锋”的是敢于偏离常规的勇气。在入口处释放特定物理空间,创造情感缓冲与过渡区域。浅灰色地砖由外向内延续,引导访客进入不同环境。
楼梯上金属扶手的弧形边缘传达出“纸样”的轻盈质感;入口处弯曲的石门框提取了“切割”轨迹;复杂的铰链结构表达出通过缝纫机“拉线”的动作。这些细微之处展现出品牌精神的具体探索。

2. 概念
创作尺度
“纸样”概念源自服装设计原型,象征无限的创作与精确测量。步入内部似置身未完成的服装图纸中。线条、形状、纹理和色彩表达设计创意。
延续外墙结构设计,室内布局对称。拱形屋顶与有序排列的板材构造带来裁剪自由感和纸样轻盈感。围绕金属结构10毫米宽的凹槽模仿服装缝制中的连接与拉链,光滑线条提示设计师绘制时的精准控制。光线通过缝隙投射,突出造型并强调“纸样”概念。
纹理是空间的情感。大面积白色区域消除了规律限制,提供更多想象自由。手工切割的砖墙如自然笔触般看似随意,但近距离观察时唤起细腻情感。每一件物品如同独立艺术品,为访客提供充足的欣赏空间。
银色钢材、天然斑驳的艺术涂料和米色石材的搭配通过材料对比带来细节诗意;粗犷与优雅共存,提供细腻感知。嵌入地面的金属纹理和线条再次呼应品牌质感。

3. 解读
自我表达的自由
从“纸样”到服装展示,设计叙事也隐喻空间的多样性与潜力。灵感源自缝纫机交织结构的中央区域,采用成对悬挂系统,可调节高度1200至2400毫米以适应品牌季节性系列需求。
自AVVENN创立以来,一直致力于打造一个永恒且无界的社区,融合不同文化于生活方式之中。当悬挂系统调至最大高度时,完全隐藏,将空间转变为多功能社交场所。这里实现品牌创意理念,促进与志同道合者和有趣人士的交流。
品牌设计解读不仅体现在外观,更在于细节。墙面衣架系统通过交织、连接与叠加,艺术性地再现缝纫过程中穿针引线的瞬间,仿佛见证布料转化为服装的过程。
试衣镜巧妙连接于衣物架上,可轻松移动至不同位置并调节角度,全面展示服装美感。350毫米高的弧形展示架完美预留鞋履、帽子及其他品牌配饰空间。个性化展示架根据每日需求灵活布置,丰富不同场景下的展示要求。
AVVENN是女性品牌。原始的方形柱体包裹金属板形成圆柱,柔化空间氛围。女性之美不仅在于柔软,更在于表面下的内在力量。三角形连接件以简洁锋利线条象征现代女性先锋的核心,体现力量与柔美的平衡。

4. 放松
轻松状态
前行探索或获取时,后方失去防御,接受放松舒适的当下。墙面不规则画作再次呼应“纸样”概念,装饰以生动金属线条,展现品牌对服装搭配的独特视角。原始沙发与圆润组合的边桌营造更舒适放松的休息区域。
收银台延续外墙框架色彩,并由天然石材环绕,面向展示区,便于识别与顾客服务。侧面设计衣架空间,最大化利用区域。
试衣间作为店内最私密的区域,体现最精细的设计。衣物挂架基于服装缝制中的“固定钉”原理;空间表面使用石材,展现自然纹理与暖色调,营造更放松氛围。考虑到石材可能刮伤访客或衣物,表面经精细抛光处理。这不仅保留材料天然美感,更彰显品牌终极目标——提供卓越消费者体验。

试衣间门关闭时呈现平面效果,如同未裁剪的纸样。以中央轴线为基准,门仿佛被巧妙从中切开,从二维外观过渡至三维实体。这种开启与关闭的互动不仅物理上改变空间,也隐喻消费者体验的演变。

AVVENN倡导的“先锋和谐”根植于品牌形象。正如服装不仅是保暖工具,更是内在情感与追求的直接表达,品牌空间作为物理呈现也应超越单一维度。它应创造一个充满创意与想象的精神世界,为消费者提供更多连接品牌温暖与内核的机会。
照明色彩搭配为品牌工作营造不同氛围,全面满足非标展览、艺术沙龙、交流与直播等需求。精心表达、多元文化与简洁呈现共同体现设计与生活的仪式感,进一步展现品牌深厚底蕴和匠心工艺。
-项目描述及图片由ZZ Media PR提供













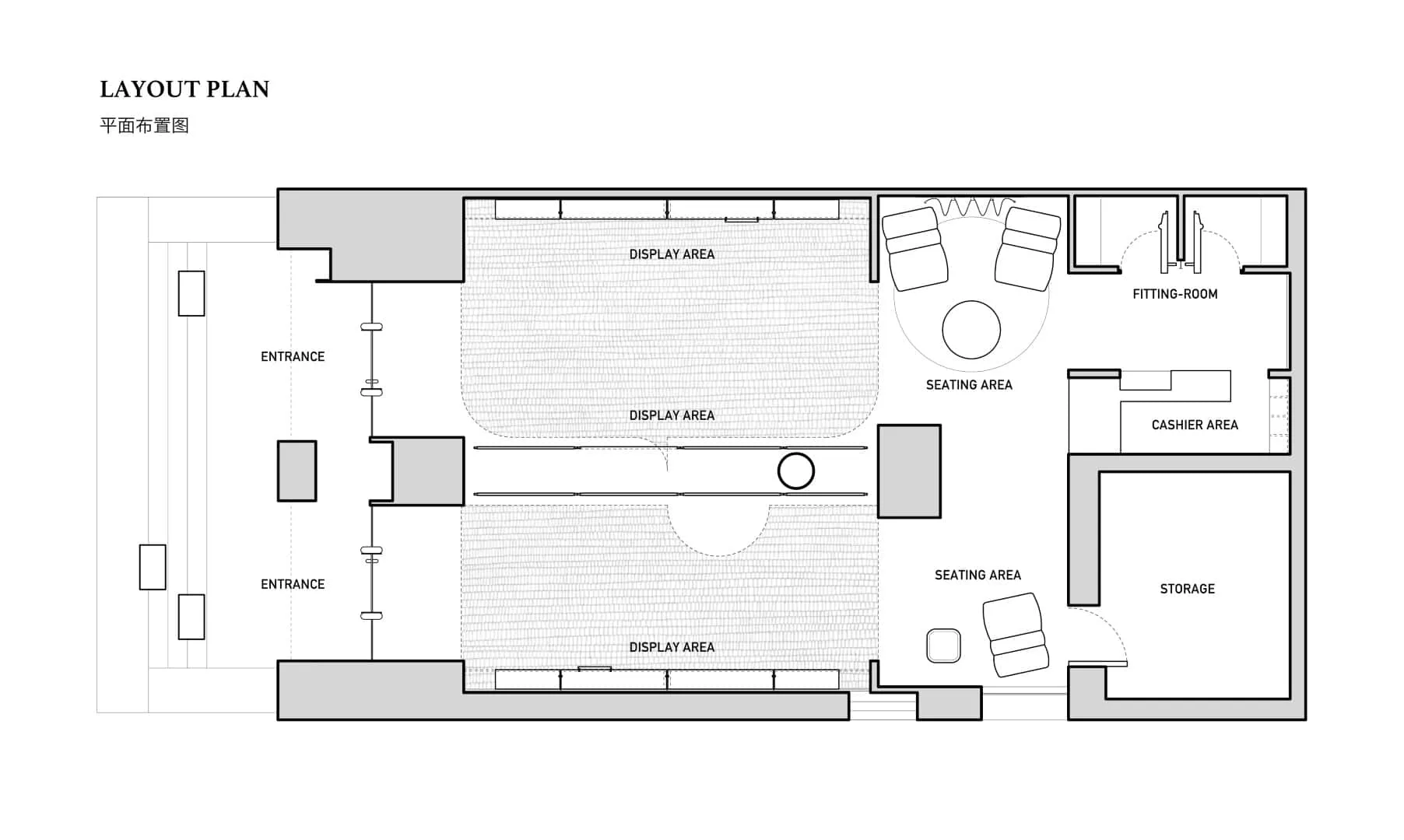
图纸



Need a renovation specialist?
Find verified professionals for any repair or construction job. Post your request and get offers from local experts.







