应避免的布局
有些布局幸运,有些则不太幸运,但要区分它们,你需要经验。设计师德米特里·西瓦克愿意与那些尚未拥有这些知识的人分享他的积累经验。
任何布局都可以变得可以接受。但在规划过程中,你可能会失去最初的想法和购买整个公寓的目的。建筑师德米特里·西瓦克收集了最流行的有问题的布局类型。
德米特里·西瓦克 建筑师 创始人基辅S&T建筑工作室,该工作室设计室内、建造房屋并陪伴项目直到最后一朵花。
窗户太少或过深的布局
有时建筑师仅为了美观而放置窗户。就像女孩嘴唇上的一个美丽斑点,一两个窗户作为小小的性感点缀。没有窗户的房子会更加美丽,但建筑师对居民很慷慨。对于整个公寓——两个窗户。

避免过于深且窗户少的布局。在这个例子中,公寓三分之二的空间将永远处于永恒的黑暗之中。人们在检查时并不总是注意到这一点。

在这个例子中,整个公寓只有三个窗户,其中一个必须照亮厨房-客厅。无论设计师多么努力地将客厅围绕电视——心灵的源泉布置,公寓仍将保持黑暗。

长阳台
建筑师的顽皮和不受控制的想象力给我们带来长长的窄阳台,像香肠一样。没有人知道如何处理一个宽度仅为一米、长5-10米的空间。如果你抱着希望将阳台连接并封窗,将其视为购房时的优势,那么下一点对你来说是城市外观破坏者。
越来越多的开发商在美丽至上压力下禁止改变建筑外观和封窗阳台。在购买时,人们只拥有公寓的所有权,而不拥有外观。这很难相信,所以我再写一遍——在许多新建筑中,不允许封窗阳台和更改窗户,外观不是你的财产。

在最先进的建筑中,报警系统布线网格被嵌入承重结构中,供喜欢在承重柱上开新门的人使用。
如果你对这个荒谬长且封窗的空间不知所措,那么之后可能不会产生任何想法。最好选择另一套公寓。阳台的时间是储存杂物的地方,去年忘记的酸菜可能以触手的形式向你伸出并试图说话,已经不可逆转地消失了。你将不得不美丽地生活。

如地铁车厢般宽的智能公寓
现在流行称由大公寓碎片拼接而成的小型公寓为智能公寓。你不仅能从尺寸上轻易识别它们,还能从主人耳朵上的面条看出营销的痕迹。
有时房间比地铁车厢还窄。面积小到不是每个人都拥有足够的空气度过冬季夜晚。
值得检查邻居之间墙壁的厚度。如果公寓间的隔墙很薄,而你不希望在早上从墙壁后面传来的性爱声中醒来并想加入其中,那么你将不得不进行隔音。
在完成隔音并损失约10厘米宽度后,你将失去在剩余的40厘米内从床到墙之间行走的能力。

弯曲墙或非直角墙
如果你之前处理过装修并确信弯曲墙属于你,可以跳过这一点。
如果房地产经纪人告诉你,你面对的是一个非常独特的布局,将最好支持未来的室内设计,那就像荷马一样行动。

没有任何东西比这种布局更糟糕。

好的设计可以挽救局势。从垃圾中取出的旧图纸可以帮助你创建动态的室内设计。但不要试图在这样的布局中放置金色柱子,或理性实用地使用每一平方米,这种布局对古典主义和对称性有爱。

矩形房间而不是弯曲房间——不是规则,而是一种建议。但直到3D打印机尚未大规模打印家具,你会在这样的布局中受苦。我一直相信儿童不应该站在角落里,尤其是在没有意义的尖锐角度如下面的例子。

下方是一个由高迪设计的住宅美丽布局。但我从未听到过居住者对这种公寓的热烈评价。
如果弯曲墙是你的有意识计划或建筑宣言的一部分,没人能阻止你——这只是建议。
巴塞罗那米拉之家。1905-1910年。

多层公寓
多层公寓就像敞篷车:每个人都想要并炫耀它们,但没人会再次购买同一辆车。
几乎所有来我们这里看顶层公寓的客户,除了室内装修外,还在建筑商之后改变了整个屋顶和露台的防水层。
你不能说爬楼梯不好,但我从未听过“每天爬100次到二楼俱乐部”的粉丝的热烈评价。

在美国,即使是私人住宅中也有一整个建筑运动要求强制单层布局。
如果你对公寓里的晚间舞会有一个浪漫的想象,即你穿着晚礼服从楼梯走下去到厨房-客厅,观众和无声乐队面前,那么不要听我的话——梦想必须实现。

如果你清楚自己在经历什么,可以同时生活在十层楼上,就像日本的这个例子一样。但最好避免这种情况。房子里没有楼梯。
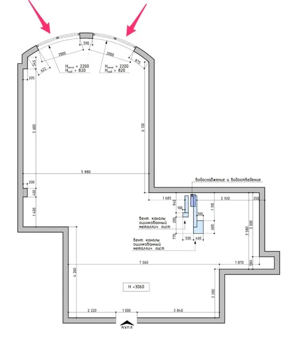
扇形房间
画一个圆并将其分为扇区——这是应该留在学生作品中最原始的技巧,但建筑师仍然认为没有两面平行墙的空间是幸运的发现。
在现实生活中,这种公寓中的一切看起来都歪斜和未完成。地板方向、家具布置、瓷砖切割——到处都有不匹配,与美丽和实用性的痛苦爱相冲突。这是我们不得不处理的最糟糕的布局。
人们在逐渐变窄到单一空间的地方根本感觉不舒适。

在设计和便利性方面,这种公寓没有优势,没人能数出瓷砖工切掉了多少手指。你想住在如下平面所示的空间吗?

这不是规则,就像上面的所有内容一样——因为人们可以在任何地方生活,所以有可能住在更糟糕的地方。
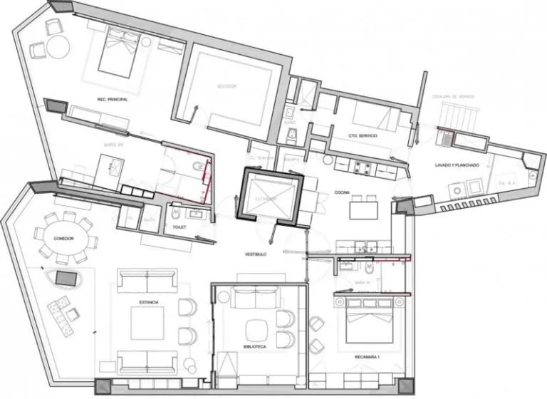
在极少数情况下,如果它是建筑宣言的一部分,比如著名梅尔尼科夫的私人住宅,这样的布局可以是自觉的。

尽管尊重该项目,我最不想住在空间7和8中。

我知道什么样的空间形式对谁来说是完美的。

还有很多细节需要关注:凸窗、抹灰后的天花板高度、弧形窗户、全景玻璃……买错空间的成本高于咨询。联系你当地的设计师!
Need a renovation specialist?
Find verified professionals for any repair or construction job. Post your request and get offers from local experts.







