如何选择小户型公寓:平面图与实用建议
如果您正在购买小户型公寓,即使是选择阶段也建议咨询专业人士——设计师尼基塔·祖布如是推荐。这样一来,您未来家中的不足之处就不会成为惊喜。
尼基塔·祖布坚信,小户型公寓的业主确实需要专业人士的帮助,因为并非每个人都能立即识别出公寓的缺陷,并理解哪些可以转化为优势,而哪些问题永远无法“治愈”。设计界早已识别出标准布局中最明显的“失误”。我们来具体看看。
尼基塔·祖布 - 设计师。2010年毕业于圣彼得堡理工大学与设计大学。除了大型项目,他也专注于非常小的空间,仔细规划每一平方厘米的空间。小户型公寓的明显优势:
优越的位置、无噪音和不错的邻居——这些是不可忽视的优势。但还有一些隐藏的优点,只有专业人士才能察觉。
1. 合理的几何结构
如果您不打算请设计师参与,那么在简单几何形状的公寓中,组织空间将更加容易,避免了创造性布置家具的乐趣。
2. 无承重隔墙,甚至更好——无墙体
对于设计师来说,最理想的情况是无需拆除任何东西,只需从头开始切割出最适合的布局。如果公寓中有两个水电接口且位置不同,则非常有帮助。
3. 天花板高度——3米或更高
这很简单——有空间增长。在天花板中构建所有储物空间,垂直利用空间——这是您的神圣职责。许多有趣的解决方案都可以实现!增加实用面积也是非常重要的一点。
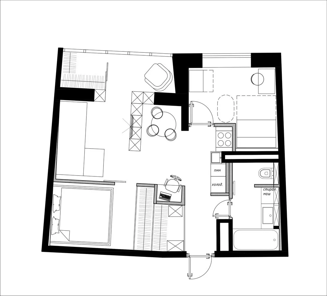
在该公寓中,天花板高度不足3米,但厨房高度已充分利用。如果再高半米,就能放置额外一排壁挂柜。4. 顶层公寓
许多人可能不同意我的看法,但我认为顶层是一种优势。首先,它提供了更多的规划自由度,其次,它能让你避免邻居家管道破裂的后果。上面没人会制造噪音。
细节决定成败
这些细节决定了您能否将公寓的不足之处转化为优势,或者是否必须接受一些无法修复的问题。
1. 公寓的深度
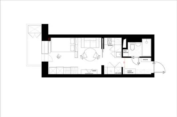
我特意选择了三个我们曾经处理过的公寓案例,以展示深度因素的重要性。在第一种方案(见图示)中,公寓呈长条状,空间可以轻松逻辑地划分为房间。
当公寓更短更宽时,布局变得更加“个性化”,许多解决方案可能让一些人觉得颇具争议。例如第二种方案中狭窄的厨房走廊,或第三种方案中狭长过道中的客厅。
第一种方案:公寓呈长条状,厨房和客厅沿纵向轴线布置。
第二种方案:在更宽的公寓中,必须找到妥协方案——让厨房贯通。
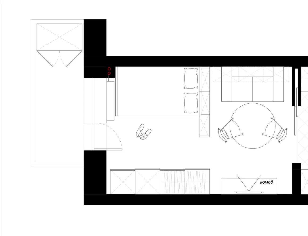
在第三种方案中,必须在客厅中开辟通道。2. 欧式双室(Euro-double)比单室更佳
欧式双室设计使得厨房与客厅的结合或分离变得容易。如果您想让单室更加舒适,就必须更换厨房和卧室的位置,而这种改动并不总能合法实施。
典型的欧式双室平面图。
解决欧式双室空间的一种方案。3. 窗户到墙角的距离
这看似是一个小细节,但在小空间中,如果从墙角到窗户/阳台门的距离小于50厘米,组织储物空间就会出现问题。常规的柜子无法放置在那里,更别说需要至少65厘米空间的衣柜了。因此请特别留意这一点。
良好方案:窗户到墙角的距离约为一米,允许在墙上放置大型柜子。
不良方案:窗户到墙角的距离小于50厘米,无法将柜子推至角落。4. 供暖管道布局
在环形分布中,供暖管道铺设在地板上并直接从散热器下方引出,而不是像常规立管一样穿过整栋建筑的所有楼层。这可以避免损失宝贵的厘米。
有时,由于角落中的供暖立管,家具无法紧贴墙面放置。在小公寓中,仅仅几厘米就可能决定是否能将家具完美拼合。这几厘米可能就是管道。
明显的缺点
这些中的一些可以转化为优势或至少被中和,但前提是您提前了解并准备应对。
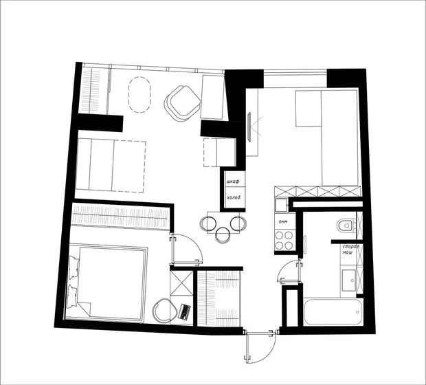
1. 公寓几何结构不合理
有一段时间,我认为公寓的配置越复杂,潜力就越大。但从过去几年的经验来看,我发现这样的公寓更多是麻烦而不是优势。我喜欢布局纯逻辑、易懂的房间,这样您就必须中和由几何结构错误引起的不便,并寻找更多妥协方案。
几何结构不合理的公寓示例。2. 存在承重构件和隔墙
如果您打算独自生活或与另一个人同住,这可能不会那么重要。但当您需要容纳三到四个人居住在一个单室公寓中时,即使在选择阶段也应尽量消除通往梦想家园路上的障碍。
看看这些障碍如何在平面图中体现。如果这个公寓中没有承重构件和通风管道的分散布局,空间就能更加合理地利用:将入口移至浴室,通过牺牲走廊空间扩大浴缸(其原设计位置),并使小房间/厨房入口更加便捷。
承重构件位置不佳的公寓示例。
妥协后的结果。
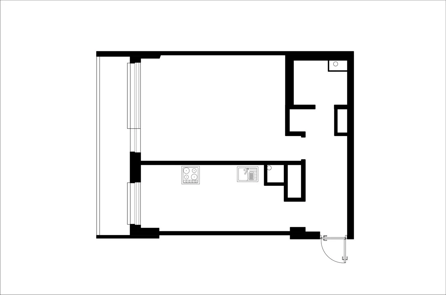
承重结构位置不佳的公寓家具布置另一种方案。3. 水电和通风管道位于公寓中央
在水电安排如此的公寓中,许多好的解决方案都无法应用!在大空间中这并不严重,但在小户型或单室公寓中,一个合理布置的通风管道可能会取消所有好的想法,并迫使您做出非常可疑的妥协。
以下是一个复杂水电布局的例子。在这个公寓中,为了绕过水电立管,在客厅中牺牲了一部分实用空间以创建一个小走廊。
水电位置不佳的示例。
由水电位置不佳导致的设计妥协示例。4. 燃气灶
虽然燃气使用能节省大量电力,但在复杂任务中,其存在可能成为重大障碍。
5. 一楼公寓
这又是一个有争议的问题,对一些人来说这样的公寓可能很方便。但想象一下,在您上方有4到20层楼,每层都有可能发生漏水…… 对我而言,这是反对一楼公寓的强有力理由!
6. 角落公寓
这会带来许多问题,尤其是当墙面没有窗户,而是额外的散热器导致家具布置不便时。另一个显著缺点可能是角落墙上的第二个窗户。
看起来:额外的窗户,角落公寓。美丽!但前提是您清楚地知道该把东西放在哪里。购买这种公寓的业主通常会在床、衣柜和电视的摆放上遇到困扰。
角落公寓布局方案。两个窗户充满光线,但布置家具并不容易。
角落公寓家具布置方案。
角落公寓家具布置方案。封面:尼基塔·祖布的设计项目。
Need a renovation specialist?
Find verified professionals for any repair or construction job. Post your request and get offers from local experts.







