如何将两居室公寓改造成三居室公寓:3种布局方案
通常,重新规划的可能性仅受不同房屋系列的建筑特点限制。今天,我们与专业建筑师一起探讨了将两居室公寓改造成三居室公寓的方案
两个房间是否足够满足有孩子的家庭舒适生活?通常,必须在父母的独立卧室或客厅之间做出选择。建筑师阿纳斯塔西娅·基谢列娃解释了如何通过巧妙的布局将两居室公寓改造成三居室公寓,而装修专家马克西姆·朱拉耶夫则对审批条件发表了看法。
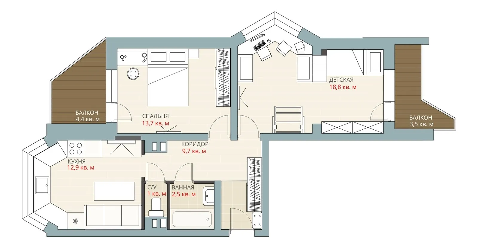
适用于儿童家庭的P-44T系列房屋中的两居室公寓
P-44T系列房屋中两居室公寓的标准布局包括宽敞的房间和阳台。主要缺点是,在错层式公寓中,主要墙体为承重墙。

标准布局
您可以通过利用厨房区域来在两居室公寓中创建额外的房间。用餐区与休息区(配有沙发和电视)结合在一起。为了节省空间,厨房柜体被放置在走廊中。
两个客厅——父母卧室和儿童房。房间可以容纳两个孩子:单人床足够,窗台可以改造成大型工作台。
专家意见:这种布局容易合法化,因为改动较小。您可以基于草图以信息方式获得批准。

PD-4系列两居室公寓中的客厅、卧室和儿童房
在标准布局中,几乎所有内墙都是承重墙。公寓有宽敞的走廊,但入口位置不允许将客厅移至那里。

标准布局
在大房间里设置儿童房:床和沙发(供客人使用的睡眠区)、书桌、衣柜以及体育角落均布置于此。第二个客厅被用作父母卧室。客厅被移至厨房:电视安装在下层厨房柜体上方,舒适的沙发则放在对面。
在浴室中改变了管道布置,以便为洗手台柜体和洗衣机腾出空间。厕所中还加装了一个小型洗手盆。
专家意见:此方案可以通过任何具备适当SRO许可的项目组织提交的装修项目获得批准。

在I-155系列房屋厨房区域的儿童房
在标准布局中,有一道承重墙将房间和浴室与其他空间隔开。主要优点是厨房和走廊较大。

标准布局
厨房被移至走廊中:这在走廊中创造了一个统一的空间,包括烹饪区、客厅和用餐区。为了划分区域,采用了透明门。厨房区域被改造成儿童房:有足够的空间放置所有必要的家具。
父母卧室的入口从客厅进入。在该处还增设了第二个浴室。然而,这需要在承重墙上移动开口。
专家意见:承重墙上的开口只能在项目作者或莫斯科住房与建筑研究院(GUP MoszhilNIIProject)的技术结论后才能进行。此外,还需要任何项目组织提交的装修项目以及在GUP MoszhilNIIProject进行的专家评审。

封面:安顿·谢瓦斯季亚诺夫的设计方案
Need a renovation specialist?
Find verified professionals for any repair or construction job. Post your request and get offers from local experts.







