Aumann日式餐厅由FUNUN LAB打造:Monoaware空间叙事
设计背景与哲学
位于北京商务区的Aumann日式餐厅由FUNUN LAB打造,不仅仅是一家餐厅。它是一种对monoaware(物哀)美学的空间诠释,一种对脆弱美丽的敏感与欣赏。设计灵感来源于圣地、寺庙、庭院和京都的传统艺术,创造了一个食物、空间与文化交织的沉浸式感官体验。
该项目基于Aumann的烹饪传统,采用关西烧烤技艺,并将其真实性融入空间叙事。客人不仅能够品尝到正宗日式料理的美味,还能感受到其背后文化精神。
舞台背景:光、反射与氛围
入口大厅营造出宁静的氛围,其中设有金色天花板结构,采用京都传统工匠工艺制作。灵感源自金阁寺的光辉,极简形式重新诠释了这座著名寺庙,呈现出一种超凡脱俗的轮廓。
在大厅对面是开放式厨房,客人可以观赏主厨在便携式烤炉上烹饪鳗鱼。火焰与香气直接与金色结构相连,通过感官建立起料理与空间体验之间的对话。
物理背景:京都的路径
空间布局模仿了京都复杂的街道,空间节奏从热闹的开放区域到温馨角落不断变化。走廊控制着人流,比例经过精心设计——有时狭窄以营造独处氛围,有时宽阔以便多人同行。这种节奏如同幽玄(yugen)美学中神秘的美,是日本美学的重要组成部分。
餐厅被竹庭院环绕,隔绝城市喧嚣,营造出一个独享的用餐世界。室内柔和照明和整面墙高的窗户打破了烹饪过程与自然环境的界限,增强了晚餐的情感体验。
心理背景:文化象征与趣味性
设计避免了传统日式建筑的直接再现。相反,垂直木质格栅、纸艺表面和个性化艺术品以现代语言传达了文化的精髓。
特色元素:
-
达摩雕像:五个可爱的娃娃堆叠成趣味的造型,打破正式氛围,增添活泼感。
-
私人包间中的个性化雕塑:描绘猫儿享受乡村节日的场景,将怀旧与幽默结合。
-
纸质元素:杜邦半透明屏风、植物背景和传统图案壁纸,营造出层次丰富的光影变化。
这些元素体现了monoaware,提醒客人珍惜转瞬即逝的美好时刻,并关注当下的感知。
以monoaware精神体验晚餐
Aumann日式餐厅最终实现了食物与空间之间的和谐对话。通过将京都的文化象征融入现代设计,FUNUN LAB打造了一家超越普通晚餐体验的餐厅。在这里,从煎鳗鱼到金色光线的每一个细节都反映着monoaware的精神,带来兼具文化与感官的用餐体验。
摄影师 © ICY CYWORKS
摄影师 © ICY CYWORKS
摄影师 © ICY CYWORKS
摄影师 © ICY CYWORKS
摄影师 © ICY CYWORKS
摄影师 © ICY CYWORKS
摄影师 © ICY CYWORKS
摄影师 © ICY CYWORKS
摄影师 © ICY CYWORKS
摄影师 © ICY CYWORKS
摄影师 © ICY CYWORKS
摄影师 © ICY CYWORKS
摄影师 © ICY CYWORKS
摄影师 © ICY CYWORKS
摄影师 © ICY CYWORKS
摄影师 © ICY CYWORKS
摄影师 © ICY CYWORKS
摄影师 © ICY CYWORKS
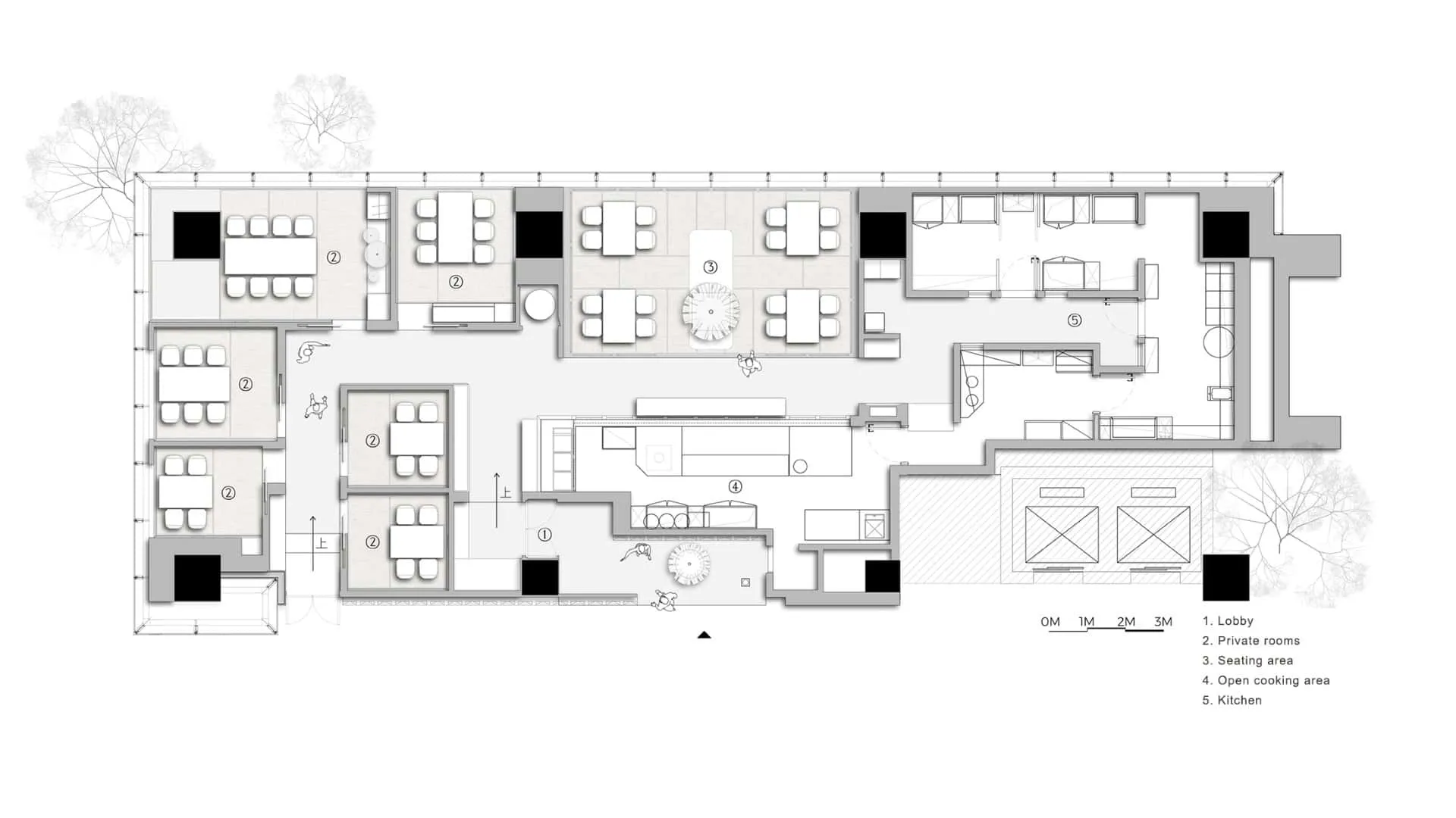
摄影师 © ICY CYWORKS平面图


Need a renovation specialist?
Find verified professionals for any repair or construction job. Post your request and get offers from local experts.







