安特里亚之家 / 23度设计转变 / 印度
安特里亚之家是位于海德拉巴附近的度假住宅,适合多代同堂的家庭。建在一个狭长而狭窄的地块上,位于宁静的郊区村庄中,该住宅结合了家庭动态、景观、气候和回忆,形成了一个统一的集成建筑。建筑不追求视觉冲击,而是致力于宁静的深度——深悬挑、纹理化的石墙、平静的水景以及平衡开合空间,使开放与私密达到和谐统一。最终呈现出一种精心构思的地区现代主义,其中当代空间逻辑与民族策略和材料对话。
摄影师 © Shamanta Patil场地策略与进入序列
入口设计渐进而隐秘。弯曲的道路柔和了场地尺度,并推迟了完全揭示的时刻,直到抵达。低矮墙体不遮挡视线,通过孔洞创造前景,增强了期待感。菩提树强化了入口区域,在其树荫下为聚会提供场所,之后再进入住宅。
住宅位于地块后方,使得草坪和庭院提供视觉与热防护。周围的水景环绕着建筑底部——冷却空气、驱赶害虫,并形成反射池,柔化地面与建筑之间的过渡。
摄影师 © Shamanta Patil
摄影师 © Shamanta Patil
摄影师 © Shamanta Patil空间构成与建筑
住宅通过三条线性石墙组织空间,定义方向、隐私和连接。在这条轴线上,平面布局沿走廊与露台展开。悬挑板(8-10英尺)在遮蔽玻璃免受强烈阳光的同时,也提供了上方的采光井。整体高度15英尺,中间板高10英尺,创造出多层空间体验。起居、餐厅与露台在连续屋顶下融为一体;滑动玻璃面板打破了与景观的边界。大部分卧室位于一层,一间顶层卧室可俯瞰花园。
摄影师 © Shamanta Patil
摄影师 © Shamanta Patil
摄影师 © Shamanta Patil材料与感官表达
克制的色调赋予清晰感和触觉体验:中性石灰统一体量;哈马姆石形成三个标志性墙体,赋予色彩与重量感;马克帕拉姆板岩覆盖室内外地板;再生柚木、天然木材边缘、黄麻和柚木地板增添温暖与记忆;黑色金属框架则提供清晰的图形边界。这些层次使住宅扎根于当地,同时具备灵活性、赤足行走和朴素优雅。
摄影师 © Shamanta Patil
摄影师 © Shamanta Patil
摄影师 © Shamanta Patil
摄影师 © Shamanta Patil
摄影师 © Shamanta Patil气候与效率
被动策略虽静默却高效。深悬挑和采光井减少了太阳辐射;层叠开口协调空气流通;周围水景冷却空气并调节基部微气候。长屋顶过滤雨水和阳光,季节性藤蔓提供额外遮荫。坚固且低维护的材料——石、板岩、柚木和石灰——优于机械系统,偏好被动式可持续性。
摄影师 © Shamanta Patil
摄影师 © Shamanta Patil
摄影师 © Shamanta Patil
摄影师 © Shamanta Patil生活氛围与情感深度
空间设计特意多样化——阴凉露台、庭院、内部空腔与裁剪轴线营造出反思性漫步。水景反射天花板和天空,将光线引入室内。白天空间向花园敞开,供交谈、休憩、用餐和游戏;夜晚柔和照明揭示石材结构与建筑轮廓,在存在感与宁静之间取得平衡。
摄影师 © Shamanta Patil
摄影师 © Shamanta Patil
摄影师 © Shamanta Patil
摄影师 © Shamanta Patil
摄影师 © Shamanta Patil
摄影师 © Shamanta Patil
摄影师 © Shamanta Patil
摄影师 © Shamanta Patil
摄影师 © Shamanta Patil
摄影师 © Shamanta Patil图纸
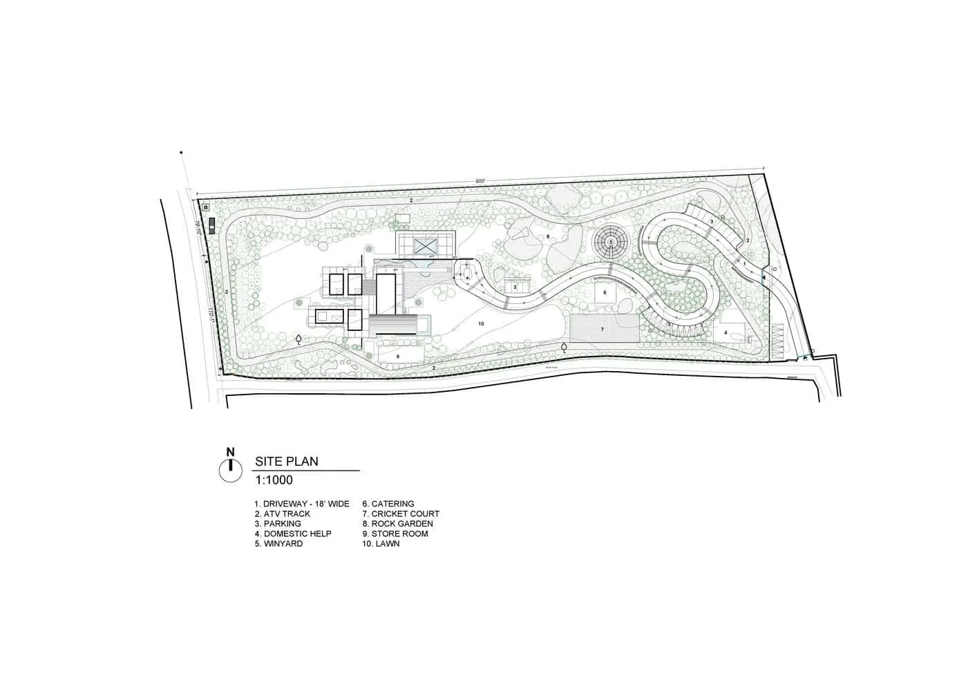
场地平面图 – 1:1000
场地平面图 – 1:1000一层平面图 – 1:200
一层平面图 – 1:200二层平面图 – 1:200
二层平面图 – 1:200剖面AA’和BB’ – 1:200
剖面AA’和BB’ – 1:200Need a renovation specialist?
Find verified professionals for any repair or construction job. Post your request and get offers from local experts.







