是否应该将阳台连接到室内:全部优缺点及真实案例
将阳台或露台连接到房间或厨房的原因可能各不相同:有些人需要额外的面积,而另一些人只是喜欢全景玻璃。然而,即使在明亮的计划中,现实往往变得严酷——并非所有东西都能连接,也并非所有方式都适用。我们与在线维修服务Rewedo的总经理Andrey Lyamin-Borodin一起探讨了所有“优点”和“缺点”。
Andrey Lyamin-Borodin,专家,Rewedo在线维修服务总经理。技术部分
从技术角度来看,有两个组成部分。首先——根据建筑类型和结构状况,是否可能将阳台或露台连接到室内,因为连接通常涉及拆除窗台板,而该窗台板可能承载荷载或参与固定阳台板——将其固定在原位。
第二个组成部分与供暖相关——当需要通过集中供暖对额外区域进行加热时,房屋的热循环(由墙体、窗户和屋顶组成)会被破坏。
在2012年之前,莫斯科住房检查部门允许根据相关条款将阳台连接到房间或厨房中。
由于此类联合带来的负面经验已经形成。直到2012年,莫斯科住房检查部门仍允许基于莫斯科市政府第508号法令中关于重新规划的条款,将阳台连接到房间或厨房。然而,在2012年通过并至今仍然有效的第840号法令中,此条款已经消失。
这发生在出现外墙面和板结冰、过度凝结水和霉菌问题之后,这些问题源于这些重新规划工作。这并不意味着现在完全禁止连接。但出现了重大限制。
设计:TS Design Studio。连接方式
1. 拆除窗台板后连接。 在2007年前建造的现浇和预制板房屋、部分砖混房屋中可行,在2007年后建造的大多数预制板房屋中禁止。
由于非承重外墙,现浇房屋是最容易实现这种类型的重新规划。在砖混房屋中,如果窗台板参与固定阳台板,则该选项可行;如果拆除窗台板可能造成阳台倒塌。
设计:Sergey Bakharev
2. 拆除窗台板及阳台门门槛和拱形上方的窗户。 在现浇和部分砖混房屋中可行,在预制板房屋中完全禁止。
3. 通过拆除侧梁扩大现有开口进行连接。 在现浇房屋中可行,砖混房屋中很少可行,在预制板房屋中完全禁止。在这种情况下,公寓必须至少拥有两个阳台或露台,并且其中一个必须保留梁,以便在火灾时为救援队提供庇护。
设计:Sergey Bakharev
要确定在您的房屋中可以进行哪些操作,您必须从项目作者处获取关于工作可行性和安全性的技术结论。您可以通过房屋的序列号识别项目作者。
如果房屋是按照个人项目建造且项目作者已不可用,则必须从莫斯科住房检查部的项目机构获取技术结论,该机构由莫斯科政府委托负责检查此类房屋。在一些住房检查部门,可以从私人项目组织获取技术结论,这更加迅速且便宜。
保持热循环:允许和禁止的内容
根据现行规定,不允许将冷区(如露台或阳台)完全连接到已加热区域。
然而,可以通过在公寓房间与连接区域之间安装玻璃门来连接露台或阳台,从而创建加热区和未加热区之间的边界。这些门可以是滑动式或铰链式,木制或塑料框架。
建筑项目组织——建筑物的设计者建议在其技术结论中使用双层玻璃单元以减少热量损失。当然,在供暖季节之外,这些门可以保持打开。
即使在现有限制下,仍然可以通过将额外的门纳入设计项目或围绕它们结构化整个内部空间来连接露台。
因此,即使在当前限制下,仍然可以通过将额外的门纳入设计项目或围绕它们结构化整个内部空间来连接露台。然而,实现这一想法并不经济实惠。
除了技术结论外,还需要一个包含荷载计算和热工计算的项目以获得批准。该项目还必须考虑连接区域所需的保温措施。如果技术结论中的条件之一是加固结构,那么实施将更加昂贵。
设计:Julia Atamanenko。保温:限制与禁止
也许在这一领域存在主要的“缺点”。热工计算要求对连接的露台和阳台进行显著保温,包括保温层和蒸汽屏障,由于“层”的厚度可能会减少其面积甚至高度。此外,可能对玻璃面积有限制以减少热量损失。
如果不遵循保温方案,凝结水形成和由此导致的霉菌生长的可能性很高,这可能会损坏装修。无论如何,在连接的露台中都会存在所谓的“冷桥”风险区域。
仅使用建筑材料对露台进行保温不足以维持室内温度。必须安装额外的热源。
禁止在连接的阳台或露台上安装热水地板——就像在整个公寓中一样。允许安装电热地板。
禁止使用集中供暖散热器加热露台或阳台——法律中明确禁止其迁移。首先,供暖系统可能无法承受增加的负荷,导致整栋建筑生活区域的温度降至法规以下。其次,加热的露台与相邻未加热区域之间的温差会负面影响结构刚度。
禁止在连接的阳台或露台上安装热水地板——就像在整个公寓中一样。允许安装电热地板。最佳的供暖解决方案是功率至少为1千瓦的对流器,能够快速加热冷空气。但为了这种舒适度,您将不得不支付更多费用——电费将显著增加。
还有一个细节:双层玻璃会减少邻近露台的房间自然采光。
*建议适用于莫斯科,其他地区的规定可能不同。
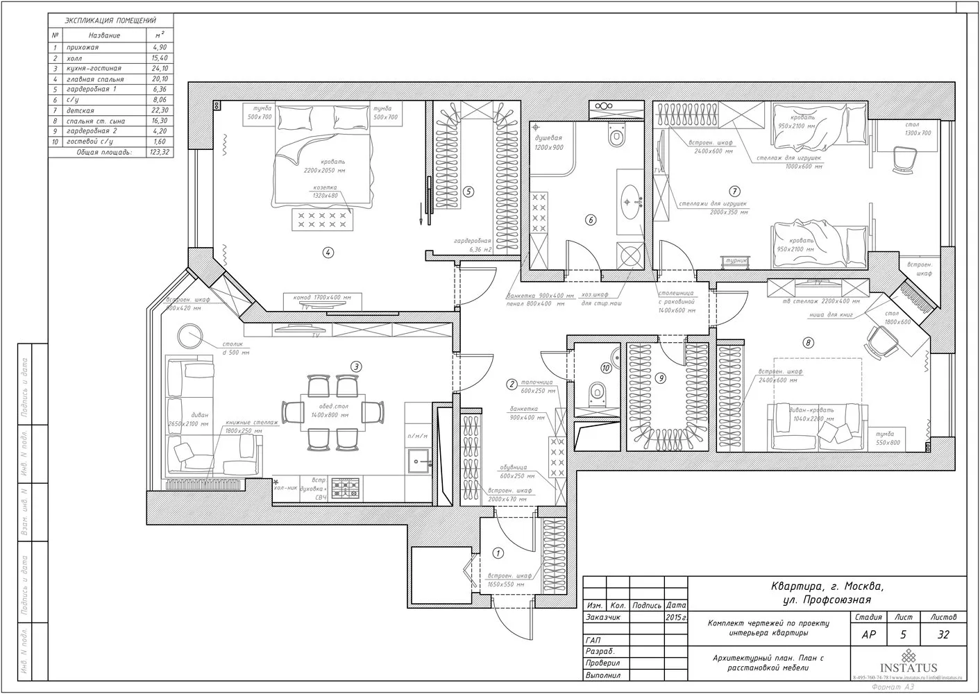
真实案例:Konkovo P-57系列公寓,配有两个露台建筑师Elena Uranova找到了一种将两个露台纳入加热循环并合理利用额外面积的方法。
Elena Ulanova,建筑师。INSTATUS Design Studio的艺术总监,认为创造让人舒适、宁静并与外界和谐共处的室内环境是她的任务。
挑战在于为一个大户型(父母和三个儿子)设计室内,因此功能性和合理利用可用面积是关键。在124平方米的公寓中,安排了厨房客厅、父母卧室带步入式衣柜、两个弟弟的儿童房、长子房间、共用步入式衣柜、客人浴室、浴室和过道。
设计项目:INSTATUS Studio
由于公寓面积限制,无法设置独立客厅,因此决定将阳台纳入“加热循环”并充分利用连接区域。
设计:INSTATUS
该公寓有一个不寻常的特点。每个阳台都可通过两个房间进入!我们分析了哪个房间连接阳台更为有利,并在项目中重新安排了另一个房间的通道,使其被公寓业主合理使用。
在厨房上,连接并保温后的阳台区域功能类似于客厅。它包括沙发、内置书架、咖啡桌和植物。从卧室进入阳台的通道安排在客厅附近,创建了一个宽敞的内置衣柜隔间。
设计:INSTATUS
设计:INSTATUS
设计:INSTATUS
在长子房间中,通往阳台的通道被改造成书架隔间靠近办公区,儿童房的连接阳台区域则组织为工作空间。长子可以关闭玻璃门并在其中做作业,而年幼的兄弟则在房间中玩耍。
设计:INSTATUS
设计:INSTATUS
封面设计:INSTATUS Studio
希望您的项目在我们网站上发布?请将室内照片发送至wow@inmyroom.ru
Need a renovation specialist?
Find verified professionals for any repair or construction job. Post your request and get offers from local experts.







