Familia de 4 personas vive en una casa de 36 m²: cómo acomodar a todos sin volverse loco
Lo principal no es la cantidad de metros cuadrados, sino su organización inteligente
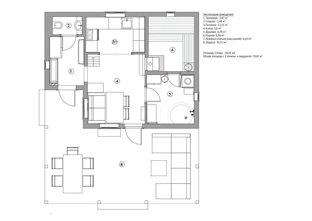
Al principio parece imposible: cuatro personas en una casa de solo 36 metros cuadrados en la finca. Pero la diseñadora de interiores Natalia Sorokina, con 17 años de experiencia profesional, demostró que es posible. «Cuando compramos la tierra, planeábamos construir una casa grande y hasta hicimos el cimiento. Pero la crisis interrumpió el proyecto», dice Natalia. Originalmente pensaban construir una pequeña casa tipo bungalow para dos personas, pero la vida trajo cambios: «tenemos hijos y ahora vivimos toda la familia de cuatro personas en esta acogedora casa pequeña».
Lo más importante del artículo:
- Una familia de cuatro personas se adapta cómodamente en una casa de 36 m² tipo bungalow;
- La sala principal combina sala de estar, comedor, cocina y dormitorio en el segundo piso;
- Cada centímetro se usa con funcionalidad: incluso la escalera sirve como estantería;
- Los lugares para dormir están organizados en tres niveles: sofá, cama y dormitorio en la parte superior sobre la cocina;
- Sistemas de almacenamiento integrados en todo el espacio: en el suelo, paredes, escalera e incluso debajo del lavadero;
- Después de cinco años de uso, a la familia les falta solo una habitación adicional.


Cómo colocar la cocina, sala de estar y dormitorio en una sola habitación
El espacio central de la casa es un verdadero transformador. «De la entrada directamente entramos al espacio principal que combina sala de estar, comedor, cocina e incluso un pequeño dormitorio en el segundo piso», explica la dueña de la casa.
El secreto está en usar el espacio vertical. «Originalmente los techos debían tener una altura de dos metros, pero pedí a los constructores que dejaran este espacio libre para usarlo como zona adicional de dormitorio sobre la cocina».
En la zona de cocina el techo está intencionadamente más bajo para crear un ambiente acogedor, y el espacio desocupado se convirtió en dormitorio. «Este es el techo que debería haber sido en todo el hogar», muestra Natalia la zona de cocina.







Escalera que no ocupa espacio
La gran solución es una escalera multifuncional. «Aquí tenemos la escalera que cumple dos funciones: escalera y estantería para almacenamiento», se enorgullece la diseñadora.
A muchos les preocupa la comodidad de esta escalera, pero Natalia despeja las dudas: «¿Cómo subo al segundo piso? A muchos les parece incómodo. En realidad es muy cómodo. Incluso cuando estaba embarazada con el vientre abultado, dormía en el segundo piso y me sentía muy cómoda. Ni siquiera me golpeaba la cabeza al subir».
Lugares de descanso para todos
En la pequeña casa se han organizado espacios de descanso para cuatro personas:
- Antesala sobre la cocina — dormitorio principal de los padres;
- Sofá reclinable en la zona de sala de estar;
- Cama infantil junto a la chimenea;
- Lugar adicional en la habitación de baño — para invitados en verano.
«El sofá se puede desplegar y convierte en otro espacio para dormir», explica la dueña de la casa. En la habitación de baño hay una característica especial: «Se desliza esta bancal. No lo doy vuelta, simplemente lo coloco. Y así se consigue otro espacio adicional para los invitados en verano».

Sistemas de almacenamiento en cada centímetro
En una casa pequeña, organizar el espacio de almacenamiento es crucial. Natalia lo planificó con cuidado:
- En el vestíbulo: «Aquí hay un pequeño armario-estantería que no es casualidad. Guarda el tablero eléctrico y estantes para almacenar cosas pequeñas, llaves».
- Almacenamiento oculto en el suelo: «Con un movimiento de la mano abro la escotilla y guardo aquí los zapatos, el punto Wi-Fi. Es muy conveniente».
- En la cocina: «Tengo cajones deslizables con las cosas útiles, lo que me permite evitar los armarios colgantes y concentrar todo abajo».
- En la antesala: «Aquí también tengo sistemas de almacenamiento a lo largo del techo inclinado. Este espacio se usa para guardar cajas y ropa estacional».
Cocina sin refrigerador
Al principio parece extraña la cocina. «Fíjense que aquí no hay refrigeradores, aunque en realidad sí están escondidos bajo la encimera. El refrigerador y el congelador están ocultos. Lo hice a propósito para tener más espacio de trabajo».
La compacta no impide funcionalidad: «Decidí tener dos hornos de microondas, eso me basta. Además, mi tetera no eléctrica no necesito más. Pero tengo una superficie de trabajo grande, y eso es muy útil».



Problemas del espacio reducido
Después de cinco años viviendo en la finca, la familia descubrió algunas desventajas del diseño original. «Durante los cinco años de uso, notamos algunos detalles de nuestra bungalow. Originalmente estaba diseñado para dos personas sin hijos. Ahora tenemos que adaptarnos con los niños».
El problema principal es la falta de privacidad: «Me hace falta una habitación más. Todo lo demás está bien y es maravilloso».
Hay que ajustar la mobiliario: «Aquí apareció una cama que ahora bloquea la chimenea. Cuando encendemos la estufa, empujamos la cama y usamos la chimenea como debe ser».
Vida en verano en la terraza
La terraza se convierte en refugio durante los días calurosos. «Cuando hace frío, estamos dentro de la casa, pero en verano pasamos casi todo el tiempo aquí. La terraza es grande para que todos tengan espacio. Hay sitio para el sofá y para juegos infantiles y arte».
Esto amplía el espacio de vivienda: «Cuando hace calor, los niños se bañan aquí, trasvasan agua y ponemos tazas para ellos. Todos están felices y contentos, pasamos mucho tiempo aquí».

Secretos del confort en una casa pequeña
- Usa la altura — antesalas y soluciones de dos niveles;
- Muebles multifuncionales — cada artículo debe servir para varios propósitos;
- Sistemas de almacenamiento ocultos — en el suelo, paredes y debajo de la escalera;
- Organización espacial estacional — en verano la vida se traslada a la terraza;
- Áreas transformables — muebles con ruedas, elementos reclinables.
Filosofía de una casa pequeña
Vivir en una finca con solo 36 metros cuadrados requiere un enfoque especial. Como muestra la experiencia de la familia Sorokina, lo más importante no es el número de metros cuadrados, sino su organización inteligente. Con un buen diseño incluso el espacio más pequeño puede albergar un descanso familiar completo.
Verdad es que después de cinco años de uso se notó que les falta una habitación adicional. Pero eso no hace que el experimento haya fracasado: la familia disfruta cómodamente de su acogedora bungalow, demostrando que el tamaño del espacio no es lo decisivo.
Need a renovation specialist?
Find verified professionals for any repair or construction job. Post your request and get offers from local experts.
You may also like

5 no tan obvios inconvenientes de las viviendas nuevas que el constructor no te dirá

No es una torre, ni una tubería: cómo el hogar de Mельников se prepara para sorprender a los invitados tras la restauración

Cómo elegir un conjunto de cocina: materiales, dimensiones y funcionalidad

Escenas de cocina en el cine soviético: qué nos contaban sobre la vida real
Más artículos:
5 no tan obvios inconvenientes de las viviendas nuevas que el constructor no te dirá
No es una torre, ni una tubería: cómo el hogar de Mельников se prepara para sorprender a los invitados tras la restauración
Cómo elegir un conjunto de cocina: materiales, dimensiones y funcionalidad
Escenas de cocina en el cine soviético: qué nos contaban sobre la vida real
«Подкова удачи»: secretos del hogar de Narcomfin
Sillas para casa y jardín: 10 tendencias destacadas
Cómo se decoró con éxito una cocina luminosa de 9 m² en estalinca
«Дом-сороконожка» en la calle Bеговая: cómo el edificio se paró sobre sus patas