How a Micro-Kitchen Was Transformed into a Stylish and Functional Space
Our heroine shares her experience of transforming a compact area into a cozy corner with a unique character
After two years of life in the countryside, Anna, her husband Nikita, and their four-year-old daughter Agata returned to the city, choosing an apartment in the new residential complex «Locomotive» in Barnaul.
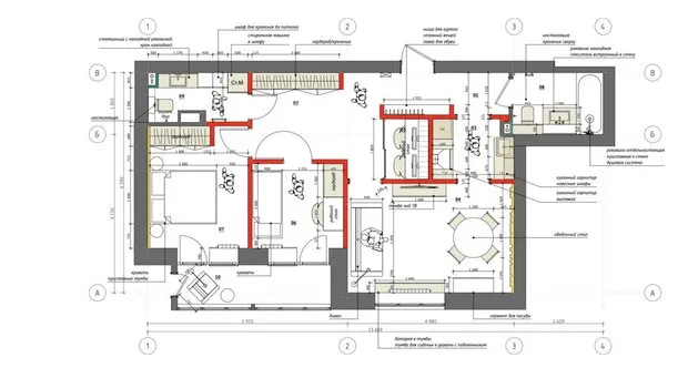
Spacious entrances, a small number of apartments per floor, and 3.1-meter-high ceilings reminded Anna of the atmosphere of old Stalin-era buildings where she had lived before. The 70 sqm apartment's kitchen became a model of functional and stylish space.
Anna, the apartment's homeowner and translator, editorThe apartment came without finishing, so the renovation started with rough work: wall leveling, floor laying, and utility installation. To create a thought-out and convenient layout, Anna consulted with an interior designer. Together, they decided to abandon the popular concept of a kitchen-living room and divide these zones.

"Our kitchen had to be compact and utilitarian, without unnecessary details. We spend most of our time in the living room around a round table, and the kitchen serves its purpose without excess,"— Anna explains.


The kitchen cabinet was moved from the family's country house. It was made of ash wood and had served for many years, but it had to be adapted for the new space. It cost about 50,000 rubles to rework the elements and add a pull-out drawer.

The facades were repainted in turquoise, which caused debates in the family. Nikita was against this decision, but in the end, this shade became the calling card of the interior. Turquoise added life to the space and looks great with ceiling lights and a vintage vase-bottle.
Pay attention to the video:
An additional cozy touch is the round dining table in the living room, which serves as an alternative to the traditional dining area on the kitchen side.

Living plants refresh the interior, especially in cold seasons.
Need a renovation specialist?
Find verified professionals for any repair or construction job. Post your request and get offers from local experts.
You may also like
More articles:
Before and After: How We Refreshed a 'Worn-Out' Kitchen
10 Iconic Residential Complexes That Transformed Cities Worldwide
7 Design Ideas We Saw in a Unique Apartment
Stunning Light Living Room with Red Accents
Before and After: How a 5 sq. m. Kitchen in a Khrushchyovka Became a Functional Space
3.5 sq m Bathroom with Bold Solutions and Thoughtful Functionality
6 Interesting Storage Systems Used by a Designer in Her Apartment
How a 14 sqm Kitchen Created a Cozy Space for the Whole Family