在“板楼”中进行装修,专业团队为您解决难题
在板楼中翻新两居室公寓往往因承重墙的存在而变得复杂,但例如1-55系列的房屋则没有这个问题。建筑师阿纳斯塔西娅·基谢列娃解释了如何在两居室公寓中舒适生活,专家马克西姆·朱拉耶夫则对审批细节发表了看法。
快速信息
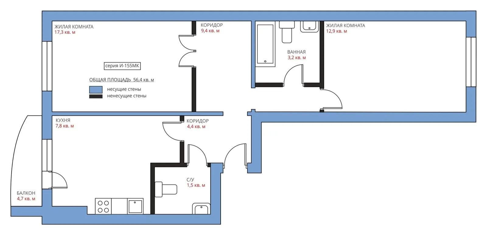
1-55系列的板楼同样非常适合翻新。两个卫生间和一个宽敞的走廊——这里有着充足的活动空间。两居室公寓的主要缺点是厨房形状不规则,有很多突出部分。
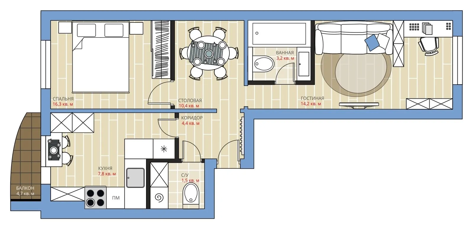
典型布局方案一:适合在家时间较少的人
对于工作繁忙、很少回家的单身人士或年轻家庭而言,布局的关键在于便利性和易用性。储物空间通过内置衣柜和步入式衣帽间实现——不使用开放式置物架。安装了一个紧凑型厨房橱柜,配有双灶炉、冰箱、水槽和洗碗机。洗衣机所在的洗衣房被安排在小卫生间内,卫生间与卧室合并为一个私人区域。
专家意见:通过任何具备相应SRO(自我监管组织)认证的项目机构提交翻新方案和工程结论即可获得批准。
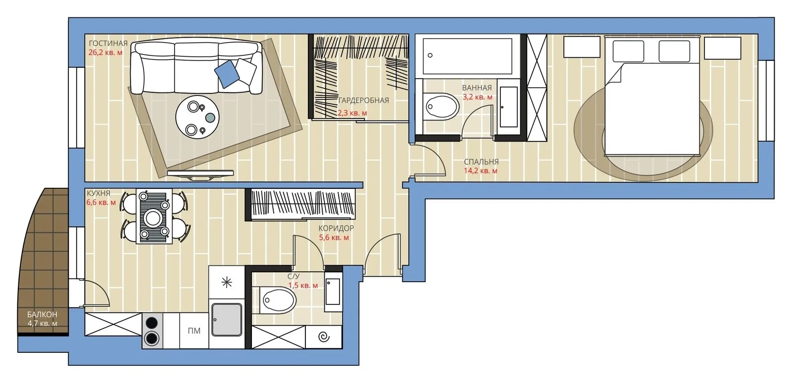
方案二:适合喜欢招待客人的主人厨房安装了大容量橱柜,内置电器和洗碗机隔层。上层橱柜可做到顶储物,用于存放不常使用的物品。窗台边设置一个小型吧台,可用于快速早餐。对于家庭聚餐和朋友晚宴,利用原走廊空间设置了独立的餐厅。浴室旁的客厅分为两个区域:一个起居区和一个为主人准备的手工艺角落。通过开放置物架实现区域分隔。
专家意见:仅调整内部非承重墙位置的改动很容易获得批准。需要提交翻新方案及任何具备相应SRO认证的项目机构出具的技术结论。
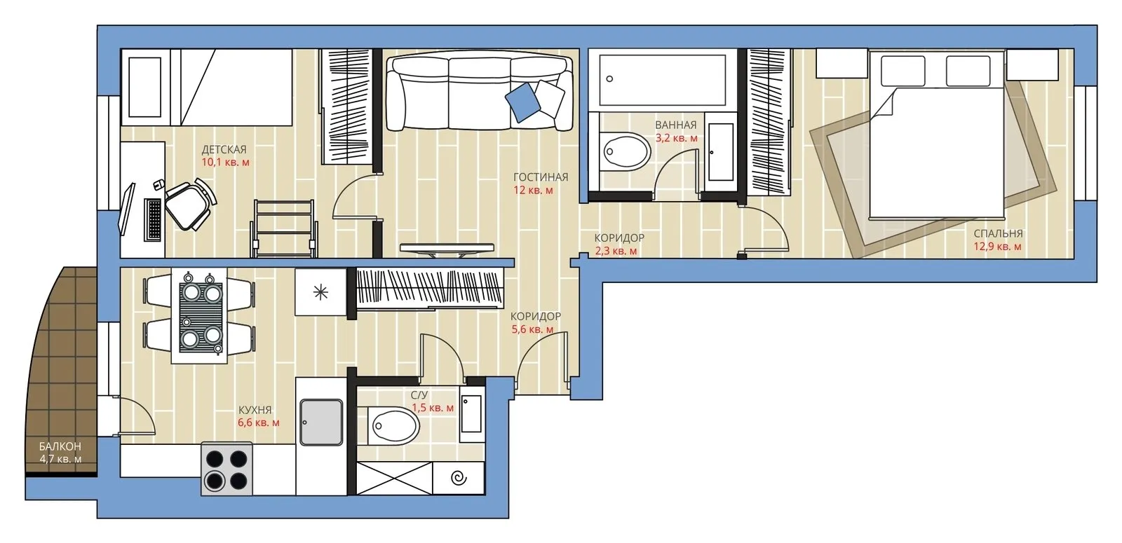
方案三:适合有孩子的家庭在两居室公寓中居住的有孩子的家庭面临的主要挑战是:如何安排两个卧室并保留客厅。我们推荐一种“最小损失”的翻新方案:通过缩小客厅扩大了走廊,这里放置了沙发和电视。剩余空间被用作一个紧凑但实用的儿童房。厨房安装了传统的角落橱柜和餐桌。走廊空间也通过缩减厨房面积得到了扩大,为衣柜腾出了空间。
专家意见:通过任何具备相应SRO认证的项目机构提交翻新方案和工程结论即可获得批准。

封面:由 Marina Sarkisyan 设计
阅读更多:
— 如何选择小户型公寓:布局+技巧
— 板楼中三种厨房布局方案
— 典型“板楼”中一居室公寓的三种布局变体
Need a renovation specialist?
Find verified professionals for any repair or construction job. Post your request and get offers from local experts.







