5种智能小厨房布局选择
当您只有不到5平方米的可用空间时,需要跳出固有思维模式,或者至少要对每一寸实用面积都格外用心。今天我们与设计师奥尔加·邦达尔一起探讨了在典型赫鲁晓夫式建筑的一居室公寓中设置小型厨房的5种方案。
奥尔加·邦达尔 设计师 她的目标是帮助每位客户打造一个构思周全、功能实用且温馨舒适的居住空间。初始布局:工作室厨房,典型I-515建筑
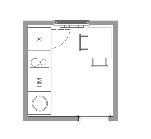
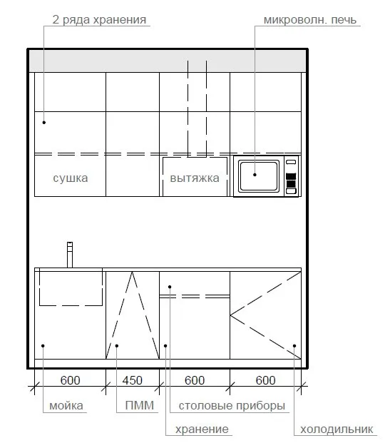
方案一:线性布置
任务:放置必要的电器设备(水槽、炉灶、冰箱、洗碗机、微波炉);提供储物空间;为可折叠供客人使用的餐桌腾出位置。
解决方案:一个不错的选择是将电器设备线性排列。为了节省空间并确保所需功能,建议使用双灶炉、台面下的内置冰箱以及窄型内置洗碗机(宽450毫米)。可以不设烤箱柜,改为增加储物空间。
为了最大化此布局的功能性,我建议充分利用所有可用高度,让上层橱柜直达天花板。内置抽油烟机的高度假设为使用电炉的情况。对于燃气炉,从台面到抽油烟机的距离应为750毫米。
适用人群:不常做饭或很少做饭的单身男性或女性。


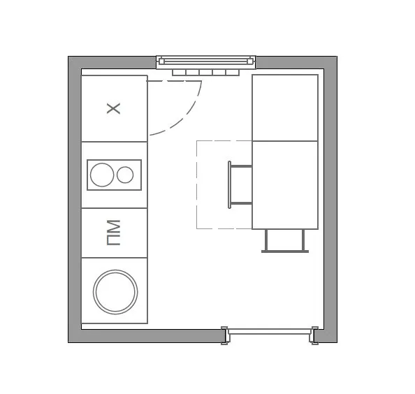
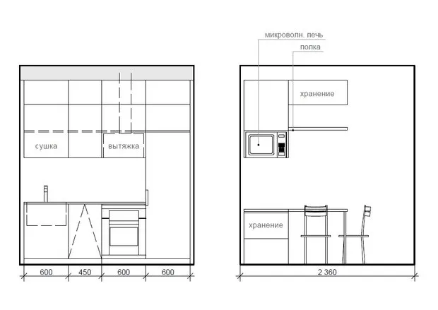
方案二:双排布置任务:放置必要的电器设备(水槽、炉灶、全尺寸冰箱、烤箱、洗碗机、微波炉);提供储物空间和供客人使用的可折叠餐桌。
解决方案:将电器设备以面对面的双排配置排列。左侧放置水槽、洗碗机、炉灶、烤箱和全尺寸冰箱;设置高至天花板的上层橱柜。对面则是一个多功能模块:储物、一张可供两人使用的可折叠餐桌以及工作台面。在其上方设置内置微波炉和储物空间的柜子。
适用人群:几乎适用于所有人群,适合夫妻、单身人士或有孩子的家庭。


方案三:双排布置(带固定三人餐桌)任务:放置必要的电器设备(水槽、炉灶、全尺寸冰箱、烤箱、洗碗机、微波炉)、储物空间和三人餐桌。
解决方案:在这种情况下,我们将主要电器设备线性布置,冰箱则单独放置在三人餐桌对面。
适用人群:有孩子的家庭。

方案四:角落布置任务:放置必要的电器设备(水槽、炉灶、全尺寸冰箱、烤箱、洗碗机、微波炉);组织储物空间;提供餐桌。
解决方案:主要电器设备呈“G”字形布置。冰箱单独放在水槽对面。在此变体中,关键角色由角落元素(长度1200毫米)扮演。为水槽分配一个600x600毫米的柜子,使角落元素能完全用于储物。餐桌可以是固定式或折叠式的,也可折叠收纳。椅子也可以折叠或滑入桌子下方。
适用人群:有孩子或夫妻的家庭。

方案五:最大功能性布局任务:放置必要的电器设备(水槽、炉灶、全尺寸冰箱、烤箱、洗碗机、微波炉);提供大量储物空间;组织大的工作台面。
解决方案:这种厨房布局的前提是天花板高度足够(至少与低端厨房柜子持平)。在这种情况下,厨房设备可以呈“G”字形布置,从而实现大量储物空间。同时不要忘记在台面或家具中留出通风口,用于散热器。
适用人群:有孩子或夫妻的家庭,其中主妇热爱烹饪并在厨房度过大量时间。


Need a renovation specialist?
Find verified professionals for any repair or construction job. Post your request and get offers from local experts.







