三种适合不同居民类型的公寓布局方案
公寓式住宅是年轻家庭或租赁住房最受欢迎的选择之一。根据房间功能的不同,布局也会发生变化。今天,建筑师阿纳斯塔西娅·基谢列娃提出了基于IP-46S住宅系列的三种公寓设计变体,而翻新专家马克西姆·朱拉耶夫则对审批条件发表了评论。
简要信息:IP-46S住宅系列
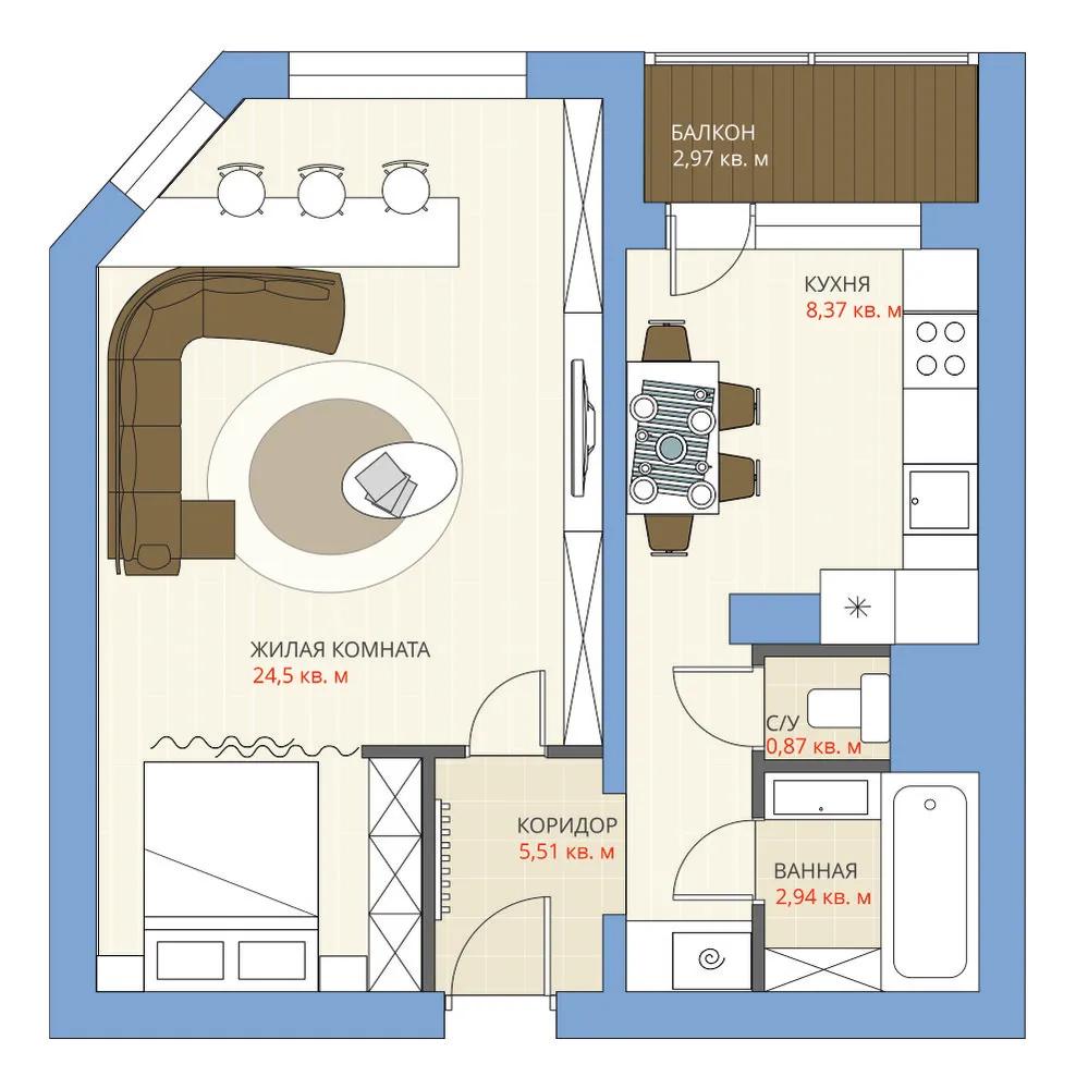
IP-46S住宅系列中的公寓式住宅典型布局非常适合居住:它包括步入式衣橱、独立卫生间和宽敞的房间。主要缺点是厨房与房间之间的承重墙。
1. 出租型这种变体适用于出租公寓:例如,供两名学生居住。为了降低翻新成本,他们选择了较小的改造方案。客厅中设置了两个睡眠区,通过书架、大桌子、橱柜和电视进行分隔。走廊中保留了衣柜,并在浴室旁边安装了另一个储物系统。厨房中设置了小型橱柜和四人餐桌,使每个人都能舒适地与朋友一起用餐。
专家意见:由于改动较小,这种布局容易合法化。可以基于草图在通知程序下获得审批。
2. 适合喜欢招待客人的居住者对于夫妻家庭,凹室中设置了合适的睡眠区——为此拆除了衣柜并移动了走廊中的隔断。主要储物空间设置在客厅区域。房间内安装了大型角落沙发和酒吧柜台,用于招待客人。浴室旁边设计了一个洗衣机柜。厨房中安装了带便捷工作三角形和桌子的角形橱柜。
专家意见:这种变体可以基于任何具备适当SRO许可的项目机构提供的翻新项目获得审批。
3. 适合单身男士为设置合适的睡眠空间,将凹室调整以容纳衣柜。客厅中使用了最少的家具。厨房入口从客厅开始设计:这种解决方案允许通过利用走廊扩大浴缸。这里安装了大型角落浴缸、宽洗手台、马桶和带有洗衣机和烘干机的实用柜。厨房中选择了小型线性橱柜,并延续至酒吧柜台窗台。
专家意见:承重墙上的开口只能在获得住宅项目作者或莫斯科住宅与建筑研究所(MoszhilNIIProject GUP)的技术结论后进行。此外,还需任何项目机构提供的翻新项目及MoszhilNIIProject GUP的专家评审。

封面设计:尼基塔·祖巴
Need a renovation specialist?
Find verified professionals for any repair or construction job. Post your request and get offers from local experts.







