Avant et après : comment styliser une petite studio de 28 m² dans un immeuble en panneau
Sur une surface modeste, tout a été prévu pour un logement confortable
La cliente est une jeune femme qui vit à l’étranger. Elle vient souvent à Saint-Pétersbourg pour son travail et pour rencontrer ses amis et sa famille. L’designer Maria Kachkina a reçu la mission de créer une atmosphère chaleureuse dans cet espace restreint, rappelant les intérieurs européens, libres de surcharge et dépourvus d’opinions extérieures. Il était important d'obtenir un sentiment de légèreté et d’air, afin que, lorsqu’on entre dans l’appartement, on ressente la chaleur et l’accueil plutôt qu'une ambiance de chambre d’hôtel.
Lieu : ville de Saint-Pétersbourg
Surface : 28 m²
Hauteur des plafonds : 2,65 m
Nombre de pièces : 1
Salle de bain : 1
Budget : 3 millions 300 mille roubles
Design : Maria Kachkina
Photos : Kristina Pleer
Appartement avant rénovationAvant la rénovation, il s'agissait d'un appartement ordinaire avec un finition type à faible budget, qui ne se distinguait par rien de remarquable. Il fallait mettre à jour la décoration et l’équipement pour rendre l’intérieur plus fonctionnel et confortable pour vivre. L’appartement souffrait d’une mauvaise isolation acoustique, donc une partie du budget a été consacrée à l’isolation phonique.
Photo de la cuisine avant rénovation
Photo de la cuisine avant rénovation
Photo de la chambre avant rénovation
Photo de la chambre avant rénovation
Photo du hall d'entrée avant rénovation
Photo du balcon avant rénovation
Photo de la salle de bain avant rénovation
Photo de la salle de bain avant rénovation
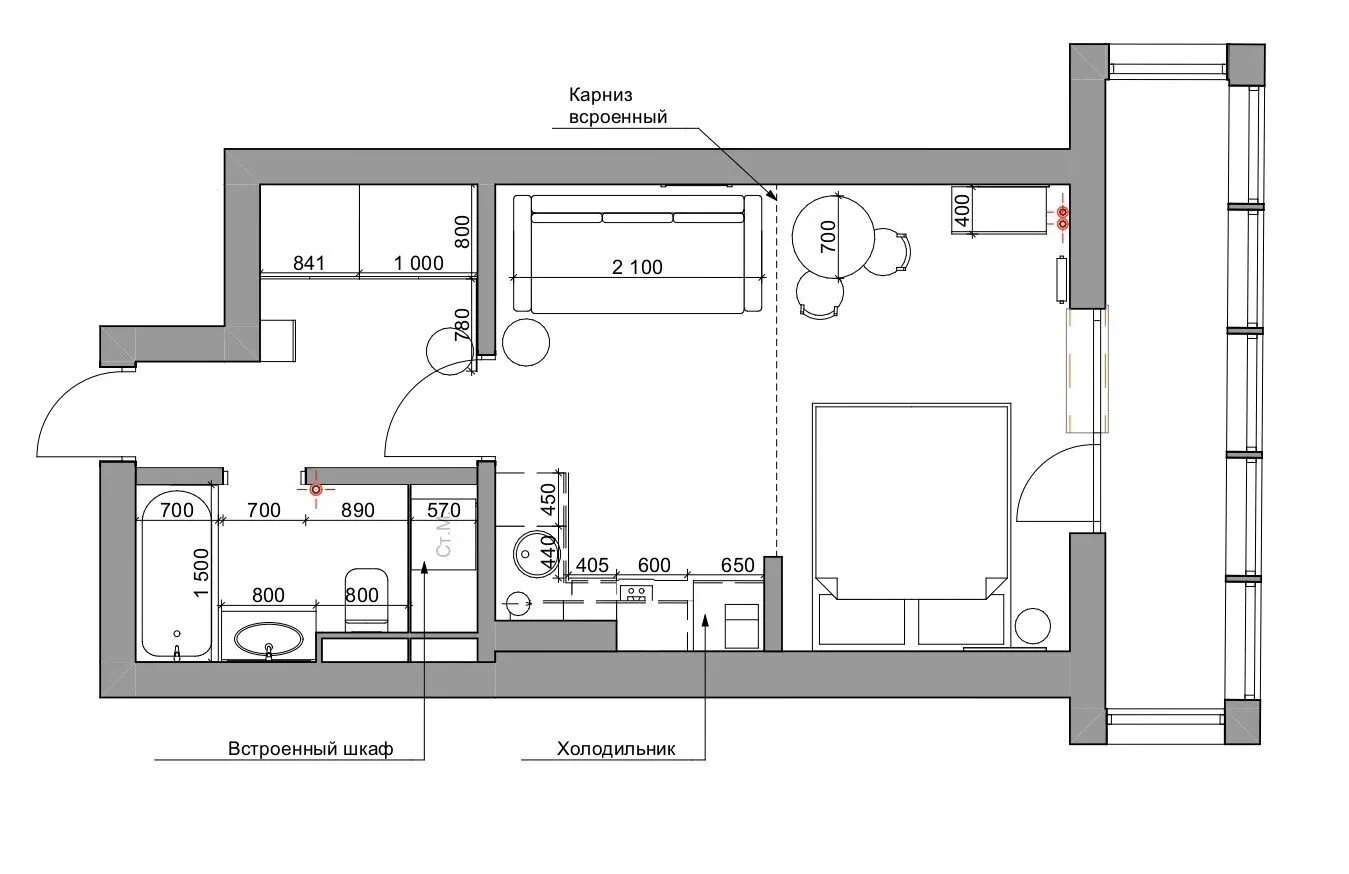
À propos de la disposition
Au début du projet, l’appartement avait une disposition typique fournie par le promoteur. La cloison entre la cuisine et la chambre a été démontée afin de créer un espace plus ouvert et lumineux, tandis que la salle de bain a été fusionnée pour améliorer sa fonctionnalité. La chambre a été séparée de la zone commune par un rideau en verre. Grâce à ces changements, l'organisation interne de l’appartement a été considérablement améliorée, ce qui le rend plus pratique pour la vie quotidienne.

À propos de la cuisine
La cuisine a été conçue en tenant compte des besoins de la cliente. Premièrement, comme l’hôtesse est grande, le plan de travail a été installé plus haut que le niveau standard. Bien que l’appartement ne soit pas destiné à un usage permanent, la cuisine a été équipée de tout ce qui est nécessaire. Elle comprend un petit réfrigérateur intégré, une plaque de cuisson indépendante – ce qui était également demandé par l’hôtesse, un four à micro-ondes et un lave-vaisselle.



À propos de la chambre-salon
Dans la pièce, il y avait un problème urgent concernant le zonage de l’espace : il fallait conserver la lumière et l’air tout en séparant la chambre de la cuisine. Pour cela, une cloison en verre a été installée divisant ces deux zones. Elle laisse passer la lumière, ce qui permet de garder l’espace lumineux et ouvert. En conséquence, on obtient une pièce avec des zones clairement définies et des frontières visuelles, ce qui rend celle-ci fonctionnelle et confortable en même temps.


Le mobilier a été soigneusement sélectionné selon les dimensions afin d'utiliser l’espace au maximum. Une trouvaille remarquable : un lit avec un sommier souple et des dimensions extérieures de 1680 x 2080 mm. Dans la zone salon, se trouve un canapé convertible et une petite table à manger parfaitement adaptée à l’hôtesse.
Regardez la vidéo :


À propos du hall d’entrée
Le hall d'entrée est devenu lumineux et fonctionnel. Une partie des murs a été peinte dans une teinte agréable de vert marécage, tandis que l'autre partie est décorée avec des papiers peints à motif végétal, ce qui donne à l’espace une touche fraîche et introduit un accent naturel. Un coussin jaune vif complète le design général et sert de lieu confortable pour s’asseoir.
Le hall d'entrée est assez spacieux, donc le stockage principal a été placé ici. Dans un grand armoire avec des portes miroir, une section est prévue pour les vêtements d'extérieur et le chaussure, tandis que dans la partie restante sont installées des cintres pour les vêtements quotidiens et des tiroirs coulissants pour le linge.



À propos de la salle de bain
La salle de bain était initialement séparée, mais elle a été fusionnée ce qui permet d'installer une baignoire, un meuble pratique avec une évier à surcharge, ainsi qu’un espace de rangement et une machine à laver avec sèche-linge.
Pour la décoration des murs, on a utilisé de la carrelage blanc et de la peinture, ce qui agrandit visuellement l’espace. Le sol est recouvert de carrelage blanc avec des insertions noires graphiques, ce qui donne à l’intérieur un style moderne et élégant. La sanitaire noire et la ferronnerie ajoutent des accents et rendent l’intérieur plus dynamique.


Vous souhaitez que votre projet soit publié sur notre site ? Envoyez-nous les photos de l’intérieur à wow@inmyroom.ru.Need a renovation specialist?
Find verified professionals for any repair or construction job. Post your request and get offers from local experts.
You may also like

7 secrets du film «Romaines vacances» : comment a été tourné le chef-d'œuvre avec Audrey Hepburn

Meuble soviétique sur «Avtito» : comment distinguer un trésor d'un rebut

Carte des couleurs de la maison : comment utiliser les tendances 2025 dans chaque pièce

10 tables de repas : modèles tendance pour votre intérieur
Plus d'articles:
7 secrets du film «Romaines vacances» : comment a été tourné le chef-d'œuvre avec Audrey Hepburn
Meuble soviétique sur «Avtito» : comment distinguer un trésor d'un rebut
Carte des couleurs de la maison : comment utiliser les tendances 2025 dans chaque pièce
10 tables de repas : modèles tendance pour votre intérieur
Mythes ou vérité : secrets des maisons les plus étranges de Moscou
Tendances de design d'intérieur 2025–2026 : directions clés
Uma Thurman dans le nouveau «Dexter» : secrets du rôle et ce que l'actrice a dit sur les tournages
Électriciens escrocs : 5 schémas qui coûteront des centaines de milliers