Résidence Insomnia | WARchitect | Bangkok, Thaïlande
Une vision de tranquillité et de luxes
Située dans le calme Sammakom Ville à Bangkok, Thaïlande, la Résidence Insomnia est un chef-d'œuvre d'architecture moderne créé par WARchitect. Cette impressionnante maison de 570 m² a été conçue pour réaliser le rêve du propriétaire, Narongwit, fondateur et directeur de Sleepless Society & Chandelier Music. L'objectif était clair : créer un sanatorium de résort où la nature, l'architecture et la discrétion se combinent harmonieusement.
Vues panoramiques sur le lac et espaces ouverts
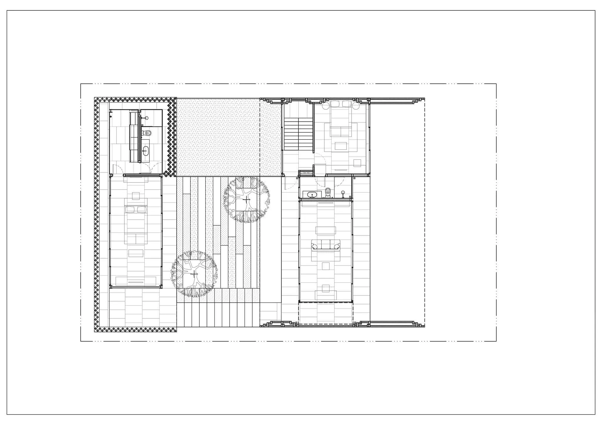
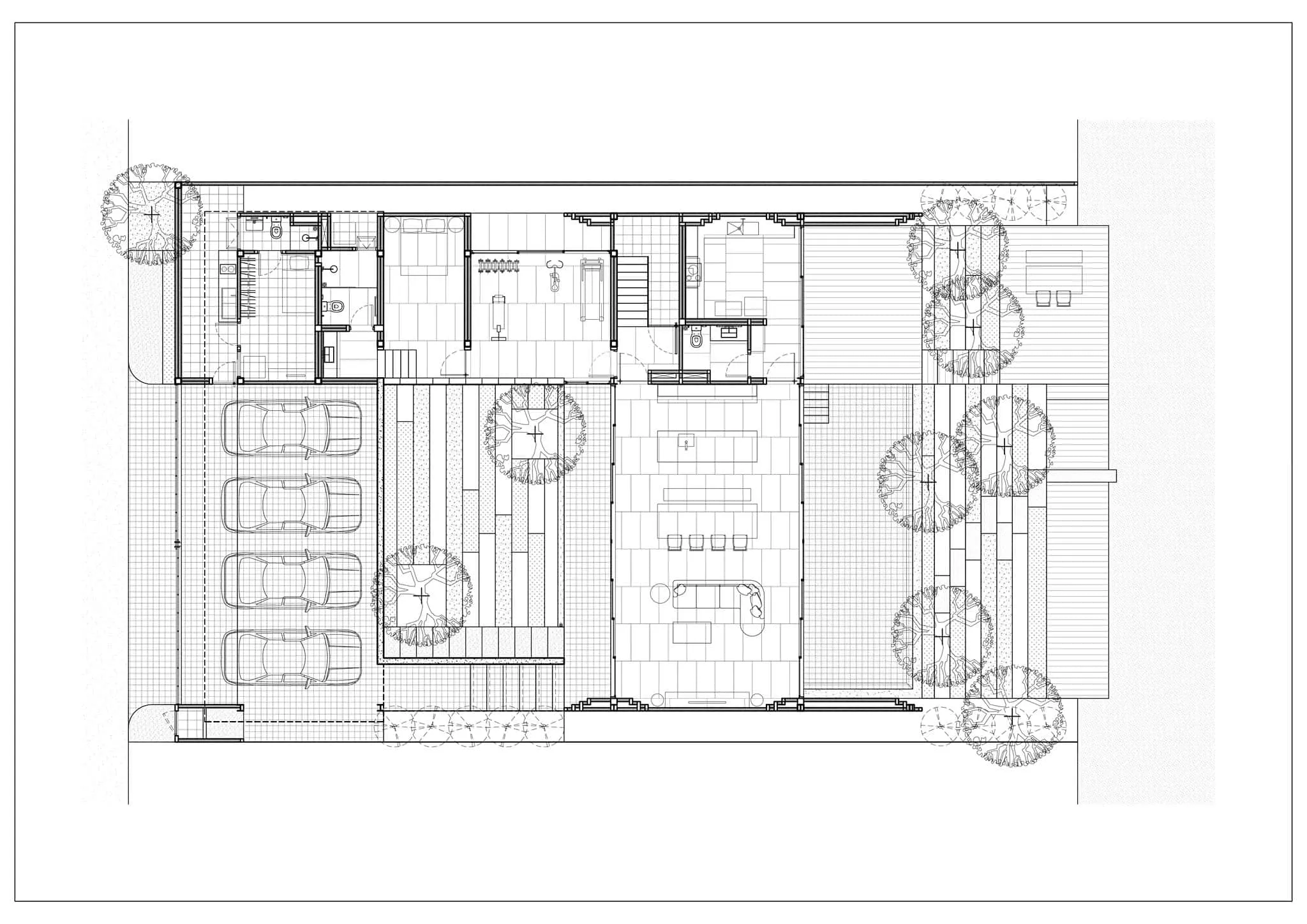
L'une des particularités de la Résidence Insomnia sont ses vues panoramiques sur le lac. Inspirée par la conception multi-niveaux d'un théâtre, la maison a été soigneusement planifiée pour maximiser les visibilités. La disposition ouverte permet des vues continues depuis la chambre, à travers la cour intérieure et le salon jusqu'à l'eau. Cette organisation spatiale intelligente renforce le lien entre les environnements intérieur et extérieur, tout en maintenant une totale discrétion.
Design harmonieux axé sur la cour intérieure
Au cœur du logement se trouve une grande cour intérieure, offrant une vue sur la nature. Cet espace vert privé contribue non seulement à la sérénité, mais constitue également une barrière visuelle par rapport au monde extérieur. Que ce soit pour écrire de la musique en solitude ou recevoir des invités, le propriétaire profite d'un environnement qui allie parfaitement détente et interaction sociale.
Approche unique des matériaux et de l'esthétique
Le design de la Résidence Insomnia s'inspire du style loft industriel, mêlant à cela des éléments élégants de style vintage européen. La maison est équipée d'une maçonnerie personnalisée, où les briques standards ont été tournées et disposées verticalement, créant une façade texturée unique. Cette utilisation innovante des matériaux souligne l'identité de la maison, tout en conservant un style moderne et élégant.
Architecture adaptée au climat
Pour lutter contre la chaleur de Bangkok, la chambre, située au bord de la route, est entourée d'un façade en briques personnalisées. Conçue avec une maçonnerie en pente, cette élément renforce non seulement la ventilation naturelle, mais protège également l'espace intérieur du rayonnement solaire excessif, tout en maintenant une discrétion maximale. Cet élément architectural joue un rôle fonctionnel et ajoute une touche sculpturale à la maison.
Refuge privé au bord d'un lac
Avec l'intégration de l'architecture, le paysage et le mode de vie, la Résidence Insomnia témoigne d'un design réfléchi et innovant. Cette maison unique est bien plus qu'un simple logement : c'est un refuge personnel où luxe, nature et confidentialité se rencontrent dans une harmonie parfaite.
Photo © Rungkit Charoenwat
Photo © Rungkit Charoenwat
Photo © Rungkit Charoenwat
Photo © Rungkit Charoenwat
Photo © Rungkit Charoenwat
Photo © Rungkit Charoenwat
Photo © Rungkit Charoenwat
Photo © Rungkit Charoenwat
Photo © Rungkit Charoenwat
Photo © Rungkit Charoenwat
Photo © Rungkit Charoenwat
Photo © Rungkit Charoenwat
Photo © Rungkit Charoenwat
Photo © Rungkit Charoenwat
Photo © Rungkit Charoenwat
Photo © Rungkit Charoenwat
Photo © Rungkit Charoenwat
Photo © Rungkit Charoenwat
Photo © Rungkit Charoenwat
Photo © Rungkit Charoenwat
Photo © Rungkit Charoenwat
Photo © Rungkit Charoenwat
Photo © Rungkit Charoenwat
Photo © Rungkit Charoenwat
Photo © Rungkit Charoenwat
Photo © Rungkit Charoenwat
Photo © Rungkit Charoenwat
Photo © Rungkit Charoenwat
Photo © Rungkit Charoenwat
Photo © Rungkit Charoenwat
Photo © Rungkit Charoenwat
Photo © Rungkit Charoenwat
Photo © Rungkit Charoenwat
Photo © Rungkit Charoenwat
Photo © Rungkit Charoenwat
Photo © Rungkit Charoenwat
Photo © Rungkit Charoenwat
Photo © Rungkit Charoenwat
Photo © Rungkit Charoenwat
Photo © Rungkit Charoenwat
Photo © Rungkit Charoenwat
Photo © Rungkit Charoenwat
Photo © Rungkit Charoenwat
Photo © Rungkit Charoenwat
Photo © Rungkit Charoenwat
Photo © Rungkit Charoenwat
Photo © Rungkit Charoenwat
Photo © Rungkit Charoenwat
Photo © Rungkit Charoenwat




En savoir plus sur les solutions architecturales inspirantes chez Architecture Art Designs.
Need a renovation specialist?
Find verified professionals for any repair or construction job. Post your request and get offers from local experts.
You may also like
Plus d'articles:
Sept raisons pour lesquelles un thermostat numérique est nécessaire
Teintes d'orange pour l'intérieur
Teintes de gris dans le décor moderne
Teintes de violette : comment associer cette couleur dans la maison
Pavillon Shanggen Bloom par SpActrum à Wenzhou, Chine
Hôtel Shanghai Dunghuang Chengfu par Shanghai Light and Shadow Design
Restaurant Shanghai Zi Fu Hui de LDH Design en Chine
Shanghai Zi Fu Hui par LDH Architectural Design en Chine