PH Helguera by OADD Arquitectos: A Bright Transformation of a Historic PH in Buenos Aires - Ideas for Home - REMONTNIK.PRO

PH Helguera by OADD Arquitectos: A Bright Transformation of a Historic PH in Buenos Aires

Share:
This page is also available in the following languages:🇷🇺🇺🇦🇫🇷🇩🇪🇪🇸🇵🇱🇨🇳🇮🇳🇯🇵
Modern urban residential architecture with mixed materials and minimalist design, featuring rooftop terrace and large windows.

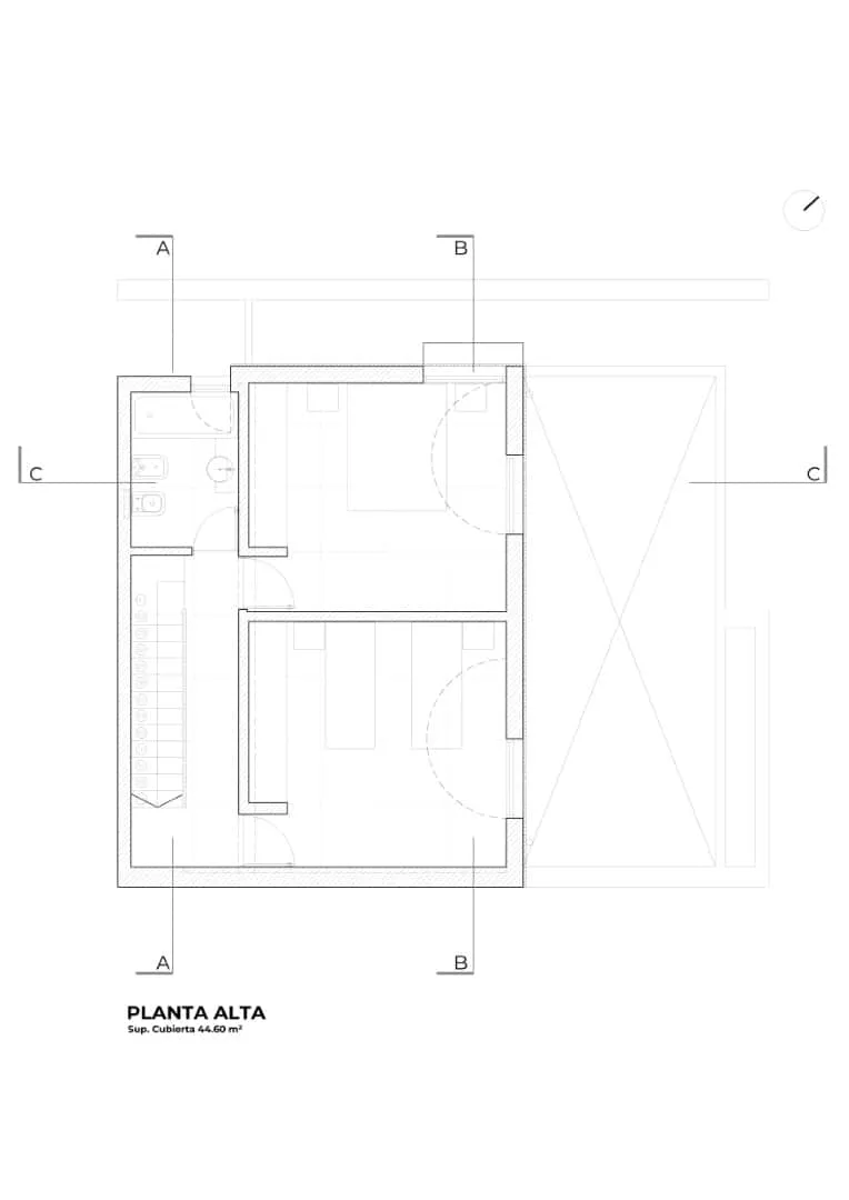
PH Helguera, designed by OADD Arquitectos, is a bold renovation project in Villa del Parque, Buenos Aires. What was once a dark workshop has been transformed into a bright and modern 1011 square foot (94 m²) home. The project demonstrates adaptive reuse of the traditional Argentine "PH" housing typology, breathing new life into the building while preserving traces of its history.

From Workshop to Modern Home

The main goal of the PH Helguera project was to reimagine the old "ph" building, a housing type characteristic of Buenos Aires, and turn it into a cozy family home. The original structure consisted of closed, poorly lit rooms unsuitable for modern living. OADD Arquitectos proposed a radical redesign: opening up the interior space into a long courtyard, which now serves as the social and spatial center of the house.

The Courtyard as a Social Catalyst

The courtyard is a key element of the project. It acts as an urban void in the dense development of Villa del Parque, connecting the living room and kitchen to an outdoor grilling zone, ensuring a comfortable family life and the possibility of hosting large social events. Placing bedrooms on a slightly elevated level allowed architects to improve lighting and privacy, maintaining a balance between public and intimate spaces.

The extensive rooftop terrace, located on the roof, is created as a stimulus for outdoor living. This elevated space promotes relaxation, rest, and closer interaction with the surrounding environment.

The "Coconut Paradigm": Material and Contrast

One of the most notable aspects of the project is its material composition, which preserves the building's origins. The design features exposed brick walls—solid and tactile—with smooth white plaster inside. This interplay between rough and refined surfaces creates what the architects call the "coconut paradigm": an architectural metaphor where the rough outer shell contrasts with a gentle, light interior.

This dialectic of contrasts — old and new, rough and smooth, past and present — is a key feature of the house. By reimagining existing conditions, OADD Arquitectos created housing that respects its history while embodying a bold vision of modern living.

Reimagining Tradition Through Innovation

PH Helguera shows how adaptive reuse can transform urban life. Instead of erasing the past, the project embraces and integrates it into the new existence of the building. This approach not only respects the character of the neighborhood, but also reflects the evolving history of the iconic Argentine PH typology.

PH Helguera by OADD Arquitectos: A Bright Transformation of a Historic PH in Buenos AiresPhotos © Bruto StudioPH Helguera by OADD Arquitectos: A Bright Transformation of a Historic PH in Buenos AiresPhotos © Bruto StudioPH Helguera by OADD Arquitectos: A Bright Transformation of a Historic PH in Buenos AiresPhotos © Bruto StudioPH Helguera by OADD Arquitectos: A Bright Transformation of a Historic PH in Buenos AiresPhotos © Bruto StudioPH Helguera by OADD Arquitectos: A Bright Transformation of a Historic PH in Buenos AiresPhotos © Bruto StudioPH Helguera by OADD Arquitectos: A Bright Transformation of a Historic PH in Buenos AiresPhotos © Bruto StudioPH Helguera by OADD Arquitectos: A Bright Transformation of a Historic PH in Buenos AiresPhotos © Bruto StudioPH Helguera by OADD Arquitectos: A Bright Transformation of a Historic PH in Buenos AiresPhotos © Bruto StudioPH Helguera by OADD Arquitectos: A Bright Transformation of a Historic PH in Buenos AiresPhotos © Bruto StudioPH Helguera by OADD Arquitectos: A Bright Transformation of a Historic PH in Buenos AiresPhotos © Bruto StudioPH Helguera by OADD Arquitectos: A Bright Transformation of a Historic PH in Buenos AiresPhotos © Bruto StudioPH Helguera by OADD Arquitectos: A Bright Transformation of a Historic PH in Buenos AiresPhotos © Bruto StudioPH Helguera by OADD Arquitectos: A Bright Transformation of a Historic PH in Buenos AiresPhotos © Bruto StudioPH Helguera by OADD Arquitectos: A Bright Transformation of a Historic PH in Buenos AiresPhotos © Bruto StudioPH Helguera by OADD Arquitectos: A Bright Transformation of a Historic PH in Buenos AiresPhotos © Bruto StudioPH Helguera by OADD Arquitectos: A Bright Transformation of a Historic PH in Buenos AiresPhotos © Bruto StudioPH Helguera by OADD Arquitectos: A Bright Transformation of a Historic PH in Buenos AiresPhotos © Bruto StudioPH Helguera by OADD Arquitectos: A Bright Transformation of a Historic PH in Buenos AiresPhotos © Bruto StudioPH Helguera by OADD Arquitectos: A Bright Transformation of a Historic PH in Buenos AiresPhotos © Bruto StudioPH Helguera by OADD Arquitectos: A Bright Transformation of a Historic PH in Buenos AiresPhotos © Bruto StudioPH Helguera by OADD Arquitectos: A Bright Transformation of a Historic PH in Buenos AiresPhotos © Bruto StudioPH Helguera by OADD Arquitectos: A Bright Transformation of a Historic PH in Buenos AiresPhotos © Bruto StudioPH Helguera by OADD Arquitectos: A Bright Transformation of a Historic PH in Buenos AiresPhotos © Bruto StudioPH Helguera by OADD Arquitectos: A Bright Transformation of a Historic PH in Buenos AiresPhotos © Bruto Studio

Plans

PH Helguera by OADD Arquitectos: A Bright Transformation of a Historic PH in Buenos AiresPhotos © Bruto StudioPH Helguera by OADD Arquitectos: A Bright Transformation of a Historic PH in Buenos AiresPhotos © Bruto StudioPH Helguera by OADD Arquitectos: A Bright Transformation of a Historic PH in Buenos AiresPhotos © Bruto Studio

Need a renovation specialist?

Find verified professionals for any repair or construction job. Post your request and get offers from local experts.

You may also like