浴室翻新:如何正确进行与审批
我们通过已完成的设计项目实例来解释浴室翻新的审批流程
当我们查看已完成的设计项目时,常常会提出这样的问题:这种改动是否可以获批?最重要的是,该如何操作?我们之前讨论过厨房翻新的情况,今天我们将重点介绍浴室布局中最受欢迎的改动。
门的重新定位
在斯大林时期公寓中,设计师叶莲娜·马金娜通过重新定位浴室门的位置,成功打造了一个宽敞的淋浴区,并配有座椅可转换为浴缸。带有卫生淋浴的马桶隐藏在现有的通风管道后面。前景中是一个带宽台面的洗手台,其门后放置了洗衣机。

如何获得审批?
许多业主错误地认为,重新定位门的开口并不属于装修范畴。然而,根据现行法律,仍需获得审批。为此,您需要一个设计方案以及任何设计机构出具的技术结论。
如果墙体为承重墙,流程更为复杂。首先,您需要进行技术检查——通常由设计您房屋的专家或 MOZhILNIIPROEKT 执行。根据检查结果,将出具关于是否可以重新定位门开口和翻新公寓的技术结论。
然后,将根据技术结论制定设计方案,包括所有建议、未来门开口的尺寸以及加固门洞所需的材料规格(如金属部件)。
合并浴室与卫生间
为了使板楼中的浴室更加宽敞并提供储物解决方案,设计师斯维特兰娜与伊万·梅尔尼科夫将卫生间和浴室合并成一个空间。

如何获得审批?
审批需要由任何持有有效 SRO 许可证的设计机构提供设计方案和技术结论。根据法律规定,装修工作必须由持有有效 SRO 许可证的组织完成,但如果您无意出售这套公寓,则可以自行操作——否则可能会在 Moszhilinspektion 遇到问题。

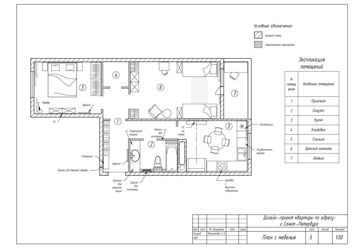
家具布置图
还需要注意什么?
如果您决定拆除浴室与卫生间之间的隔断或移动浴室的外墙——请确保对原始地板进行防水处理。最简单快速的方法是使用涂层材料。执行翻新的机构必须提供隐蔽工程验收单。

利用走廊扩大浴室面积
在一套两居室的赫鲁晓夫式公寓中,设计师叶夫根尼娅·马特维enko通过利用走廊空间扩大了浴室面积。结果虽然复杂但形状非常自然:卫生设备和洗衣机被隐藏在隔断后面。他们选择了一款极窄的型号,在淋浴区域几乎看不见。

如何获得审批?
走廊和过道属于非居住空间,因此可以通过任何持有适当 SRO 许可证的设计机构提交设计方案和技术结论来获得翻新批准。
还需要注意什么?
在装修过程中,您通常需要更改卫生设备的位置。确保湿区的排水合理:注意管道直径和正确的坡度。
污水管道最大的问题是:自然排水需要至少2度的倾斜。您将马桶移得越远,它就必须安装得越高。

Need a renovation specialist?
Find verified professionals for any repair or construction job. Post your request and get offers from local experts.







