如何协调公寓改造:设计师经验分享
在我们回顾设计师已完成的项目时,有时会提出这样的问题:是否可以获得这种改造的批准?最重要的是,如何获得批准?今天我们讨论最受欢迎的厨房布局更改。
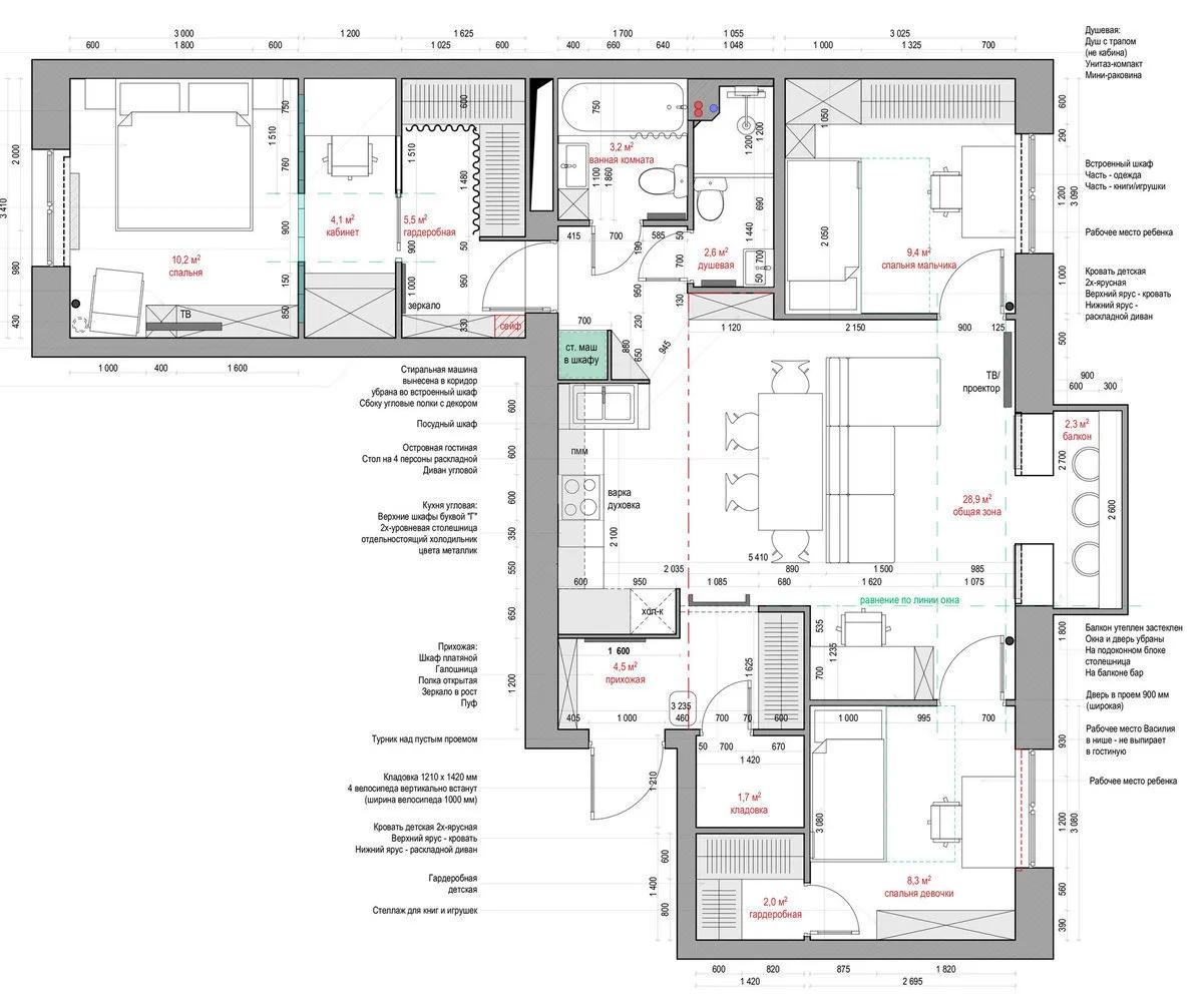
走廊中的厨房
为了在老式公寓中增加房间数量,设计师塔季扬娜·别兹韦尔赫亚将厨房橱柜移至走廊,并将过道区域与客厅连接。创建了一个大型厨房-客厅,设有工作区、餐桌和休闲区。

如何获得批准?
厨房的迁移可以获得批准,因为走廊是非居住空间。然而,在老式建筑中,通常配备燃气灶。因此,要批准改造,你必须‘付出一些努力’。
你需要获得额外电力供应的许可,准备新电气安装项目,并完成与管理公司和电力公司的几份文件。
同时,你必须准备公寓改造和重新规划项目并获得‘莫斯科燃气’的批准。改造和重新规划也必须在莫斯科住房检查局获得批准。最终,公寓变得更加环保,电费账单将减少30%。
“一切都符合规定,客户拒绝了燃气,批准了额外供电,并安装了电磁炉,”——塔季扬娜·别兹韦尔赫亚说道。

家具布置布局
还需要考虑什么?
当将厨房移至走廊时,你需要规划公用设施的布置并安装污水泵。在某些情况下,你可能需要抬高地板或建造一个抬高的平台。在这个公寓中,热水和冷水管道沿天花板安装。
带燃气灶的厨房-客厅
为了将斯大林式公寓改造成温馨的家庭巢穴,需要进行大规模装修和改造。首先,设计师塔季扬娜·克拉索娃在走廊与厨房之间创建了一个开口,并将厨房与客厅连接。

如何获得批准?
“厨房有燃气,所以我们设置了厨房与客厅之间的滑动门。显然它不会持续使用,但它是存在的。我们没有将燃气管道隐藏在假风道中(这是非法的),而是将其涂成与橱柜瓷砖相同的颜色。燃气阀在批准后被移至上方橱柜。我们还决定消除厨房中的污水管道,这需要额外的批准,”——塔季扬娜·克拉索娃解释道。

还需要考虑什么?
如果你想让厨房与客厅之间没有界限,你必须将燃气灶更换为电磁灶。如何操作已在上面解释。
实践表明,一些公寓业主忽视批准规定和设计师的建议,选择节省资金而不设置厨房与客厅之间的隔断。他们这样做是出于自己的风险和责任。
后果是什么?
- 基于邻居的投诉,来自住房合作社或管理公司的人员可能会来找你。发现不一致之处后,他们可能要求你支付罚款并批准布局或恢复原状。如果不服从,你可能需要通过法院判决将所有东西恢复到原始状态。这也被视为行政违法行为。
- 未经批准的改造可能在出售公寓时成为问题。买家可能会因布局未获批准而试图降低价格。
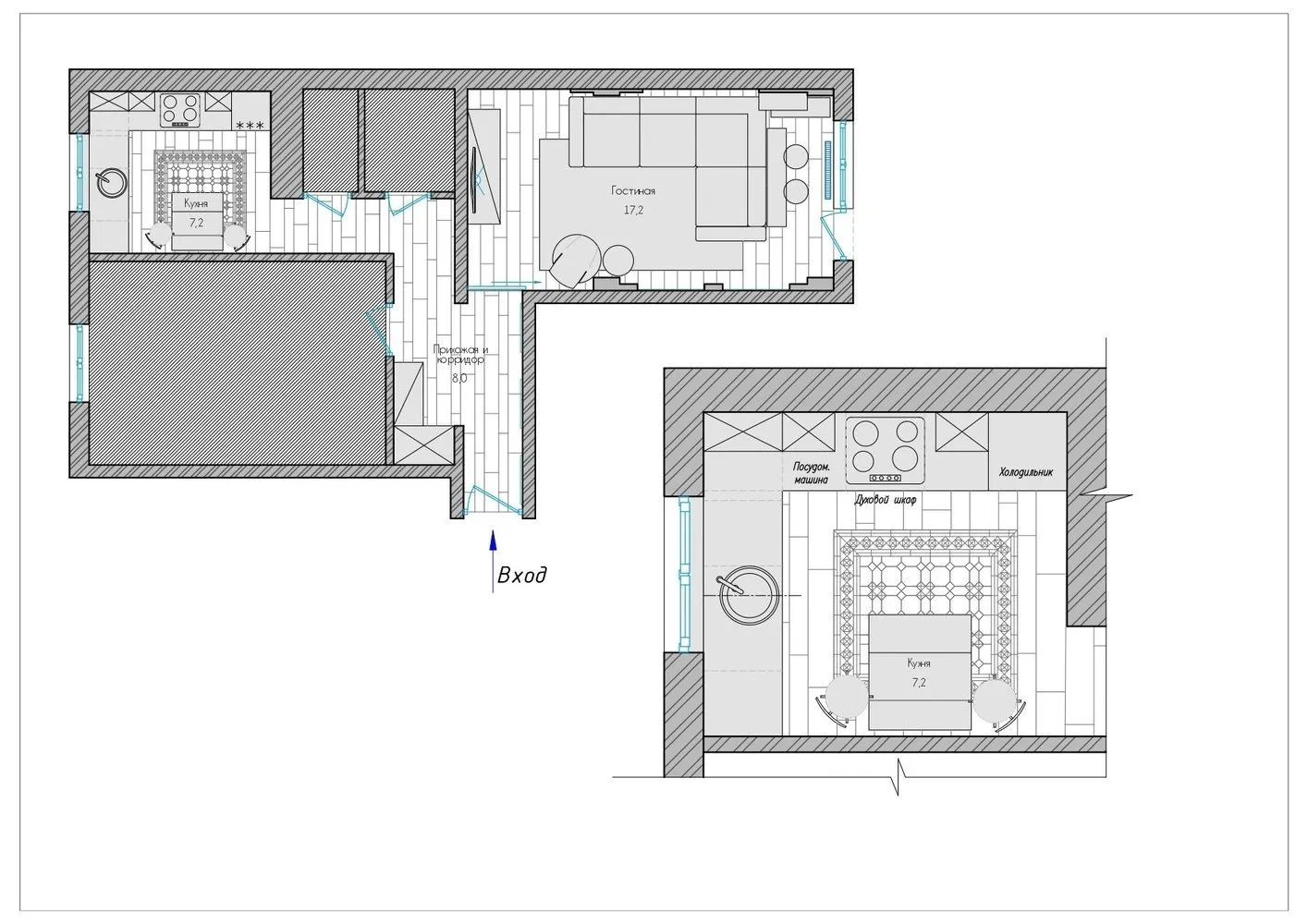
窗边水槽
在板式房屋中创建公寓项目的主要任务是方便且功能齐全的家具布置。建筑师叶夫根尼娅·利卡索娃将厨房橱柜放置,使水槽位于窗边,其余区域适合一个小型折叠桌和椅子。

如何获得批准?
你可以在不获得批准的情况下将水槽移离管道沿墙。然而,将其移至对面墙或房间中央(设置岛台)则需要批准。为此,你需要提交申请、项目(草图)、公寓文件副本和技术护照至当地住房检查局的‘一站式服务’。批准需要20–40天。

还需要考虑什么?
你需要规划金属-塑料或聚丙烯管道从立管连接的公用设施。对于排水,需要坡度,这意味着在某些公寓中,你可能需要将窗边的工作台面抬高。如果窗户离立管较远,则需安装强制污水泵:它将水从水槽泵送至立管。
另一个要点:要将水槽放在窗边,你必须将暖气片移到另一面墙或移除它——在大多数情况下,移除的可能性通过与管理公司协商解决。然而,还有另一种选择:“在这间厨房中,暖气片没有移动;它位于窗台下的壁龛中。为了通风,我们在台面顶部和厨房橱柜底部设置了槽口——它们位于底座中,完全不可见。这有助于确保良好的通风。在这种情况下,不需要额外的批准,”——叶夫根尼娅·利卡索娃解释道。

Need a renovation specialist?
Find verified professionals for any repair or construction job. Post your request and get offers from local experts.







