3种合法的复式公寓改造方案:适用于‘勃列日涅夫’建筑
小户型公寓里是否还有生活空间?当然有!尤其是当一位专业建筑师参与了其布局设计时:功能区域安排合理,储物系统充足。我们分享三种合法的改造方案
尽管面积较小,复式公寓仍有很多布局可能性。例如,在“Bashnya Vulykha”系列住宅中,内部隔断是非承重墙——这意味着有扩展空间。建筑师阿纳斯塔西娅·基谢列娃提出了几种布局方案,而装修专家马克西姆·朱拉耶夫解释了如何在不产生问题的情况下协调这些方案。
简要信息
“Bashnya Vulykha”住宅系列以著名的苏联建筑师叶菲姆·彼得罗维奇·维利赫命名。12层框架砖混结构的建筑属于“勃列日涅夫”时代。公寓的布局和参数,以及“Bashnya Vulykha”系列的结构特点,与II-67系列住宅非常相似。这种标准布局的一个显著优势是无承重墙和独立卫生间。

标准布局
方案一:在凹陷区域设置床铺
对于没有孩子的家庭,可以在公寓中创建多个功能区域。睡眠区被移至凹陷区域,其余空间为带电视的客厅。卧室与过道之间的隔断向床方向移动:过道现在可以放置一个大型衣柜用于外套收纳。
卫生间和洗手间合并,以便容纳带洗衣机的大型储物柜。厨房设计强调用餐区:窗边设置紧凑型橱柜。在保温阳台上增加了办公桌和休闲区。
专家观点:该布局相当实用且易于协调。需要任何具备适当SRO许可的项目组织提供的装修设计方案和技术结论。

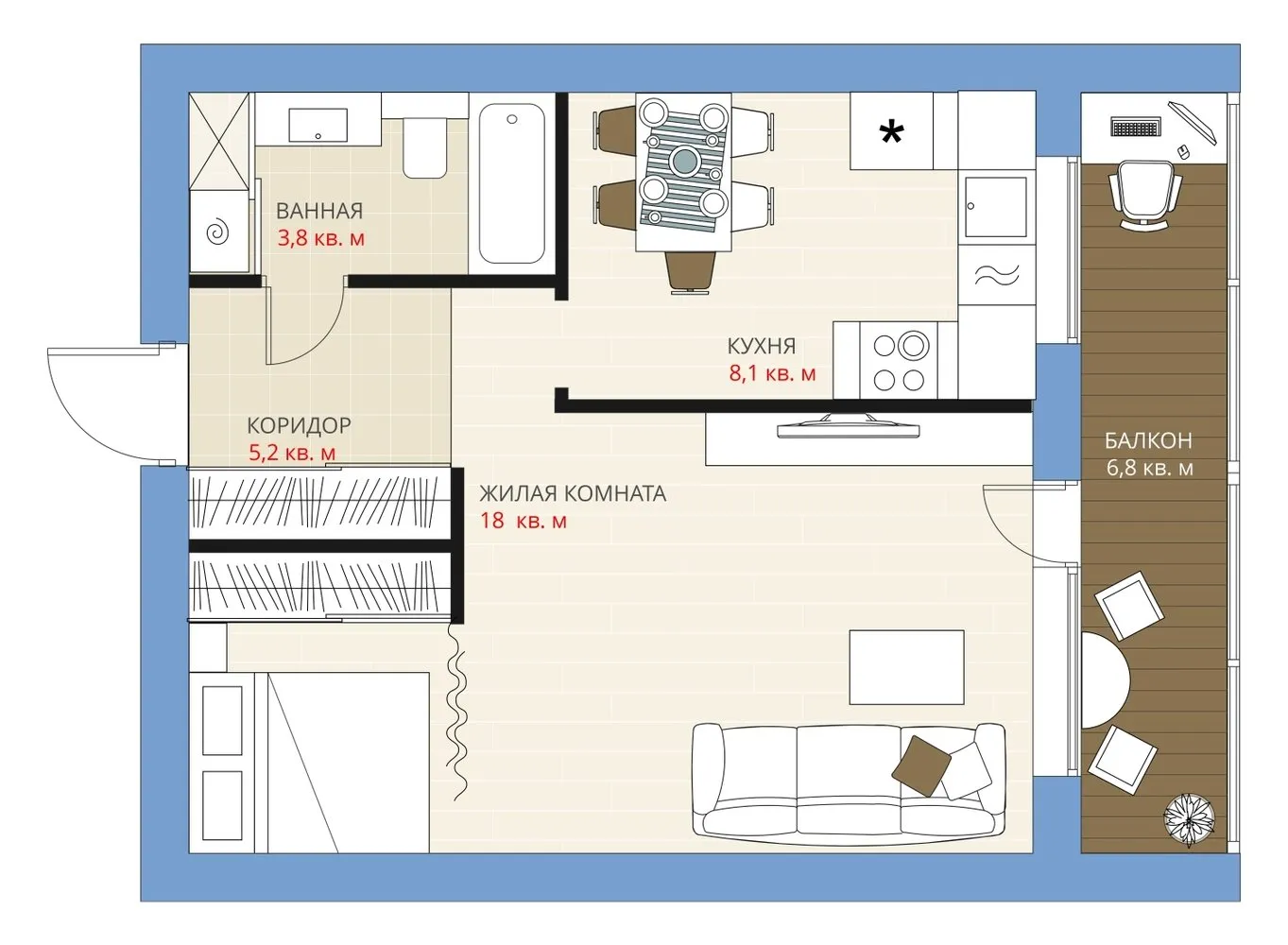
方案二:复式公寓
通过将厨房和客厅合并,从单间公寓中打造了一个复式空间。厨房安装了大型角落橱柜,并使用吧台作为分隔区域,计划采用滑动隔断。客厅中安装了沙发床。这里还设置了一个工作区。
公寓有两个衣柜:一个用于外套,另一个用于个人物品。将入口移至厨房使得卫生间得以扩大。在此变体中,卫生间可以同时放置浴缸和淋浴间。
专家观点:对于小家庭来说,储物空间已经足够。协调需要提供装修设计方案和技术结论。

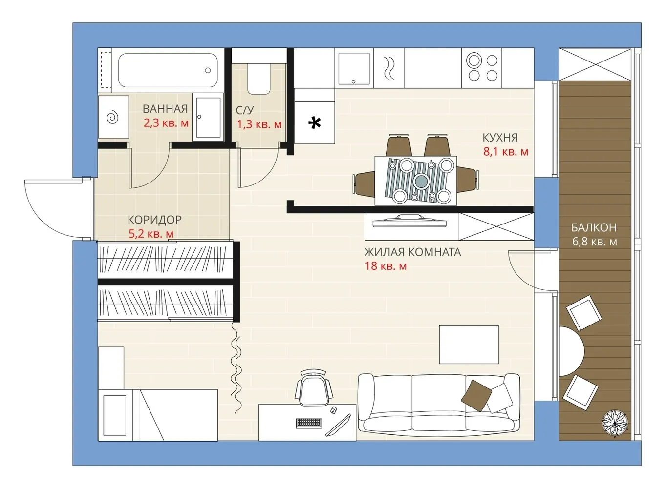
方案三:设有儿童区
装修风格类似于第一种方案,但在此方案中在凹陷区域增加了一个儿童休息区。厨房分为两个区域:用餐区和烹饪区。卫生间未合并。洗衣机和储物柜被放置在卫生间。卫生间旁边有足够的空间设置壁龛和架子,非常适合存放化妆品。客厅其余空间被用于创建带有电视和工作区的柔软区域。
专家观点:这种布局易于协调。需要任何具备适当SRO许可的项目组织提供的装修设计方案和技术结论。

封面照片:亚历山德拉·特鲁什设计
Need a renovation specialist?
Find verified professionals for any repair or construction job. Post your request and get offers from local experts.







