Перепланировка в малогабаритке: 5 удачных примеров
На прикладах наших проектів ми розповідаємо, як маленьку та вузьку квартиру перетворити на комфортне місце для життя
Майже будь-який ремонт починається з перепланировки, особливо якщо це малогабаритка. Ми вибрали 5 успішних прикладів із нових проектів, щоб ви знайшли для себе ідеальне рішення.
Як перетворили однокімнатну квартиру в простору студію
Дизайнер Наталія Голубович вирішила зняти всі перегородки, щоб однокімнатна площа 41 кв. м перетворилася на затишну студію. Кухню з гостьовою кімнатою об'єднали та зонували простір за допомогою різних наполівних покриттів. А між спальней і прихожою, навпаки, встановили перегородку, щоб ізольовати зону відпочинку.
Стиральну машину вирішили розмістити у ванній — їх об'єднали, і місця стало більше. Навіть знайшовся простір для додаткових систем зберігання.

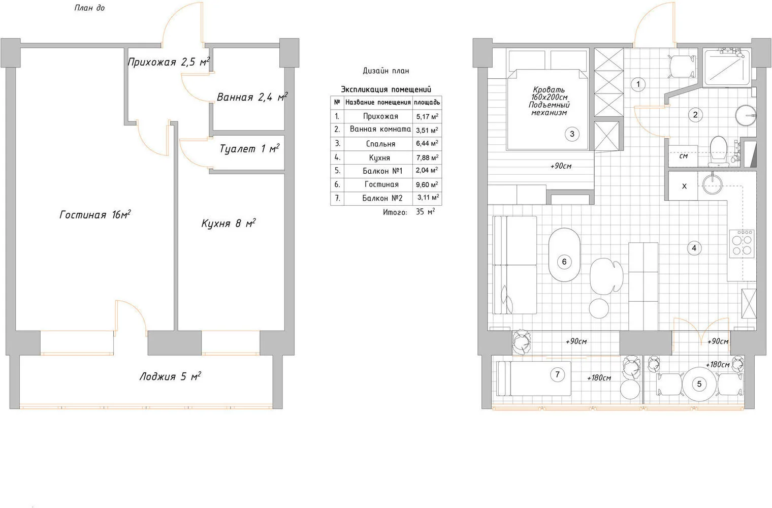
Як і чому перенесли кухню в коридор
Щоб знайти місце для ще однієї кімнати в однокімнатній квартирі, дизайнер Євгенія Матвєєнко повністю перекроїла простір. Кухню перенесли в коридор і об'єднали її з гостьовою кімнатою, щоб оформити повноцінну столову зону. А на місці старої кухні звільнилися кімнату, де організували спальню з великою ліжкою та просторим шафою для одягу.
Частину коридору дизайнер пожертвоює, щоб зробити невеличку постирочну — тут розмістили стиральну машину і додаткові системи зберігання.

Як пожертвували кладовою ради спальні
Дизайнер Марина Світлова оформила однокімнатну квартиру з кількома функціональними зонами. Спочатку вона прибрана перегородка між кухнею та кімнатою, щоб додати простору, і зонувала простір за допомогою меблів. Спальню організували на місці булої кладової: коли квадратних метрів мало, приходить щось жертвувати.
Ванну кімнату вирішили об'єднати, щоб душеву кабіну замінити на ванну. Завдяки цьому рішенню стиральну машину не довелось ставити на кухні і з'явилося місце для зберігання.

Як знайшли місця для зберігання в однокімнатній квартирі
Для переділки цієї однокімнатної квартири дизайнер Ольга Березовська підготувала цілих п'ять варіантів перепланировки, і замовник обрав найоптимальніший. Щоб позбутися крихіток тісних приміщень, кухню-гостьову об'єднали з прихожою. А частина житлової кімнати віддали під гардеробну.
Ванну кімнату вирішили об'єднати: завдяки перепланировці в стіні вийшло зробити ниші, навіть залишилося місце для окремого шафа-колони.

Як у однокімнатній квартирі знайшли місце для спальні
Дизайнер Юлія Тельнова вирішила змінити початкову планировку з невеличкою ізольованою кухнею та окремою гостьовою кімнатою. Дві приміщення вирішили об'єднати і зонувати відкритим стеллажем. Ще більше розширили простір, приєднавши лоджію — тут розмістили обідню зону (а вікна замінили на розсувні перегородки).
Гостьова кімната в результаті вийшла просторою, тому частину кімнати віддали під невеличку спальню. Її відокремили перегородкою, яка частково зроблена зі скла, так що в кімнату проникає природне світло.


Need a renovation specialist?
Find verified professionals for any repair or construction job. Post your request and get offers from local experts.
You may also like
Більше статей:
Як прибирати літні речі: куди їх відкласти і як зберігати?
Ідеальна квартира в центрі Стокгольма: ідеї, які вам знадобляться
Літній будинок у Барселоні з панорамними вікнами
Кухонна революція: 6 знакових винаходжень для кухні
«Швидка допомога» для інтер'єру: 10 геніальних дизайнерських хаків
Що зробити з осінньою листям на дачі: 5 ідей
Що можна купити в IKEA за 5 тисяч гривень?
Встигнути до Нового року: 5 рішень для швидкого завершення ремонту