Дім Нашахіша від Сани Премрн у Айдовщині, Словенія
Проект: Дім Нашахіша Архітектори: Сана Премрн Місцезнаходження: Айдовщина, долина Віпава, Словенія Площа: 1 829 кв. футів Фотографії: Міха Братина
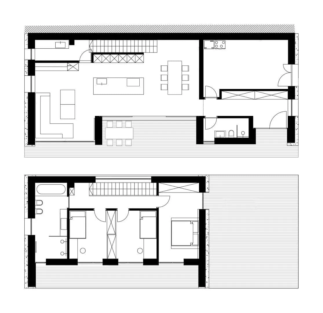
Дім Нашахіша від Сани Премрн
Сімейний дім архітектора часто служить джерелом вдохновення для його дизайнерської філософії. Балансуючи між простотою прямокутних форм та сирими матеріалами, такими як камінь, сталь та скло, з елегантними та деталізованими інтер'єрами, це сучасний сімейний дім, створений так, щоб витримати випробування часом. Цей сучасний дім розташований між типовими одноповерховими будинками 1970-1980-х років, які переважно складаються з двох окремих об'ємів із мансардними дахами. Замість того, щоб імітувати оточуючу середовище, нове будівництво трохи відокремлене від неї, але не видається. Насправді, воно майже непомітне.

Проект має 170 квадратних метрів на двох поверхах та терасу. Розташування будівлі має важливе значення, бо вона розташована в долині Віпава, де дме сильний вітер бора. Тому орієнтація будівлі та простір дому повинні забезпечувати захист та дозволяти природному світлу проникати всередину без надмірного нагрівання влітку. У той же час користувачі всередині зможуть насолоджуватися красивим видом саду зовні. Плоска дах робить будівлю нижчою та не закриває вид на сусідів. З тієї ж причини верхній поверх був зсунутий у західну частину будівлі, а тераса розташована на східній стороні.

Для забезпечення міцності цього дому були використані природні матеріали. Східні та західні фасади облицьовані місцевим каменем, а інтер'єр домінує деревом у поєднанні з каменем. Дизайн також посилається на народні матеріали; старі гнилі цеглини були використані для створення під'їзної доріжки. Такі традиційні матеріали, вбудовані в архітектуру, надають популярну затишність місцевих будівель і водночас з'єднують проект з сучасними особливостями, такими як великі скляні поверхні на південному фасаді з повним видом на місто.
- Опис проекту та зображення надані Саною Премрн



















Need a renovation specialist?
Find verified professionals for any repair or construction job. Post your request and get offers from local experts.
You may also like
Більше статей:
Монолітний будинок від Desypri & Misiaris Architecture в Мані, Греція
Пляж Монтаук / SAOTA / Нью-Йорк
Дім Монтейро від Матеуса Монтейро: затишна прибережна резиденція в Бразилії
Дім Монтемор від Brasil Arquitetura в Бразилії
Клініка MOOD Dental Clinic за проектом Tsou Arquitectos у Маїї, Португалія
Світлова атмосфера для зими та Різдва
Стиль фермерської кухні з мрачною атмосферою для вдихновення
Стильна романтична спальня з мрачною атмосферою для створення затишку та пристрасті