Antes y después: reforma económica de una pequeña casa de un dormitorio de 32 m²
Con soluciones sencillas, transformamos un espacio sin vida y monótono en uno acogedor y cómodo
Esta vivienda se encuentra en la ciudad de kurort Gelenjik, en la costa del Mar Negro. La familia de Julia Sofronova la compró para vivir temporalmente con la perspectiva de mudarse en el futuro. Julia es abogada, hace un año terminó cursos sobre homestaging y ahora ayuda a preparar apartamentos para alquiler diario en Gelenjik. El tiempo y el presupuesto limitados no permitieron hacer un remake completo, por lo que Julia aplicó sus conocimientos y decoró ella misma el apartamento.
Lugar: ciudad de Gelenjik
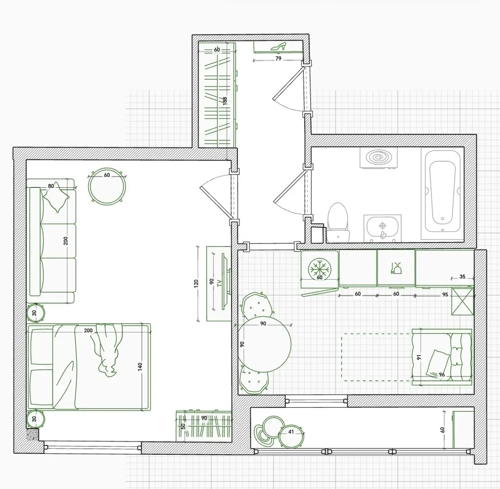
Superficie: 32 m²
Altura de los techos: 2,7 m
Cantidad de habitaciones: 1
Baño: 1
Diseño: Julia Sofronova
Apartamento antes de la reformaEl apartamento está ubicado en un edificio construido en 2018. Antes de la reforma, las paredes tenían papel pintado desactualizado con un gran patrón alegórico que creaba caos visual y sobrecarga, mientras que las puertas oscuras entre habitaciones intensificaban la sensación de cerrazón. El mobiliario, anticuado y ya sin su encanto original, despojaba al apartamento de comodidad y calidez y requería actualización. Era necesario transformar el interior en un espacio más luminoso y acogedor.
Comedor después de la reformaLos papel pintado y las puertas fueron pintados con tonos claros, lo que permitió ampliar visualmente el espacio y hacerlo más luminoso y aireado. Los toques verdes acentuados añadieron vitalidad y dieron una atmósfera de armonía y comodidad. El suelo laminado que se conservó del anterior remanufacturado se convirtió en un buen complemento al diseño renovado, creando una sensación de unidad y comodidad del estilo.



El conjunto de la cocina fue elegido en un tono claro, lo que visualmente amplía el espacio. Se decidió no instalar los armarios superiores para crear sensación de espacio y ahorrar lugar. En la cocina se dispone de toda la tecnología necesaria: refrigerador independiente, lavavajillas, horno microondas y placa de cocción. Los electrodomésticos para cocinar están ocultos para no saturar el interior, ya que en la cocina hay un espacio adicional para dormir: una silla-cama plegable que hace que el espacio sea funcional y cómodo.



En el balcón se renovó la pintura, dándole un aspecto fresco y moderno. Para mayor comodidad se instaló un armario que permite almacenar con orden los artículos necesarios. Además, se añadieron sillas para descanso, creando un lugar acogedor donde disfrutar del café matutino y deleitarse con una vista maravillosa al mar.



Debido a la ubicación del edificio rodeado de vegetación, elegí colores que reflejan la belleza de la naturaleza y crean una atmósfera de comodidad y armonía, transmitiendo el ambiente soleado de Gelenjik.
Sobre el vestíbuloEl vestíbulo resultó muy luminoso y acogedor. Aquí se dispone de un armario-closet amplio para guardar ropa y una pequeña estantería para zapatos que garantiza orden. Para comodidad se agregó un cojín que sirve como elemento funcional. La puerta de entrada está decorada con un espejo que no solo amplía visualmente el espacio, sino que también añade utilidad, permitiendo revisar rápidamente la apariencia antes de salir.

Sobre el bañoEn el baño se reemplazaron el lavabo y el inodoro. Los grifos negros acentuados añaden un toque de estilo moderno y contraste con la paleta general del espacio. Debajo de la bañera se colocó una pantalla de persiana verde que no solo oculta las instalaciones, sino que también refresca el interior. El nuevo espejo colgado sobre el lavabo visualmente amplía el espacio y crea una sensación de luz, mientras que la cesta tejida para ropa aporta un toque natural y acogedor.
¿Quieres que tu proyecto sea publicado en nuestro sitio web? Envía las fotos del interior a wow@inmyroom.ru.Need a renovation specialist?
Find verified professionals for any repair or construction job. Post your request and get offers from local experts.
You may also like

Cosas elegantes y acogedoras para el hogar: 10 tendencias encontradas

7 ideas económicas para la casa de campo que harán envidiar a los vecinos

Pared detrás del sofá: 5 ideas elegantes de decoración

¿Por qué los precios del remanufactura subieron un 40%?: cómo hacer un buen remanufactura en 2025 sin arruinar tu presupuesto?
Más artículos:
Cosas elegantes y acogedoras para el hogar: 10 tendencias encontradas
7 ideas económicas para la casa de campo que harán envidiar a los vecinos
Pared detrás del sofá: 5 ideas elegantes de decoración
¿Por qué los precios del remanufactura subieron un 40%?: cómo hacer un buen remanufactura en 2025 sin arruinar tu presupuesto?
¿Qué cortinas eligen los diseñadores: consejos + ejemplos hermosos?
Torre Shukhov: la torre Eiffel constructivista de Moscú
«Siete hermanas»: lo que esconden las alturas estalinistas
«Casa con animales»: la mansión moscovita con un zoológico secreto