Amplia cocina de 10,6 m² en estilo loft
Toma nota de ideas para crear un interior cómodo y elegante
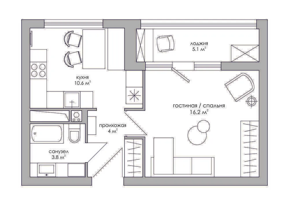
Los diseñadores de MiR Buro decoraron una vivienda de 40 m² para una familia joven con un niño. La cocina aislada tiene un área de 10,6 m². En ella caben un conjunto de cocina angular y vitrinas en la nicho. La cocina está separada de la sala de estar con una puerta invisible.

Para decorar la cocina se utilizó el estilo favorito de los clientes: loft. En el suelo hay laminado que imita la pinyonera francesa, se ve muy bien.

En la cocina las paredes rústicas son una gran ventaja, ya que los clientes aceptaron esta solución. Se destaca la zona abierta de la pared estructural de hormigón cerca de la mesa y la losa hexagonal «como hormigón» en el delantal. Todos estos materiales resaltan con elementos negros: la campana, el conducto de aire y los elementos metálicos refuerzan el tema del loft.

«Probablemente, el mayor problema fue la canasta para plantas encima de la mesa en la cocina. Este era uno de los últimos elementos del interior, el presupuesto ya se había agotado y hacerlo a medida era caro. Al final, el cliente encontró a alguien hábil en San Petersburgo que, dentro del presupuesto disponible, soldó esta canasta y no tuvimos que renunciar a uno de los elementos que definen el estilo», cuentan los diseñadores.
Marcas presentadas en el proyectoRevestimiento: azulejos, Equipe; pintura, Dulux
Recubrimiento del suelo: laminado, Classen
Electrodomésticos: Bosch
Luz: sistemas de riel, Arte Lamp
Need a renovation specialist?
Find verified professionals for any repair or construction job. Post your request and get offers from local experts.
You may also like
Más artículos:
Luz y espacio: acogedor diseño de 69 m² en Kazán para una médica
Cómo se transformó con éxito una cocina de 5,55 m² en un tipo de krushchyovka
Antes y después: reforma de una vieja vivienda panelada de 55 m² hecha con mis propias manos
Estilo, comodidad y belleza: los mejores sofás y sillas para casa
Hermosa apartamento de 77 m² con atmósfera art déco
Máximo confort: 10 sofás-cama para cualquier gusto
Apartamento de tres habitaciones de 58 m² que parece mucho más grande
Cómo organizar un almacenamiento eficiente en la cocina: 6 secretos del diseñador