Luz y espacio: acogedor diseño de 69 m² en Kazán para una médica
En este diseño no hay explosión de colores, pero sí muchas texturas diferentes y luminarias diseñadas
La diseñadora Karine Mkhitarian decoró un apartamento de tres habitaciones en Kazán para una médica que prefiere tonos suaves y claros. La distribución del edificio se mantuvo sin cambios, se usó una paleta de colores neutra y se agregaron acentos.
Ciudad: Kazán
Métrica: 69 m²
Habitaciones: 3
Baño: 1
Altura de techo: 3 m
Presupuesto: 3 millones de rublos
Año de ejecución: 2022
Diseñadora: Karine Mkhitarian
Fotógrafo: Roman Spiridonov
Estilista: Natalia Miloradova
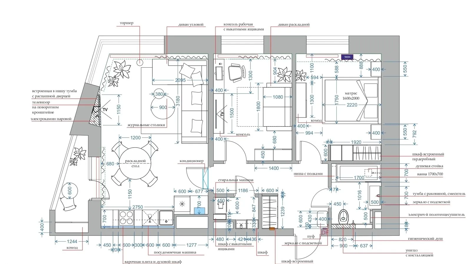
La distribución se mantuvo como fue construida por el desarrollador: entrada, baño, dormitorio, estudio, cocina-estancia, balcón y un pequeño baño que se convirtió en lavadero. No fue necesario hacer cambios estructurales. Lo único que se construyó fueron algunos tabiques para armarios empotrados.

Cocina-estanciaEn la cocina se instaló un armario empotrado, el calentador de gas está oculto en el armario izquierdo, al lado del refrigerador y en la esquina opuesta están los contadores de gas. Para la circulación del aire se colocaron perforaciones en el armario.




La cocina-estancia tiene una forma irregular, la zona de televisión fue diseñada con un recorte. Para equilibrar visualmente la pared, se creó una “tumba” y se integró allí un horno de vapor.

En la sala de estar, se usaron cortinas complementarias en dos ventanas. En la ventana panorámica que da al balcón cuelga una cortina de encaje con hojas, mientras que en la ventana angular del área del sofá se colocaron cortinas de tela densa, y en el dormitorio una manta hecha con la misma tela.
DormitorioLa característica del dormitorio fue la colocación asimétrica de las paredes con papel pintado y luminarias elegantes.



Para el dormitorio se utilizó una tela de persiana monocroma que combina hilos mate y brillantes. Esto da una textura compleja e interesante.

EstudioPara el estudio se eligió una fresca de Affresco con manzanos en flor, un sofá, cortinas y almohadas en tonos tenues que imitan las hojas del manzano.



En el área de trabajo se utilizó una tela con textura de seda y un brillo noble. El material drapea bien y crea pliegues suaves.


Baño y lavaderoSe logró espacio para estanterías de champú detrás de la bañera, también se redujeron las cajas de ventilación y se previeron estanterías para almacenamiento.




EntradaLa selección y colocación de la mobiliario se basó en estilo y funcionalidad para una vivienda pequeña con ahorro de espacio.



Cocina-estancia
Revestimiento: papel pintado, Loymina
Piso: cerámica granito, Kerama Marazzi; laminado, Tarkett
Mueble: mesa y sillas, Deephouse; mobiliario blando, SHikana kazan
Armario: estudio de muebles “Azaria” ciudad de Kazán
Luz: Donolux
Baño
Revestimiento: cerámica granito, Kerama Marazzi
Mueble para baño: estudio de muebles “Azaria” ciudad de Kazán
Luz: Donolux
Entrada
Mueble: estudio de muebles “Azaria” ciudad de Kazán
Luz: Donolux
Dormitorio
Revestimiento: papel pintado, Loymina
Piso: laminado, Tarkett
Mueble: armarios, mesitas de noche, todo del estudio de muebles “Azaria” ciudad de Kazán
Teléfonos y decoración: salón textil KLAIV ciudad de Kazán
Luz: Donolux; lámparas, Seletti
Estudio
Revestimiento: papel pintado, Loymina; fresca, Affresco
Piso: laminado, Tarkett
Mueble: estudio de muebles “Azaria” ciudad de Kazán
Luz: Donolux
¿Quieres que tu proyecto sea publicado en nuestro sitio web? Envíanos fotos del interior a wow@inmyroom.ru
Need a renovation specialist?
Find verified professionals for any repair or construction job. Post your request and get offers from local experts.
You may also like

Superdescubrimiento para quienes no les gusta limpiar: reseña del último robot aspirador

Una cocina acogedora y funcional para familias con muchos hijos

Cómo decorar un interior elegante y anti-vandalista

Cómo desde un antiguo baño de 3,2 m² en un krushchevka se hizo una habitación de baño cálida y acogedora
Más artículos:
Superdescubrimiento para quienes no les gusta limpiar: reseña del último robot aspirador
Una cocina acogedora y funcional para familias con muchos hijos
Cómo decorar un interior elegante y anti-vandalista
Cómo desde un antiguo baño de 3,2 m² en un krushchevka se hizo una habitación de baño cálida y acogedora
Dúplex de 46 m² para pareja, en el que cada milímetro está pensado
Zona de comedor en cocina micro: 7 ideas si casi no hay espacio
Tonos azules en la decoración, un toque de madera y elementos naturales: un apartamento donde quieres vivir
7 hábitos caseros que ayudan a mantener la casa limpia