Cómo se transformó con éxito una cocina de 5,55 m² en un tipo de krushchyovka
Como resultado del remodelado se obtuvo un espacio de trabajo elegante y funcional, donde cada detalle está cuidadosamente pensado
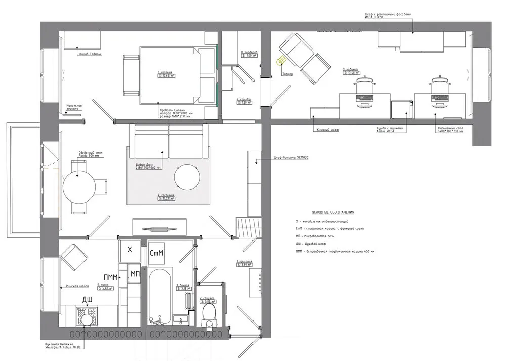
La diseñadora Polina Andreeva actualizó por completo el interior de una pequeña cocina en una krushchyovka de tres habitaciones. La cliente recibió el apartamento como herencia de su padre arquitecto, quien por sí mismo durante diez años realizó reformas y vivió allí. Él cerró la entrada a la cocina, aumentando así la funcionalidad del espacio. En el apartamento hay gas, por lo tanto se mantuvieron las puertas.

Recorrido completo de esta vivienda (22 minutos)
Cocina antes del remodeladoConjunto de cocina angular. Al frente de la entrada se renunciaron a los armarios colgantes para no abarrotar el espacio. Las puertas están en un tono agradable de gris-beige, con paneles y perillas negras tipo botón. La cocina fue hecha a medida para usar al máximo el pequeño área disponible.

La encimera con textura de madera se convirtió en el punto destacado frente al conjunto neutro.La microonda no se hizo integrada — para ella se reservó una estantería especial y se pensó en la toma eléctrica dentro del espacio. En la pared frente a la entrada a la cocina se colocaron los armarios inferiores, y encima solo una ventilación en forma de cilindro.
El delantal se colocó casi hasta el techo, haciendo un énfasis en la baldosa de color menta con esmalte. La tubería del gas se pintó del color de la pared para que no llame la atención. En la ventana hay cortinas romanas, muy práctica solución para una cocina.

Marcas presentadas en el proyectoAcabado: pintura, Mons; azulejos, Imola
Garniture: «Mebelia»
Electrodomésticos: Weissgauff
Baños: Iddis
Lavabo: Iddis
Iluminación: IKEA; Eglo
¿Quieres que tu proyecto sea publicado en nuestro sitio web? Envía las fotos del interior a wow@inmyroom.ru
Need a renovation specialist?
Find verified professionals for any repair or construction job. Post your request and get offers from local experts.
You may also like
Más artículos:
Una cocina acogedora y funcional para familias con muchos hijos
Cómo decorar un interior elegante y anti-vandalista
Cómo desde un antiguo baño de 3,2 m² en un krushchevka se hizo una habitación de baño cálida y acogedora
Dúplex de 46 m² para pareja, en el que cada milímetro está pensado
Zona de comedor en cocina micro: 7 ideas si casi no hay espacio
Tonos azules en la decoración, un toque de madera y elementos naturales: un apartamento donde quieres vivir
7 hábitos caseros que ayudan a mantener la casa limpia
Cómo un bloguero decoró una cocina de 5,8 m² en un krushchevka para su familia