Dos habitaciones de 64 m² con vista espectacular al río Moskva
Ekateryna Parshentseva creó un interior aireado y acogedor, donde no hay nada innecesario
Ekateryna Parshentseva de RodenHome decoró un apartamento de dos habitaciones con 64 metros cuadrados. La cliente es una joven independiente y deportista que quería mantener la máxima cantidad de luz y llenar el apartamento con muebles al mínimo. La prioridad es una amplia y cómoda habitación principal y un área de guardarropa, mientras que el área común debe ser tal que permita organizar fiestas y pasar tiempo con amigos. Cómo se logró hacerlo, explicó la autora del proyecto.
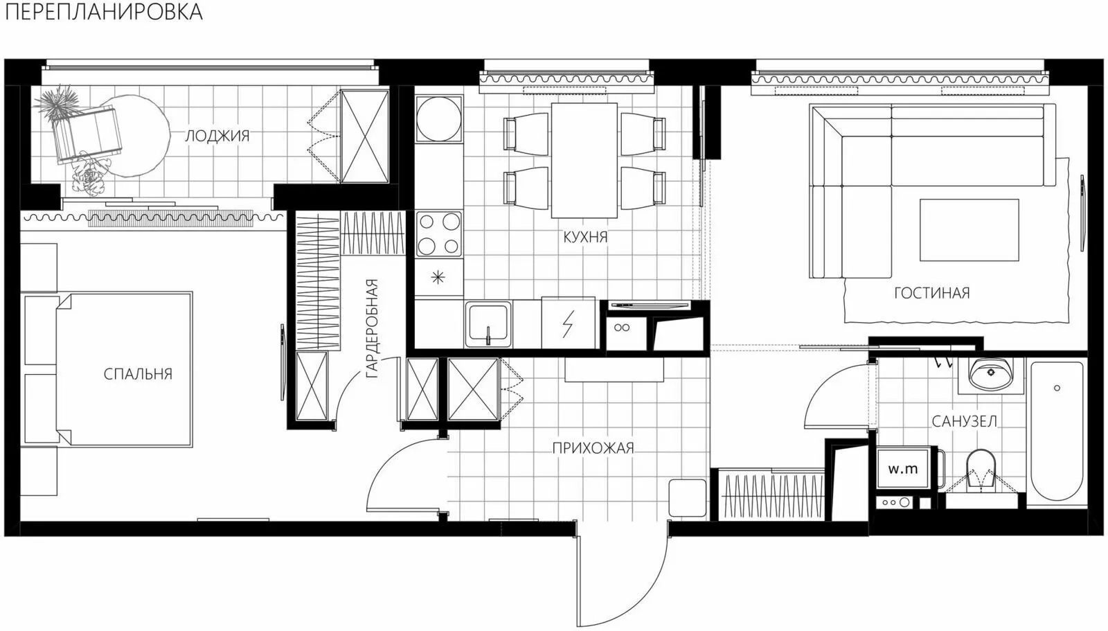
Planificación
La casa está al agua, el apartamento tiene enormes ventanas. Por lo tanto, fue importante dejar entrar las vistas al interior y hacer que las ventanas fueran el punto de referencia: estaban abiertas y accesibles en todas las habitaciones. Entre la habitación principal y la sala de estar se colocaron particiones de vidrio para delimitar espacios. Desde la habitación principal hay salida a un amplio balcón donde se organizó una zona de descanso.

Cocina
El conjunto de cocina fue hecho a medida con tonos cálidos leche. La mayoría de la electrónica está integrada, solo el refrigerador es independiente. Las puertas se eligieron sin perillas para mantener la simplicidad del diseño.

En toda la vivienda, en las zonas habitables, se usa laminado. Se eligió este material por razones económicas (es más barato que la tablilla ingenierizada), además es duradero y resistente al desgaste. Además, la cliente tenía una experiencia positiva con el uso del laminado brillante.

Sala de estar
En la zona de sala se colocó un cómodo sofá. En la pared detrás del televisor se usaron paneles 3D de yeso. Su diseño da al espacio una sensación gráfica, la pared se vuelve inmediatamente dinámica. Se pintaron los paneles con una pintura lavable de emulsión acuosa, por lo que son adecuados tanto para limpieza seca como húmeda.

Otro elemento simple pero impactante es un reloj en la sala de estar. Las agujas del reloj están colocadas dentro de un panel hecho de laminado. Se destacan con líneas negras dibujadas. Según el plan, en las paredes deberían haber inserciones de paneles de madera del color del suelo, pero el presupuesto no permitió usar la madera natural, por lo que se eligió el mismo laminado que en el suelo, pero mate. La coincidencia de color fue del 100%.

La única pieza decorativa son cuadros de resina epoxi de un artista moscovita. La cliente disfruta de vacaciones en playas de lugares exóticos, y el tema del océano era simplemente necesario en la vivienda. Gracias a la cercana relación entre el diseñador y el artista, se logró comprar los cuadros por un precio accesible. Según la cliente, estos trajeron paz y luz a casa.


Habitación principal
En la habitación principal, sobre la cama, cuelga un panel hecho de grandes figuras geométricas. Se hizo muy sencillo: se dibujó un patrón en la pared y simplemente se pintó según el diseño en los colores adecuados, dando un efecto impresionante de pared artística.


De la misma manera sencilla se decoró otra pared en la habitación principal. Gracias a las franjas de diferentes tonos de gris y una inserción de espejo, la pared de seis metros no parece monótona y embellece el espacio.


El sillón en el balcón es una restauración de un sillón vintage ergonómico de los años 60 del siglo XX.
Al diseñador le fue posible salvarlo de su inevitable desecho después de que se sacara la mobiliario de otro edificio antiguo. Este sillón fue la inspiración para crear un invernadero: se quería tener un lugar donde descansar de la agitación urbana. La vista desde la ventana al río ayudó a lograr esto.

Baño
En el baño era necesario colocar un conjunto estándar de instalaciones sanitarias: bañera, lavabo, inodoro y necesariamente una lavadora. Se logró diseñar también un sistema de almacenamiento espacioso. Encima de la lavadora hay una gran estantería para productos químicos domésticos. Y encima de la instalación del inodoro, detrás de puertas espejo, hay una pequeña pero muy espaciosa estantería para diferentes artículos necesarios que se pudieron ocultar de la vista.

En la pared detrás de la bañera, un panel con estilo todo el apartamento. Hecho de cerámica granítica de diferentes colores.

Entrada
Todos los sistemas de almacenamiento en el apartamento fueron hechos a medida. Durante su diseño, la diseñadora discutió con detalladamente con la cliente cómo llenar cada estante para dividir el almacenamiento por categorías. Calculaban la cantidad y tipos de ropa, calzado, artículos domésticos y sus cantidades futuras.
Para ahorrar presupuesto, la ejecución de los armarios se hizo combinada. Las puertas y partes visibles están en pintura, mientras que el interior es de MDF.

Fotógrafo: Ullyana Grishina
Estilista: Ekateryna Shapovalova
Marcas presentadas en el proyecto
Cocina
Revestimiento: pintura, Tikkurila
Piso: laminado, Wineo
Muebles: La Redoute, The Idea
Electrodomésticos: Bosch, Bork
Baños: Blanco
Luz: Donolux
Sala de estar
Revestimiento: pintura, Tikkurila; laminado, Wineo; paneles 3D, ArtPole
Piso: laminado, Wineo
Muebles: La Redoute, The Idea
Telón y decoración: alfombra, La Redoute; cortinas, Espocada
Tecnología: Samsung
Luz: Donolux
Baño
Revestimiento: Kerama Marazzi
Piso: Kerama Marazzi
Instalaciones sanitarias: Kaldewei, Laufen, «Aquatone»
Baños: Hansgrohe
Luz: Donolux
Entrada
Revestimiento: laminado, Wineo; pintura, Tikkurila
Piso: Italon
Muebles: The Idea
Luz: Donolux
Habitación principal
Revestimiento: papel pintado, Rasch; pintura, Tikkurila; laminado, Wineo
Piso: laminado, Wineo
Telón y decoración: ropa de cama, Linen Texture; cortinas, Espocada
Tecnología: Samsung
Luz: Donolux
¿Quieres que tu proyecto sea publicado en nuestro sitio web? Envía las fotos del interior a wow@inmyroom.ru
Need a renovation specialist?
Find verified professionals for any repair or construction job. Post your request and get offers from local experts.
You may also like
Más artículos:
Una cocina elegante de 8 m² en una pequeña vivienda típica de un cuarto
Cómo se colocó una estudio y almacenamiento oculto en 35 m²
Cómo transformar una vieja casa en un diseño moderno (fotos antes y después)
9 diseños creativos para transformar una típica segunda vivienda en una elegante
Ejemplo real: cómo transformaron barato el viejo baño en un apartamento de estilo Khrushchyov
5 pensados micro-baños de hasta 4 m² + geniales ideas
Cómo convertir una pequeña estudio de 23 m² en un rincón paradisíaco
Trés casa de 63 m² con paredes de rotband y cocina en cubo blanco