Cómo convertir una pequeña estudio de 23 m² en un rincón paradisíaco
La dueña de esta pequeña vivienda soñaba con un interior que recordara sus viajes. Logró todo eso e incluso ahorró
Los diseñadores Anna Tarasova y Varvara Ponomareva de la estudio AT-INTERIORS decoraron el interior en estilo indio en una pequeña vivienda de 23 metros cuadrados en San Petersburgo. Aprovechando al máximo el espacio, lograron ahorrar en casi todo lo que se puede.
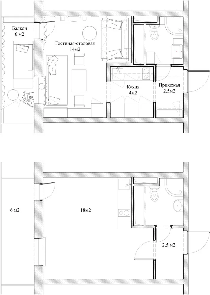
Planificación
En una pequeña superficie era necesario colocar varios lugares para dormir, que en caso necesario podrían separarse con cortinas, un estudio, una zona comedor-sala y una cocina funcional (la dueña de la vivienda ama cocinar).
También se necesitaba mucho espacio para almacenar cosas y libros que la dueña trae de sus numerosos viajes. La idea principal del diseño fue una cocina de paso.

Estilo
La cliente no le gusta quedarse mucho tiempo en un mismo lugar y se mueve constantemente por el mundo. Sus lugares favoritos son la India y Londres. Al comprar un apartamento en San Petersburgo con un presupuesto limitado, quería transmitir la atmósfera de estos lugares.

Acabados
La vivienda se compró con acabado terminado, por lo tanto no se cambiaron las paredes para pintarlas, solo se recolorieron. Se eligieron tonos naturales intensos que añaden profundidad al espacio pequeño. En el suelo, laminado.

En la habitación principal caben dos sofás. Sobre uno se diseñó un mezzanine con fachadas de persianas que fueron pintadas del color de las paredes. Otra solución de almacenamiento es un armario empotrado con puertas espejo que amplían el espacio.


A los diseñadores les gustó usar una gama no típica de San Petersburgo. Por eso decidieron usar combinaciones de verde y rosa con diferentes tonos dorados.
El presupuesto para la renovación era muy limitado, por lo que se ahorró en casi todo. En las paredes: se dejaron los papeles pintados originales y se pintaron sin cambiar la instalación eléctrica. La cocina es muy económica. La mobiliario de la sala es principalmente IKEA. El armario y estantería en el balcón, mezzanine, estantes en el vestíbulo — todo con acabado básico.



La atmósfera y el ambiente del interior se logró con un tono neutro verde, que permite que los detalles brillantes resalten.

En el balcón se creó una zona de oficina y descanso con espacios adicionales para almacenar.
En el decorado del interior se usaron activamente objetos que la cliente trajo de sus viajes. Casi cada cosa tiene su propia historia — juntas crean una atmósfera exótica.



Para la cocina de paso se diseñaron nichos a ambos lados. Para ahorrar, el ancho se calculó para los armarios estándar. Un lado tuvo los altos armarios-columnas, el otro la zona de trabajo.

Fotógrafo: Nik Rudenko
Marcas presentadas en el proyecto
Muebles: portal del horno, Home concept; IKEA
Teléfonos: H&M Home, Zara home
Decoración: H&M Home, Zara home
Need a renovation specialist?
Find verified professionals for any repair or construction job. Post your request and get offers from local experts.
You may also like
Más artículos:
Cómo decorar un interior en estilo neoclásico
7 decorativos consejos para un interior elegante e innovador
Cómo elegir la terminación exterior de la casa: 7 recomendaciones de expertos
Cómo crear un 'verano eterno' en el interior y ahorrar
Cómo transformar rápidamente y con bajo presupuesto un apartamento: consejos útiles del home stager
Cómo elegir la decoración interior de una casa que dure para siempre
5 mini casas de nuestros héroes donde definitivamente querrás vivir
5 geniales ideas económicas observadas en una dúplex blanca