Cómo se colocó una estudio y almacenamiento oculto en 35 m²
Contamos cómo, gracias a una planificación inteligente, se logró crear un interior acogedor y funcional
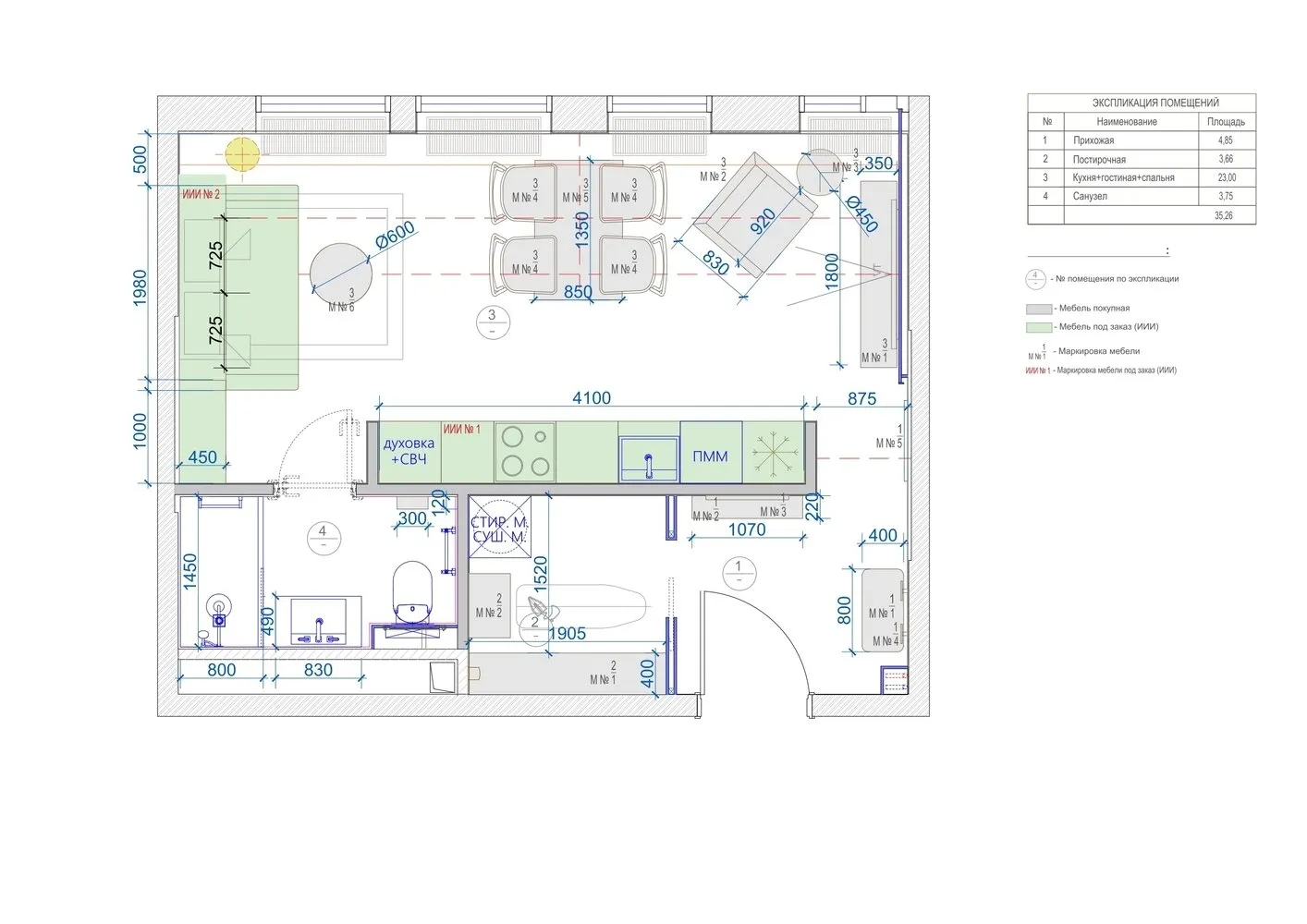
El diseñador Anna Sakharova del estudio BELLARDO creó un interior minimalista y elegante para una estudiante. La particularidad del apartamento es que en 35 metros cuadrados se encuentran tres grandes ventanas, todas en un mismo lado. Por esta razón, el espacio fue dividido en una parte habitable y una parte de servicios. Aquí te contamos los detalles.
Planificación
El apartamento se vendía sin planos, lo que permitió organizar el espacio exactamente como deseaba la dueña: con una zona social cómoda, construida siguiendo el concepto de estudio, ideal para compartir con amigos. Al mismo tiempo, por las tardes, el interior puede convertirse en una zona más privada para relajarse y prepararse para un nuevo día.

Zona habitable
El sistema de cocina lineal se integró en la nicho frente a la ventana. Visualmente no ocupa mucho espacio, pero su longitud es de 4 metros. En el centro del estudio se colocó la mesa de comedor.



La mesa de comedor puede funcionar como un espacio de trabajo cómodo o como lugar para encuentros amistosos, si es necesario.
La principal solicitud del diseño era un estilo moderno ligero con pequeños acentos de colores vibrantes. Por eso se eligieron tonos suaves de gris, olivo y nuez, con preferencia por texturas naturales cálidas.

El sofá transformable de tono beige suave invita a descansar después de un día agitado. Gracias a las tres grandes ventanas, durante el día hay mucha luz natural, y por las tardes, las cortinas blackout generan una atmósfera acogedora.


En el proyecto hay pocos elementos decorativos, pero la idea de este diseño minimalista moderno está construida para que la dueña pueda añadir cualquier detalle según su gusto, y se integre perfectamente en la composición general.
Baño
La entrada al baño está ubicada desde la zona de descanso. Para la decoración se eligió un azulejo neutro y un conjunto básico de mobiliario.

Entrada
La zona de entrada es espaciosa y elegante. Aquí se separó una habitación de guardarropa y lavandería para almacenar todo lo necesario.


Fotógrafo: Vladimir Budantsev
Marcas presentes en el proyecto
Revestimiento del piso: Korse parket
Muebles: Rubicks
Garniture de cocina: “Estilo Cocinas”
¿Quieres que tu proyecto sea publicado en nuestro sitio web? Envía las fotos del interior a wow@inmyroom.ru
Need a renovation specialist?
Find verified professionals for any repair or construction job. Post your request and get offers from local experts.
You may also like
Más artículos:
6 geniales soluciones de diseño para un interior impresionante
Cómo lograr un diseño elegante en una vivienda nueva y ahorrar
Cómo crear un interior elegante en 2023: 10 productos modernos
Antes y después: increíbles transformaciones de cocinas antiguas hechas por uno mismo
Antes y después: transformaciones increíbles de baños 'desaprovechados'
Cómo decorar un interior en estilo neoclásico
7 decorativos consejos para un interior elegante e innovador
Cómo elegir la terminación exterior de la casa: 7 recomendaciones de expertos