Cómo transformar una vieja casa en un diseño moderno (fotos antes y después)
Contamos cómo renovaron una propiedad antigua y crearon un hogar cómodo y funcional para una pareja con un niño
Una joven pareja compró un apartamento en un viejo edificio de ladrillo construido en 1957 en la zona de Lefortovo. La pareja soñaba con convertirlo en un espacio moderno y cómodo para vivir, por lo que se pusieron en contacto con diseñadores de la estudio Loft & Home. Irina Minaeva se encargó del desarrollo del proyecto de diseño, y ahora les contamos los detalles de la transformación.
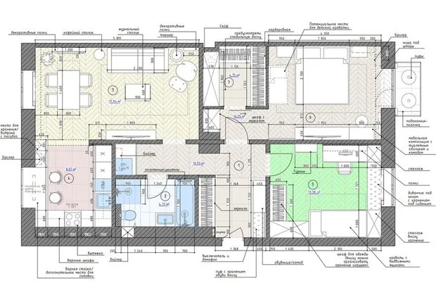
Planificación
Los clientes decidieron ahorrar y no cambiar la distribución del apartamento. El desmontaje de particiones y la construcción de nuevas paredes fue muy limitado. La cocina ya estaba conectada con la sala de estar, pero para garantizar la seguridad decidieron desactivar el gas. En una habitación se creó una habitación de dormir, mientras que en la otra se convirtió en habitación infantil. En el balcón se previó un área de descanso.

Cocina
El mueble de cocina se colocó en forma de letra P, con una barra de bar debajo de la ventana que luego se convirtió en otro bloque de armarios. Se logró instalar muchas piezas de electrodomésticos integrados y espacios para almacenamiento. A pesar de eso, la cocina no parece abultada gracias a los tonos agradables de las puertas y el granito blanco en la encimera.


Durante la renovación se instaló toda la instalación eléctrica nuevamente siguiendo las normas de construcción vigentes, se colocó la automatización ABB. Se reforzaron las tuberías de agua y calefacción, se hicieron las conexiones a los radiadores ocultas en la pared para que quedaran lo más estéticas posibles.


Fotos de la cocina antes de la renovación:
Sala de estar
Durante el desarrollo del proyecto de diseño, el diseñador simplificó la idea inicial de estilo escandinavo y añadió elementos de nueva clásica con molduras y una pinyon francesa en el suelo, empleando una paleta de colores dominada por tonos oscuros de verde y olivo. Además, incorporó acentos modernos mediante iluminación de tipo LED, muebles contemporáneos y paneles de yeso.


En los techos se instaló un material trilaminado de aislamiento acústico y amortiguador vibracional 'Terlen Vibro-M', usado para reducir el ruido impacto y aéreo. En los suelos se usó una capa de aislamiento acústico 'Shumanet-100Combi' con el fin de reducir el nivel de ruido impacto y crear una capa de impermeabilización.
Fotos de la sala antes de la renovación:
Habitación de dormir
La habitación de dormir era una sala rectangular alargada con salida al balcón. Se construyó un armario: se logró una solución de almacenamiento oculta, y además el espacio de vivienda obtuvo proporciones más correctas.


La pintura se complicó con molduras de poliuretano práctico. Al instalar las molduras de pared, se consideraron todas las dimensiones de la tecnología que se colocará en las paredes como aire acondicionado. En cuanto a los techos, son estándar de yeso con luminarias embebidas.
Fotos de la habitación antes de la renovación:
Habitación infantil
Mientras el niño es pequeño, duerme en la habitación de los padres, y esta sala se usa para recreo. El diseño se creó con la intención de que permanezca actualizado durante muchos años.

Fotos de la habitación infantil antes de la renovación:

Entrada y pasillo
Después de terminar las obras de demolición, el nivel del suelo en el apartamento quedó casi 20 cm por debajo del del vestíbulo. Había dos opciones: o crear una escalera al entrar en el apartamento y tener 10 cm adicionales de altura del techo, o nivelar el suelo hasta el nivel del vestíbulo.
Para reducir el peso de la capa de nivelación (dado que es un edificio viejo y no se debe sobrecargar los forjados), se hizo una capa de relleno con ceramita de 11 cm y una capa semisecas de 7 cm con refuerzo de malla y fibra de vidrio.

La colocación del vinilo cuarzo se hizo con el método 'árbol francés'. Se montó en juntas sobre la capa de base, pero en las áreas donde se unía con el granito cuarzo, se pegó el vinilo directamente al suelo para asegurar una unión firme.


Fotos del pasillo antes de la renovación:
Baño
En el baño se logró instalar no solo una bañera, sino también una ducha: esta solución rara vez se puede implementar en apartamentos estándar. Para colocar el inodoro colgante en la dirección correcta según el proyecto, se tuvo que modificar el conducto de desagüe de hierro fundido.

La red de agua se realizó con tuberías de polietileno reticulado Rehau Stabil 16. Los especialistas montaron una zona colectora con sistemas de protección contra filtraciones.

Fotos del baño antes de la renovación:
La renovación fue realizada por la empresa constructora 'SM Proyecto'.
Marcas presentadas en el proyecto
Entrada
Piso: vinilo cuarzo, Alpinefloor; granito cuarzo, Ariana Ceramica
Revestimiento: pintura, Derufa
Puertas: Miggliore
Cocina
Revestimiento: granito cuarzo, Italon
Lavadero: Omoikiri
Grifo: Grohe
Radiadores: Arbonia
Sala de estar
Iluminación: SWG
Enchufes y interruptores: Jung
Radiadores: Arbonia
Baño
Revestimiento: granito cuarzo, Italon
Sanitarios: bañera y lavabo, Villeroy & Boch; grifos, Grohe, Hansgrohe; inodoro, Villeroy & Boch
Puertas: Miggliore
Habitación de dormir
Piso: vinilo cuarzo, Alpinefloo
Mueble: cama, Ossen
Puerta: Miggliore
Enchufes y interruptores: Jung
Radiadores: Arbonia
Habitación infantil
Iluminación: SWG
Radiadores: Arbonia
Puertas: Miggliore
¿Quieres que tu proyecto sea publicado en nuestro sitio web? Envíanos fotos del interior a wow@inmyroom.ru
Need a renovation specialist?
Find verified professionals for any repair or construction job. Post your request and get offers from local experts.
You may also like
Más artículos:
Cómo lograr un diseño elegante en una vivienda nueva y ahorrar
Cómo crear un interior elegante en 2023: 10 productos modernos
Antes y después: increíbles transformaciones de cocinas antiguas hechas por uno mismo
Antes y después: transformaciones increíbles de baños 'desaprovechados'
Cómo decorar un interior en estilo neoclásico
7 decorativos consejos para un interior elegante e innovador
Cómo elegir la terminación exterior de la casa: 7 recomendaciones de expertos
Cómo crear un 'verano eterno' en el interior y ahorrar