Apartamento doble de 62 m² con decoración clásica en San Petersburgo
La diseñadora tomó como base el color blanco para las paredes, utilizó una fresca en la habitación principal y muebles oscuros de madera en la cocina
Maria Sofronova decoró un apartamento de dos habitaciones con una superficie de 62 metros cuadrados en San Petersburgo. Tomó como base una decoración clásica, que combinó con madera oscura y muebles diseñadores. La diseñadora explicó los detalles del remodelado.
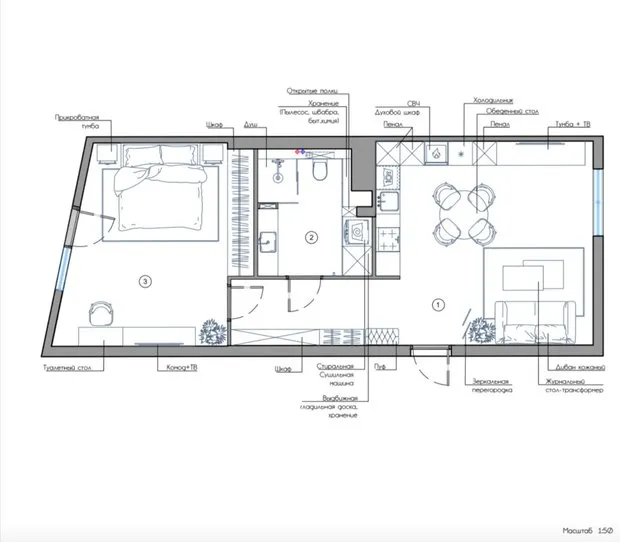
Planificación
Una característica destacada de este complejo residencial son las paredes macizas dentro del apartamento. Por eso no tocamos las paredes ni cambiamos la función de los espacios.
La principal dificultad fue que la puerta de entrada estaba prácticamente en la sala de estar. Por lo tanto, nuestra tarea era ocultarla al máximo para que se sintiera como si estuvieras en la sala de estar, no en el vestíbulo. Por eso propuse a los clientes colocar una segunda puerta, hacerla oculta, pintarla del color de las paredes y usar molduras para que se integrara aún más con la pared.

Cocina
Queríamos eliminar la sensación de "cocina", es decir, hacer que el mueble fuera lo más parecido a una pieza de mobiliario común. Por eso eliminamos los armarios superiores y el tradicional delantal de cocina, sustituyéndolo por vidrio transparente. También continuamos el tema de las molduras. Colocamos la encimera con una campana integrada.

En la cocina logramos colocar todo lo necesario. La lavadora de platos se ubicó a la izquierda del fregadero. Incluso aprovechamos la esquina, instalando una "rueda" en el armario inferior. En los compartimentos altos se colocaron el refrigerador y una columna muy práctica para almacenamiento, además de electrodomésticos integrados para que la dueña del apartamento no tenga que agacharse.



Habitación principal
Detrás de la cama en la habitación principal se utilizó una fresca. Algunos piensan que las frescas ya no están de moda, pero si se eligen composiciones suaves y delicadas, este detalle puede verse muy actual.



Baño
En el baño se utilizó cerámica granito. En el espacio logramos colocar una amplia y cómoda encimera con lavabo, ducha y gran sistema de almacenamiento a lo largo de toda la pared derecha. Una idea interesante y complicada fue implementar el diseño de una ducha con un vidrio texturizado en lugar del común.



Pasillo
Una cosa interesante fue esconder un gran armario en el pasillo, haciéndolo completamente de espejo. Otra razón fue que allí había un pasillo muy estrecho. Al principio coloqué un armario de 450 mm de profundidad, pero en el sitio el cliente insistió en la profundidad estándar de 600 mm, lo que aún más estrechó el paso. Por eso decidimos cambiar las puertas batientes por correderas. Esto añadió más guías, pero el armario se volvió mucho más espacioso.

Marcas presentadas en el proyecto
Fotógrafo: Dmitry Sushkevich
Cocina-sala de estar
Acabado: moldura de yeso, Dikart
Piso: cerámica granito, Italon
Electrodomésticos: Miele
Baños: Omoikiri
Lavabo: Omoikiri
Baño
Acabado: cerámica granito grande, Laminam; cerámica granito, Italon; decoración, Loft Oak
Piso: cerámica granito, Italon
Baño: lavabo, NT Bathrooms
Decoración: H&M Home
Habitación principal
Piso: parqué, Greenline
¿Quieres que tu proyecto sea publicado en nuestro sitio web? Envía fotos del interior a wow@inmyroom.ru
Need a renovation specialist?
Find verified professionals for any repair or construction job. Post your request and get offers from local experts.
You may also like

Cómo vivir con comodidad en una vivienda pequeña: 4 principios importantes

Lo que devalúa tu cocina: analizamos errores evidentes y no los repetimos

Cómo hacer que el aire de la casa sea más limpio: 7 métodos efectivos

Cocina en un apartamento de estilo Khrushchyov: tres variantes óptimas de distribución
Más artículos:
Cómo vivir con comodidad en una vivienda pequeña: 4 principios importantes
Lo que devalúa tu cocina: analizamos errores evidentes y no los repetimos
Cómo hacer que el aire de la casa sea más limpio: 7 métodos efectivos
Cocina en un apartamento de estilo Khrushchyov: tres variantes óptimas de distribución
7 errores principales al construir una casa de campo
5 errores que es mejor no cometer al decorar una pequeña vivienda
7 consejos para renovar tu casa de campo
11 importantes detalles del remanufactura de una vivienda de estilo krushchyovka