ANTES Y DESPUÉS: de una "doble habitación muerta" a un apartamento elegante en solo 2 meses
¿Es posible transformar una vivienda en el menor tiempo posible? ¡Claro que sí! Por ejemplo, esta doble habitación fue reconstruida por completo en un récord de dos meses.
Veamos cómo los diseñadores del estudio FlatsDesign revitalizaron una habitación común y sin destacar.
ReplanificaciónLos dueños de la doble habitación son una pareja joven con un gato, cuyo principal deseo era un diseño minimalista con zonas funcionales.
Los antiguos suelos tuvieron que ser desmontados, lo que permitió elevar los techos 15 cm. La habitación principal se reformó para tomar la forma de un cuadrado, ahora incluye una gran guardería. El baño se amplió en 1.5 m² al trasladar una pared en el vestíbulo.
De esta manera, todas las habitaciones quedaron más espaciosas.
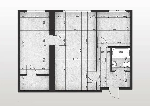
En la foto: plano de la vivienda antes y después:

AcabadosPara reducir los gastos de tiempo y dinero, el trabajo se realizó con la técnica de construcción "seca" - se instalaron suelos y particiones de yeso.
En lugar de piedra natural típica del estilo minimalista, los suelos en el vestíbulo, baño y cocina se revestieron con azulejos cerámicos Kerama Marazzi, Italon y Cersanit.


En la sala de estar y dormitorio se colocó parquet de clase económica Alpen. Se revistieron los techos con estuco y en la bañera se niveló con tabiques de yeso.


MueblesLos muebles se eligieron según las preferencias de los propietarios y el catálogo actual de grandes almacenes. La mayor parte de los artículos y textiles se compraron en IKEA y Hoff.


El conjunto de cocina con muchos armarios fue elegido en el catálogo de la fábrica "Cocinas Estilo".


Únicamente se fabricó bajo pedido una cama-plataforma con cajones integrados. No solo ahorra espacio, sino que también es más barata que sus equivalentes individuales.
En total, el presupuesto completo para la remodelación de un apartamento de dos habitaciones incluyendo muebles y acabados fue de solo 1 millón de rublos. ¿Qué opinan ustedes del resultado?


Need a renovation specialist?
Find verified professionals for any repair or construction job. Post your request and get offers from local experts.
You may also like
Más artículos:
Despejamos: 7 cosas que no deberían estar en tu cocina este año
10 consejos para una limpieza rápida y 'perezosa'
5 ideas de decoración navideña DIY que son fáciles de repetir
¡Muy Peri! 5 diseños de interiores ejecutados en el color principal del año 2022
Diseño de interiores elegante en una habitación de 500 mil rublos
Almacenamiento de cosas en una sola habitación: 5 geniales consejos prácticos
De una «doble habitación» en un viejo edificio se creó una sala moderna y espaciosa
Elegante loft en una pequeña vivienda de una habitación de 32 metros cuadrados