De una «doble habitación» en un viejo edificio se creó una sala moderna y espaciosa
Los diseñadores crearon un verdadero milagro
Incluso la más aburrida y lejos de ser nueva, puede transformarse en un hogar al que desees volver. Ese mismo milagro crearon los diseñadores de El Born Studio con una «doble habitación» en el norte de Moscú.

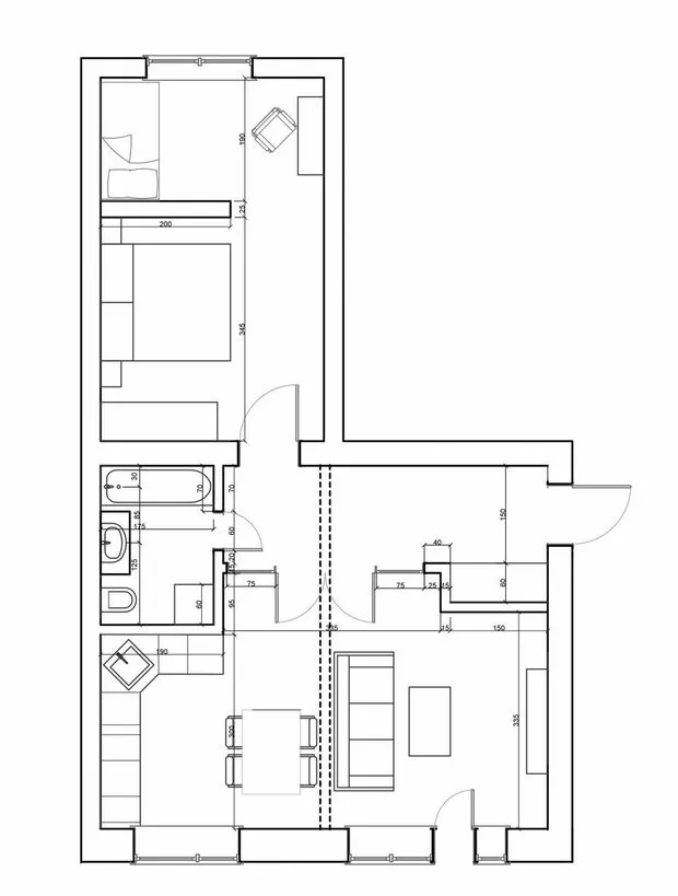
AntecedentesAnte los diseñadores Kate Alagich e Ilya Gulyants, se planteó una tarea no sencilla pero muy interesante: el dueño de la habitación pidió dejar entrar más luz y aire, así como organizar un espacio cómodo para invitados.
Los diseñadores ampliaron el pasillo, lo que visualmente añadió espacio, y separaron la cocina y salón de las otras zonas con puertas de vidrio correderas.


Paleta de coloresSe dedicó especial atención al diseño cromático del interior. El propietario quería paredes de tonos neutros para que la doble habitación no pareciera demasiado oscura ni apretada. Los diseñadores hicieron el pasillo y la cocina con salón en tonos grises, la habitación de baño en una gama leche-fistasho, y añadieron un suave tono azul celeste a la habitación principal.
Como acento brillante eligieron un tono azul para una de las paredes del salón y elementos amarillos en textiles y muebles.



La delantera de la cocina se decoró con azulejos gráficos, y el suelo del vestíbulo con paja. El pasillo se embelleció con un accesorio elegante: un espejo con marco negro.

Revestimiento y mueblesAmbos armarios fueron hechos a medida, las sábanas también se confeccionaron según los bocetos originales, y el exuberante cojín del salón fue elegido por el dueño a su gusto.

Un verdadero lujo resultó ser el sofá: fue diseñado y transportado desde el soleado Azerbaiyán. Los artesanos de otro país lograron transmitir con precisión la nitidez de líneas y forma, por lo que ahora es una fuente de orgullo del interior.
La mesa de comedor con una bonita franja contrastante fue elegida por la fábrica rusa The IDEA. La marca produce muebles que se integran fácilmente en el interior gracias a materiales naturales, amplia paleta de tonos y una gran cantidad de combinaciones de acabados. El acento amarillo en la mesa fue muy acertado.Need a renovation specialist?
Find verified professionals for any repair or construction job. Post your request and get offers from local experts.
You may also like

Megadescuentos en el Día de la Black Friday: 10 hallazgos para comodidad y belleza en tu hogar

Solución económica y sencilla para el salón de entrada en estilo estalinista (presupuesto detallado)

8 cosas que harán que la atmósfera de tu hogar sea realmente cómoda

Clásico decorado de IKEA: 11 ideas para una atmósfera navideña
Más artículos:
Megadescuentos en el Día de la Black Friday: 10 hallazgos para comodidad y belleza en tu hogar
Solución económica y sencilla para el salón de entrada en estilo estalinista (presupuesto detallado)
8 cosas que harán que la atmósfera de tu hogar sea realmente cómoda
Clásico decorado de IKEA: 11 ideas para una atmósfera navideña
Cómo crear un espacio de trabajo elegante para un freelance en una vivienda pequeña: 8 consejos del diseñador
Diseñadora nombró los mejores regalos a los que siempre se alegrarán
8 errores en la renovación de la cocina y cómo corregirlos: consejos de expertos
Acogedora cocina escandinava de 7 m² en edificio tipo panel (fotos antes y después)