Acogedora cocina escandinava de 7 m² en edificio tipo panel (fotos antes y después)
Un interior muy bonito casi sin la ayuda de un diseñador
Ya habíamos contado cómo Lariisa logró crear un cuento escandinavo real en un edificio tipo panel, pensando cada detalle del interior hasta lo más mínimo. Hoy nos detendremos en la elegante cocina de nuestra heroína.
Larisa Gavrilova — bloguera
Inspiración

Al crear nuestro interior, como muchas personas, me inspiré en imágenes de Pinterest y me basé en nuestras preferencias personales y nuestra visión sobre cómo debería ser nuestro hogar. Quería que el interior transmitiera una sensación de calma y ligereza, sin aburrirnos con el tiempo, y que nos diera una sensación de felicidad y comodidad.
El trabajo de reforma lo hicimos nosotros mismos, pero nos pusimos en contacto con un diseñador para el diseño de la distribución. La principal característica de nuestro interior es la combinación de materiales y muebles caros y económicos, con muebles de IKEA y otros hechos a medida. Intentamos lograr un equilibrio ideal entre estética y funcionalidad.
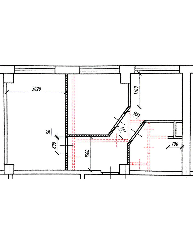
Desde el principio entendimos que sin una reforma no podríamos evitarlo, ya que en el apartamento había una cocina pequeña, un pasillo oscuro, un baño diminuto y la puerta de una habitación estaba alineada directamente con una ventana y la entrada principal. Todo eso nos molestaba profundamente y requería cambios. Afortunadamente, no había muros estructurales dentro del apartamento, por lo que comenzamos con el diseño.
Dado que en el apartamento había una cocina de gas, nunca se consideró la posibilidad de unir la cocina con la habitación adyacente: no se puede legalizar una reforma así. Además, necesitábamos esa habitación para nuestro hijo en crecimiento. En ese momento aún estaba muy lejos de la parte técnica del diseño, por lo que para tener en cuenta todos los detalles y una planificación adecuada llamamos a un diseñador para este tipo de trabajo. Fue precisamente ella quien nos sugirió una solución con un ángulo inclinado de 45°, que permitió que parte de la luz del ventana de la cocina llegara al pasillo.
Sistemas de almacenamientoLa tecnología integrada y los armarios a lo largo de toda la altura de la cocina nos permitieron ahorrar espacio y guardar todo necesario incluso en un área tan reducida. Para comodidad, solo tuvimos cajones deslizantes en la parte inferior de la cocina para evitar perder cosas dentro de los armarios.
El conjunto de la cocina lo hicimos a medida, debido al tamaño de nuestra cocina los sistemas modulares de IKEA no eran adecuados. Gracias a una planificación cuidadosa, logramos colocar todo lo necesario: refrigerador, lavavajillas, horno, superficie de cocción, extractor, microondas, lavadero espacioso y espacios para almacenar — todo en menos de 7 m².

AcabadosSe eligieron tonos claros para los acabados. Como acento se utilizó azulejo gris con patrón en la encimera de la cocina. Consideramos que la paleta de colores seleccionada debía ser cómoda y agradable para nosotros, ya que pasamos gran parte del tiempo en casa.
Optamos por una pintura ecológica alemana. Dado que es fácil actualizar la pintura, no consideramos otras opciones de acabado. En el suelo colocamos tablas de madera ingenierizada de tono neutro. Como es sabido, los niños disfrutan jugando en el suelo, y queríamos que los suelos fueran cálidos y seguros.




Fotos del apartamento antes de la reforma
Consejo principalA pesar de las dificultades que probablemente enfrentarás, definitivamente te encantará lo que obtengas al final. Lo más importante es tener paciencia y prepararte lo mejor posible: piensa en detalle cómo debe ser tu hogar, crea un proyecto de diseño o al menos un plano con la distribución de muebles, elige trabajadores confiables o un equipo de trabajo, compila una presupuesto y sigue el camino hacia la creación de tu hogar ideal.
Need a renovation specialist?
Find verified professionals for any repair or construction job. Post your request and get offers from local experts.
You may also like
Más artículos:
Cómo elegir correctamente las cortinas: consejos del diseñador
Cómo no debe diseñarse un baño combinado: 8 errores comunes
Antes y después: transformación increíble de una cocina de 6 m² en un apartamento de estilo krushchov
10 mejores novedades de IKEA que puedes comprar en línea
Pintura de paredes: 10 errores que debes conocer
Agrega comodidad otoñal con IKEA: 10 productos geniales (desde 99 rublos)
Cómo ahorrar en decoración y muebles: 10 consejos útiles
Cómo crear comodidad y belleza en casa: 6 consejos de decoradora