Diseño de interiores elegante en una habitación de 500 mil rublos
Interiores minimalistas en estilo escandinavo
Para renovar con calidad y estilo una pequeña vivienda dentro de un presupuesto limitado, la diseñadora Svetlana Melnikova creó el diseño de interiores de una habitación en menos de medio millón de rublos. Veamos cómo logró esto.
Diseño: Svetlana MelnikovaReplanificación
Esta habitación fue comprada con la intención de alquilarla posteriormente. La decoración final incluyó papel pintado, laminado, molduras de plástico, azulejos en el suelo y paredes del baño, además de puertas entre habitaciones. Aunque esto simplificó la tarea del diseñador, el espacio aún sufrió cambios significativos.
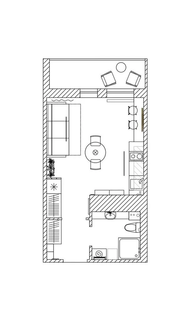
La habitación de 14,4 m² se dividió utilizando la disposición original del mobiliario compacto. Todos los elementos están colocados a una distancia óptima entre sí, y la mesa redonda en el centro une varias zonas.
Diseño: Svetlana MelnikovaEl papel pintado fue teñido con un tono más claro, se cambió el marco de PVC oscuro por uno blanco hecho de polímero duro, se pintaron las molduras de las puertas en negro y la puerta del baño en blanco. El espacio lucía más amplio y moderno.
Diseño: Svetlana MelnikovaCocina
En la cocina se incluyeron todos los elementos necesarios para una vida cómoda: una estufa con dos hornos y una ventilación, una lavavajillas y un refrigerador camuflado entre los armarios. No se colocaron objetos altos ni voluminosos para evitar sobrecargar la pequeña vivienda. El mueble se compró en IKEA, considerando el presupuesto limitado.
Dise/año: Svetlana MelnikovaBaño
Se reemplazó la ducha en el baño, se mantuvo la azulejera original en la bañera y se eliminó la decorativa con vitrales. Se colocó una azulejera oscura que luce mucho más armoniosa. También mejoraron el resto del espacio: se instaló una encimera de madera, un fregadero de superficie y un espejo redondo del estilo IKEA.
Diseño: Svetlana Melnikova
Diseño: Svetlana Melnikova
Diseño: Svetlana Melnikova
Diseño: Svetlana MelnikovaSistema de almacenamiento
Todos los armarios también se eligieron en IKEA. En el vestíbulo se colocó uno con puertas de vidrio para aumentar visualmente el espacio.
El extremo del armario en la habitación se decoró con listones de madera, lo que añadió volumen y delimitó el área general. Además, el material natural contrarrestó la apariencia voluminosa de los armarios blancos.
Diseño: Svetlana Melnikova
Diseño: Svetlana Melnikova
Diseño: Svetlana Melnikova
Diseño: Svetlana MelnikovaMuebles y decoración
Los elementos textiles y decorativos fueron adquiridos en diferentes tiendas, pero combinaron perfectamente entre sí. La idea de los dibujos con marcos sobre el sofá fue completamente desarrollada por la diseñadora en colaboración con una estilista.
Las cortinas de ventana cumplen una función estética: protegen del intenso sol solar mediante persianas enrollables en la ventana y puerta del balcón.
Diseño: Svetlana MelnikovaIluminación implementada mediante una lámpara colgante sobre la mesa y cables externos por todo el techo. Esta técnica permite manipular la luz en la habitación.
Gracias a los tonos claros del interior, la madera y el uso de espejos, se logró no solo ampliar sino también estilizar la pequeña habitación.
Diseño: Svetlana MelnikovaNeed a renovation specialist?
Find verified professionals for any repair or construction job. Post your request and get offers from local experts.
You may also like

8 presupuestos formas de renovar el interior en fin de semana

6 consejos para organizar un mini-escritorio en casa

Megadescuentos en el Día de la Black Friday: 10 hallazgos para comodidad y belleza en tu hogar

Solución económica y sencilla para el salón de entrada en estilo estalinista (presupuesto detallado)
Más artículos:
8 presupuestos formas de renovar el interior en fin de semana
6 consejos para organizar un mini-escritorio en casa
Megadescuentos en el Día de la Black Friday: 10 hallazgos para comodidad y belleza en tu hogar
Solución económica y sencilla para el salón de entrada en estilo estalinista (presupuesto detallado)
8 cosas que harán que la atmósfera de tu hogar sea realmente cómoda
Clásico decorado de IKEA: 11 ideas para una atmósfera navideña
Cómo crear un espacio de trabajo elegante para un freelance en una vivienda pequeña: 8 consejos del diseñador
Diseñadora nombró los mejores regalos a los que siempre se alegrarán