8 soluciones de diseño que querrás repetir
Ideas geniales en un apartamento de 59 m²
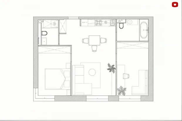
El apartamento tiene un área de 59 m² y se encuentra en una propiedad nueva en el piso 35. La dueña, Valeria, es diseñadora por profesión y se encargó personalmente de la distribución espacial. Para ella era importante permitir la máxima cantidad de luz, crear un espacio abierto y planificar cuidadosamente las combinaciones de colores en toda la vivienda. Todas las ideas más interesantes del diseño del proyecto las recogimos en este artículo.
1. Replanificación
A menudo, una reconfiguración es la mejor solución para ampliar el espacio, haciendo que el apartamento no solo sea más espacioso sino también más luminoso. Nuestra heroína Valeria utilizó esta solución para eliminar los pasillos. La unión de varias zonas: entrada, cocina y sala de estar, permitió crear un espacio abierto desde la entrada.

2. Acabados
Las paredes de todo el apartamento están compuestas por una mezcla de varios materiales de construcción. La principal ventaja de esta técnica es la facilidad para cambiar el color sin alterar la textura.

Además, nuestra heroína decidió prescindir de los molduras, lo cual resulta conveniente para la limpieza.

3. Solución de colores
El armario y la cocina están hechos del mismo color y material, lo que los hace parecer cubos arquitectónicos. La puerta de entrada está pintada en un color oscuro, lo que refuerza el efecto visual.

La continuidad de la idea creativa del diseño son las puertas entre habitaciones con montaje oculto en un tono similar al del grafito, lo que aporta estética y minimalismo al interior. El material de las puertas es madera laminada.
4. Aire acondicionado
Otra solución inusual fue el uso de un aire acondicionado de canal. Se hizo una abertura en el techo de más de 20 cm en la zona de entrada y cocina. Esto permitió visualmente separar la sala de estar. La caja del aire acondicionado en la habitación principal permitió instalar un sistema de almacenamiento integrado a toda la pared.

5. Área de descanso
La característica destacada del apartamento es la ventana angular en la habitación principal. Para quienes disfrutan sentarse con una taza de té caliente y un libro en la mano, su amplio borde de ventana es perfecto.

6. Iluminación
Como fuente principal de luz en la habitación principal, se usan focos blancos empotrados: encendidos cerca de la puerta y apagados cerca de la cama, lo que es muy práctico.

Consejo: al planificar el esquema de instalación eléctrica, prevé con anticipación la ubicación de interruptores de paso.
7. Almacenamiento adicional en la cocina
Además de los espacios principales de almacenamiento en la cocina, que Valeria previó suficientes, hay soluciones secretas. Bajo los muebles de cocina, la dueña utiliza pequeños cajones deslizables que ocultan las patas del mueble de cocina. Esta solución creativa resuelve dos problemas de manera simultánea para todas las dueñas de casa.

8. Refrigerador
Al final, no sobró espacio para almacenar los productos en el refrigerador integrado. Comprar uno independiente habría afectado el diseño. Pero Valeria encontró una solución a esta situación. Instaló un refrigerador estético en la zona de comedor, cuyas principales ventajas son su apariencia atractiva y gran capacidad de almacenamiento.

Need a renovation specialist?
Find verified professionals for any repair or construction job. Post your request and get offers from local experts.
You may also like
Más artículos:
Principales tendencias en la decoración de interiores de apartamentos en 2022
Despejamos: 7 cosas que no deberían estar en tu cocina este año
10 consejos para una limpieza rápida y 'perezosa'
5 ideas de decoración navideña DIY que son fáciles de repetir
¡Muy Peri! 5 diseños de interiores ejecutados en el color principal del año 2022
Diseño de interiores elegante en una habitación de 500 mil rublos
Almacenamiento de cosas en una sola habitación: 5 geniales consejos prácticos
De una «doble habitación» en un viejo edificio se creó una sala moderna y espaciosa