Warm Minimalism / Alexander Tishler / Russia - Ideas for Home - REMONTNIK.PRO

Warm Minimalism / Alexander Tishler / Russia

Share:
This page is also available in the following languages:🇷🇺🇺🇦🇫🇷🇩🇪🇪🇸🇵🇱🇨🇳🇮🇳🇯🇵
Cozy modern living room with natural lighting, minimalist design, fluffy sofa, abstract pillows and elegant black blinds. The perfect spot for modern interior and architectural design.

Bright Urban Retreat

The client for this project was a young professional with a busy schedule who asked Alexander Tishler's design studio to create a space that would be warm, calm and restorative. The result is an apartment where soft minimalism meets tactile comfort, defined by calm neutral tones, oak furniture and gentle contrasts of texture and tone. Each element was designed and implemented by an integrated team of studio designers, engineers and finishing specialists, ensuring harmony between concept and execution.

Apartment with warm minimalism from Alexander Tishler's design studio - sofa in Moscow, RussiaPhoto © Olga KarapetyanWarm minimalism from Alexander Tishler's design studio - dining area with round table in Moscow, RussiaPhoto © Olga Karapetyan

From Constraints to Clarity

The original project had several challenges: limited natural light, a small wardrobe and restricted space for an external air conditioning unit. Through precise reconfiguration the team removed partitions, expanded the wardrobe and relocated the hallway to enlarge both bathrooms. Now the space looks like a unified bright continuum from the entrance door to the bedroom.

  • The entrance area and living room are separated only by a shallow cabinet shelf, allowing sunlight to penetrate deep into the space.
  • The utility block is discreetly placed to house the ventilation system.
  • The balcony, previously unused due to summer heat, now contains a compact soundproof room for the external air conditioner and airflow supply — ensuring efficiency without altering the facade.

This thoughtful redesign transformed a small apartment into a space that appears open, functional and balanced.

Minimalist hallway with inset doors - apartment with warm minimalism from Alexander Tishler's design studio in MoscowPhoto © Olga KarapetyanLong minimalist hallway with inset doors - apartment with warm minimalism from Alexander Tishler's design studio, MoscowPhoto © Olga Karapetyan

Materials and Craftsmanship

Natural warmth and lightness define the color palette. The kitchen combines oak cabinets with custom paint developed specifically for this interior. Extending the lower cabinets to floor level created a continuous four-meter work surface, serving as both workspace and visual focal point.

In the living area, the sofa with a sideboard serves as hidden storage, while the decorative dining table with a soft base adds gentleness to minimalist lines. The movable desk lamp connects the dining and living areas, enhancing flexibility and intimacy.

In all rooms built-in elements are designed to harmonize with the architecture:

  • In the hallway, a large cabinet painted in wall color conceals household appliances, while the mirror door increases perceived space.
  • A full-height mirror built between wall panels adds a 'portal' effect.
  • The hanging shelf at the entrance hides the robot vacuum's charging station, integrating technology into the interior.
Kitchen overview with travertine underlayment and white cabinetry - warm minimalism from Alexander Tishler's design studio, MoscowPhoto © Olga KarapetyanKitchen cabinet details in apartment with warm minimalism from Alexander Tishler's design studio, MoscowPhoto © Olga KarapetyanHigh kitchen cabinet details in apartment with warm minimalism from Alexander Tishler's design studio, MoscowPhoto © Olga KarapetyanEntrance niche with mirror and dark oak panels - warm minimalism from Alexander Tishler's design studio, MoscowPhoto © Olga KarapetyanKitchen view from doorway with oak cabinets and white front panel - warm minimalism in MoscowPhoto © Olga KarapetyanPortrait view of dining area in apartment with warm minimalism from Alexander Tishler's design studio, MoscowPhoto © Olga KarapetyanDining table details in apartment with warm minimalism from Alexander Tishler's design studio, MoscowPhoto © Olga Karapetyan

Bedrooms: Functionality, Calm and Light

The main bedroom is created as a personal sanctuary — bright, calm and comfortable. The suspended bed with inset legs enhances the sense of lightness, while a low wall panel emphasizes the horizontal line. Console toilet and illuminated round mirror add gentle luxury, while the dark minimalist table and open shelves provide an elegant workspace.

The wardrobe, slightly expanded into the guest bathroom, is equipped with custom cabinetry featuring mirrors on full doors, increasing capacity and visual depth. The guest bedroom, which can be adapted for a child's room, was slightly reduced to expand the adjacent bathroom — showing the balance between form and practicality of the team.

Bedroom corner with city view - warm minimalism from Alexander Tishler's design studio, MoscowPhoto © Olga KarapetyanSide view of minimalist bedroom with soft textiles - Alexander Tishler's design studio, MoscowPhoto © Olga KarapetyanBedroom toilet with round mirror and decorative sideboard - warm minimalism in MoscowPhoto © Olga KarapetyanMinimalist desk in bedroom with shelf and soft neutral tones - Alexander Tishler's design studio, MoscowPhoto © Olga KarapetyanClose-up of desk and chair in bedroom - warm minimalism from Alexander Tishler's design studio, MoscowPhoto © Olga KarapetyanView from headboard to wardrobe - warm minimalism from Alexander Tishler's design studio, MoscowPhoto © Olga KarapetyanWardrobe with mirror doors - bedroom with warm minimalism in Moscow from Alexander Tishler's design studioPhoto © Olga KarapetyanBalcony with folding doors and chair - apartment with warm minimalism from Alexander Tishler's design studio, MoscowPhoto © Olga KarapetyanClosed balcony doors with view behind - warm minimalism from Alexander Tishler's design studio, MoscowPhoto © Olga KarapetyanGuest room sofa with graphic art and table lamp - warm minimalism in MoscowPhoto © Olga Karapetyan

Bathrooms: Soft Light and Spa-like Comfort

The central element of the main bathroom is a window overlooking the modern district, softly shaded by bamboo blinds resistant to humidity. The bathtub is wrapped in tile with a travertine texture, matching the wall finish, and the entire frame is subtly angled for seamless water drainage. Opposite the entrance a wall-mounted sink with built-in basin maintains visual lightness, while hidden cabinets add functionality without clutter.

Every element—from integrated lighting to inset shelves—was designed to enhance tranquility and continuity.

Bathroom with bathtub and large window - warm minimalism from Alexander Tishler's design studio, MoscowPhoto © Olga KarapetyanBathtub details with vertical radiator - warm minimalism, MoscowPhoto © Olga KarapetyanBathroom with blinds over bathtub - warm minimalism from Alexander Tishler's design studioPhoto © Olga KarapetyanSink and shower accessories with striped lighting - warm minimalism in MoscowPhoto © Olga KarapetyanBathtub under window with blinds - bathroom with warm minimalism, MoscowPhoto © Olga KarapetyanBathtub with curtain and window view - warm minimalism from Alexander Tishler's design studioPhoto © Olga KarapetyanBuilt-in shelf with wooden niches - interior with warm minimalism from Alexander Tishler's design studio, MoscowPhoto © Olga Karapetyan

Engineering and Implementation

Alexander Tishler's multifunctional approach ensures design unity, budget and construction. Cost was fixed during the design phase and remained unchanged, indicating technical control by the company and transparent workflow. All engineering, installation and finishing were carried out by internal specialists ensuring quality and accuracy at every stage.

View from dining area to living room with large blinds - warm minimalism from Alexander Tishler's design studio, MoscowPhoto © Olga KarapetyanClose-up of sofa in apartment with warm minimalism from Alexander Tishler's design studio in Moscow, RussiaPhoto © Olga Karapetyan

Philosophy of Warm Minimalism

Warm minimalism: a cozy place to relax demonstrates how Alexander Tishler's design studio, under the leadership of Karen Karapetyan, transforms modern minimalism into a deeply human language of interior design. Here, minimalism does not equal restraint — it is comfort, texture and natural flow. The tone of the apartment — calm elegance — reflects the studio's philosophy: to create spaces that restore, replenish and resonate.

Second bathroom toilet with double round mirrors - warm minimalism from Alexander Tishler's design studio, MoscowPhoto © Olga KarapetyanSecond bathroom shower with rain effect and floating sink - warm minimalism, MoscowPhoto © Olga Karapetyan

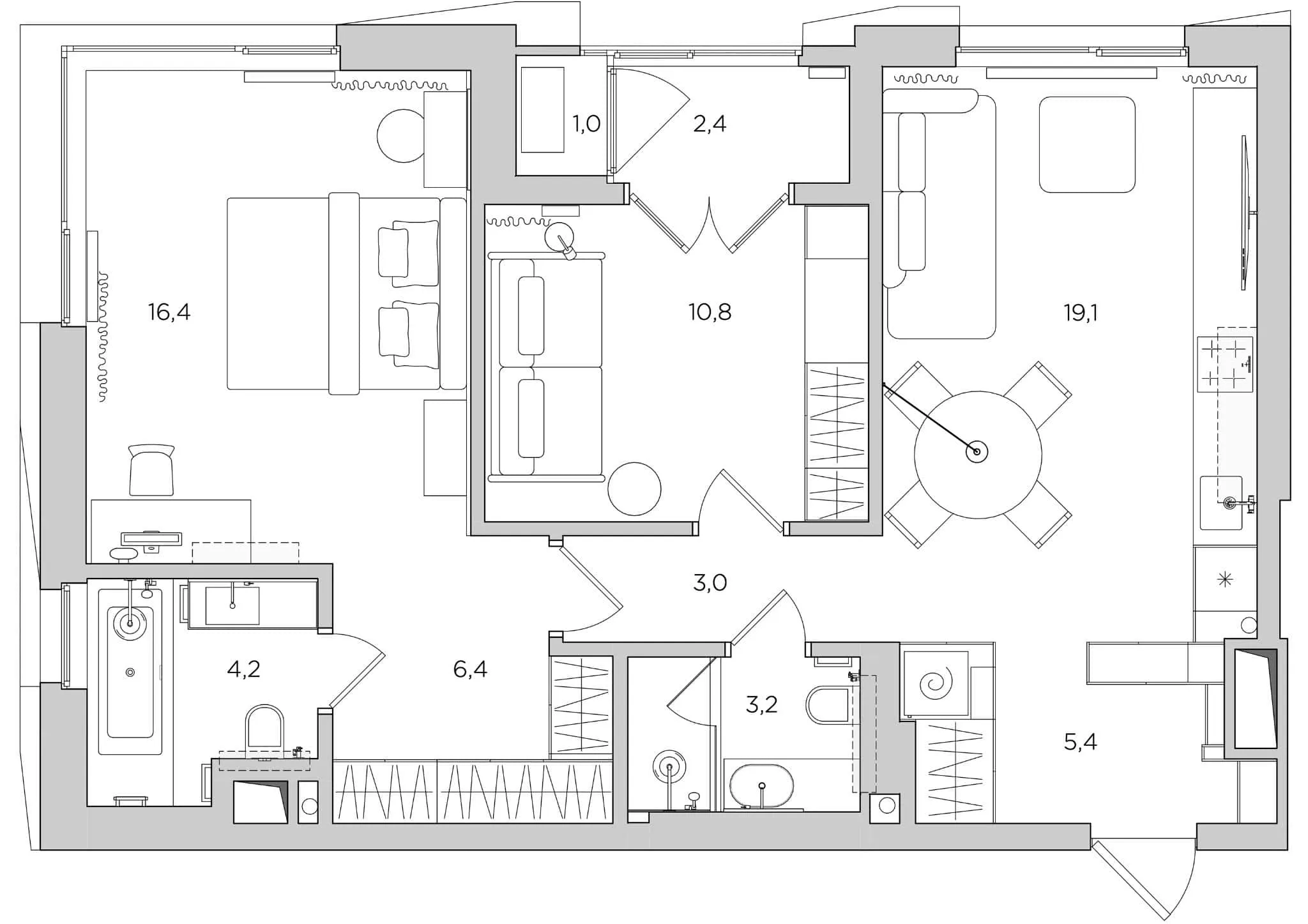
Plans: Before and After

Plan after renovation of apartment with warm minimalism from Alexander Tishler's design studio, MoscowPlan © Alexander Tishler Design StudioPlan before renovation of apartment with warm minimalism from Alexander Tishler's design studio, MoscowPlan © Alexander Tishler Design Studio

Need a renovation specialist?

Find verified professionals for any repair or construction job. Post your request and get offers from local experts.

You may also like