Monochromatischer Design und natürliche Motive in einer евротрешke 63 m²
Die Entscheidung fiel auf natürliche Töne, praktische Möbel und maßvollen Dekor
Das Projekt in dieser Wohnung wurde von den Designern Nadja Schischkowa und Lidia Sudilowskaja realisiert. Die Kunden des Projekts sind eine junge Familienpair. Sie kauften und eingerichteten diese Wohnung für ihre Eltern, die lange Zeit in einem Freizeithaus in der Natur lebten. Daher war der Wechsel in die städtische Umgebung für sie ein nicht ganz einfacher Schritt. Die Designer stellten sich die Aufgabe, einen Interior zu schaffen, der dem natürlichen und natürlichen möglichst nahekommt, aber moderne Bequemlichkeiten bietet.
Ort: Moskau
Fläche: 63,2 m²
Deckenhöhe: 3,11 m
Zimmeranzahl: 3
Badezimmer: 2
Design: Nadja Schischkowa, Lidia Sudilowskaja
Designer Lidia Sudilowskaja und Nadja SchischkowaÜber die Planung
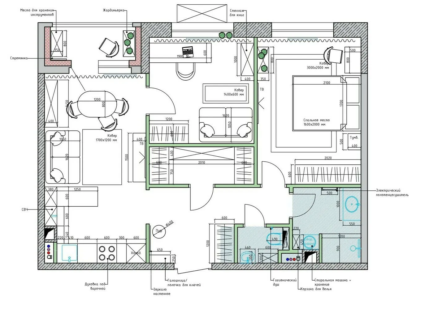
Die Wohnung wurde mit einem individuellen Projekt des Bauherren bezogen. Die Designer haben keine Änderungen an den Nasszonen vorgenommen, die Sanitärinstallation wurde nicht verschoben und die Maße der Räume wurden nicht verändert. In der Wohnung gibt es eine Küche-Gästezimmer und zwei isolierte Zimmer – eines wurde als Schlafzimmer eingerichtet, das andere als Arbeitszimmer. Auch zwei Badezimmer, eine G-Form-Eingangshalle und eine Loggia sind geplant.
Über die Küche-GästezimmerIn der Kochzone wurde ein P-Form-Küchenmodul mit Insel installiert, was besonders für die Mama der Kunden wichtig war – sie liebt es zu kochen und tut das oft. Daher schienen alle Flächen für maximale Bequemlichkeit bei der Zubereitung von Speisen notwendig. Alle Geräte sind eingebaut: Spülmaschine, Mikrowelle, elektrische Herdplatte und Ofen. Der Kühlschrank wurde separat ausgewählt.


Die Aufbewahrung in der Küche wurde sorgfältig organisiert: unten befinden sich ziehbare Schubladen, oben sind Türen ohne Griff. Die Fronten wurden 2 cm unter dem Standardniveau gesetzt, was es ermöglicht, sie einfach zu öffnen, indem man einfach hineinzieht. Dies macht die Nutzung der Küche bequemer und funktionaler. In der Gästezimmer wurde ein eigenständiger Buffet aufgestellt, der aus dem Vorrat gekauft wurde und zum Lagern schöner Töpfe gedacht ist.

Die Wandverkleidung in den Räumen wurde mit hellen Wänden ausgeführt, der Boden mit Quarzvinyl mit einer angenehmen Holzfaserstruktur. In der Gästezimmer wurde eine gemütliche Zone mit einem aufklappbaren Sofa, einer Vitrine für Töpfe und einem TV eingerichtet, unter dem sich ein Kommode befindet. Es war wichtig, einen komfortablen Raum zu schaffen, daher passen alle Elemente des Interiors harmonisch in das Zimmer ein, ohne das Gefühl von Englichkeit zu erzeugen. An der Fensterfront wurde ein aufklappbarer Essplatz mit weichen Stühlen aufgestellt – dies ist ein komfortabler Platz zum Empfang von Gästen und Familienabendessen.

Über das SchlafzimmerIn der Schlafzimmereinrichtung wünschte sich die Mama der Kunden grüne Akzente, und die Designer erfüllten ihren Wunsch. Das Zimmer wurde am lebhaftesten im Haus durch das Textil: Polsterung des Betts, Vorhänge, Teppich und grüner Plaid. Dies schuf eine gemütliche Atmosphäre und fügte Lebensfarben in das Interieur hinzu.


Es war wichtig, einen Waschbecken mit Spiegel zu planen, damit die Mama sich leicht um ihre eigene Pflege kümmern kann. Gegenüber des Waschbeckens wurde eine Regal mit Haustieren aufgestellt, da sie sehr gerne Blumen anpflanzt. Um das grüne Farbton harmonisch zu ergänzen, wurde ein Nachtisch in einem ruhigen Orangefarbenen Ton ausgewählt, der perfekt zu der dekorativen Kissen und den Blumentöpfen passt.

Über das ArbeitszimmerDas Arbeitszimmer wurde so geplant, dass es als Gästezimmer genutzt werden kann. Hier wurde ein kleiner aufklappbarer Sofa aufgestellt, der sich leicht für einen komfortablen Schlaf umwandeln lässt. Für die Aufbewahrung ist ein Schrank mit Jalousie-Fronten vorgesehen. Der Arbeitsplatz schafft einen funktionalen Raum für Studium oder Arbeit, und ein kleiner Regal ist perfekt für die Aufbewahrung von Dekor.

Die Mama der Kunden war ein ehemaliger Apothekerin, sie arbeitete die ganze Zeit in einer Apotheke. Wir entschieden uns, echte medizinische Flaschen als Vase zu verwenden – die Mama war begeistert!
Über die EingangshalleIn der Eingangshalle wurde eine Akzentwand aus Holz-3D-Platten erstellt – die Verwendung interessanter Texturen hilft, die Ebene zu vermeiden und dem Raum Ausdruck zu verleihen. Die Farbe der Platten harmoniert mit dem Quarzvinyl-Bodenbelag und den Türen, wodurch die Vollständigkeit und Einheit des Interiors gewährleistet wird. In der Eingangshalle wurde auch ein großer Schrank bis zur Decke, eine Kommode und ein Bodenspiegel installiert.



Über die BadezimmerIn der Wohnung gibt es zwei Badezimmer. In dem ersten befindet sich eine Dusche, eine Waschbeckenkommode und ein Schrank mit einer Waschmaschine. Hier wurde eine Akzentwand aus Kies eingerichtet. Der passende Material wurde im Baumarkt aus dem Vorrat genommen. Die Hauptidee war es, das Gefühl der Harmonie mit der Natur und Natürlichkeit zu erreichen.


Im zweiten Badezimmer gibt es einen WC, eine Waschbecken und ein Regal. Das Holzregal wurde mit einer einfachen Holzplatte ergänzt. Wir probierten verschiedene Ausführungsvarianten aus und fanden einen Handwerker auf Avito, der sie nach Maß schnitt und mit Öl von der gewünschten Farbe behandelte.

Wollen Sie, dass Ihr Projekt auf unserer Website veröffentlicht wird? Senden Sie uns Fotos des Interiors an wow@inmyroom.ru.Need a renovation specialist?
Find verified professionals for any repair or construction job. Post your request and get offers from local experts.
You may also like

Villa Harry aus „Weißem Lotus“: Luxus, der fast jedem zugänglich ist

Vor und nach: Wie fantastisch die Küchen-Eingangshalle auf einer verlassenen Ferienunterkunft umgewandelt wurde

Garten Trends 2025: Was man in der Wohnung und auf dem Bauernhof pflanzen sollte, um im Trend zu bleiben

Wie der Herrenhaus von Stars „Weißer Lotus“ Walton Goggins aussieht: Jagdhütte mit hundertjähriger Geschichte
Weitere Artikel:
Villa Harry aus „Weißem Lotus“: Luxus, der fast jedem zugänglich ist
Vor und nach: Wie fantastisch die Küchen-Eingangshalle auf einer verlassenen Ferienunterkunft umgewandelt wurde
Garten Trends 2025: Was man in der Wohnung und auf dem Bauernhof pflanzen sollte, um im Trend zu bleiben
Wie der Herrenhaus von Stars „Weißer Lotus“ Walton Goggins aussieht: Jagdhütte mit hundertjähriger Geschichte
Wie ein Designer die Küche ohne Oberflächenregale und Abzugsgerät gestaltet hat
Wie ein Designer eine stylische Eingangshalle in einer kleinen Wohnung gestaltet hat
Küche in einer Ecke: Wie ein Designer alles in einem kleinen Raum unterbracht hat
So gestalten Sie eine kleine Badezimmer-Fläche: Ein Designer-Beispiel