Wie ein Designer die Küche ohne Oberflächenregale und Abzugsgerät gestaltet hat
Das Interieur wirkt gleichzeitig hell, gemütlich und voller Nostalgie
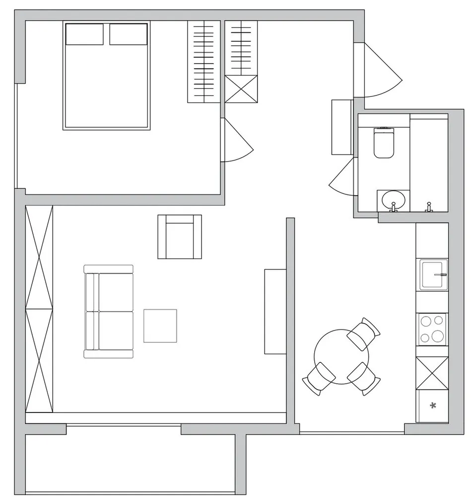
Die 54 Quadratmeter große Wohnung hat der Designerin Tatjana Atjukina für die Auftraggeberin entworfen, die als HR-Experte arbeitet, sich für Musik interessiert und vintage Möbel sammelt.
Eine der wichtigsten Wünsche der Eigentümerin war es, ihre familiären Gegenstände – ein Schreibtisch aus den 60er Jahren, Regale, Stühle und Sessel – in ein modernes, helles Interieur einzufügen.

Ein glückliches Fensterlayout half: Die südwestliche Ausrichtung sorgt für viel Sonne, daher wurden die Türen zwischen den Räumen entfernt, damit Licht in alle Bereiche dringt. Obwohl das Budget begrenzt war, gelang es dem Designer, Individualität zu bewahren. Alle Entscheidungen basierten auf einem Gleichgewicht zwischen Ästhetik und Funktionalität.
Design: Tatjana AtjukinaDank einer sorgfältigen Raumaufteilung entstand ein Interieur, in dem alte Dinge nicht zufällig wirken, sondern zum sinnvollen Zentrum werden.
Die Küche wurde maßgeschneidert gefertigt und vollständig auf die Bedürfnisse der Eigentümerin zugeschnitten. In der unteren Teil des Küchenmoduls sind die Waschmaschine, der Müllcontainer, die Trocknung und Lagerräume versteckt – alles Notwendige bleibt leicht erreichbar, ohne den Raum zu überfüllen.
Design: Tatjana AtjukinaDie Oberflächenregale und die Abzugsgarage wurden nicht installiert: Die Eigentümerin kocht selten, daher hat der Designer auf visuelle Leichtigkeit gesetzt. Durch das Verzichten auf obere Lagerflächen wirkt die Küche fast wie ein tiefes Atemzug – Freiheit und Licht entstehen.
Design: Tatjana AtjukinaDie Backofenzone zieht Aufmerksamkeit auf sich: Zwei Ebenen Keramikstein – glatt und reliefiert – erzeugen Tiefe und sorgen für.
Design: Tatjana AtjukinaBeachten Sie das Video:
Oben sind Tapeten mit floralem Muster in pastellfarbenen Tönen aufgeklebt: Sie verleihen Gemütlichkeit und verbinden sanft die Küche mit dem Schlafzimmer, in dem dieselbe Grafik verwendet wurde.
Design: Tatjana AtjukinaTrotz des geringen Budgets wurde die Küche atmosphärisch und durchdacht. Hier gibt es keinen unnötigen Platz – nur das, was wirklich für die Eigentümerin nützlich ist. Der Verzicht auf typische Lösungen war ein Vorteil: Der Raum fühlt sich luftig und wirklich gemütlich an.
Need a renovation specialist?
Find verified professionals for any repair or construction job. Post your request and get offers from local experts.
You may also like

Vor und nach: Budget-Renovierung der Küche in einer Stalin-Appartement

Der Teehaus-Pearl (Einkommenshaus) auf der Moskauer Straße – chinesische Motive im Zentrum Moskau

6 nicht offensichtliche Orte zum Aufbewahren in einer Standardwohnung

Wie aus einer alten Stalin-Box ein maximales Komfortraum wurde: Fotos vorher und nachher
Weitere Artikel:
Vor und nach: Budget-Renovierung der Küche in einer Stalin-Appartement
Der Teehaus-Pearl (Einkommenshaus) auf der Moskauer Straße – chinesische Motive im Zentrum Moskau
6 nicht offensichtliche Orte zum Aufbewahren in einer Standardwohnung
Wie aus einer alten Stalin-Box ein maximales Komfortraum wurde: Fotos vorher und nachher
Kugelhaus an der Leningradskaya-Straße: das körnige Werk der sowjetischen Architektur
„Abgefallener Wolkenkratzer“: Geschichte eines der seltsamsten Gebäude Moskau
Vor und nach: Wie eine kleine Eingangshalle in einer Hruschtschowka verändert wurde
So hat ein Designer ihre Stalin-Küche eingerichtet: 5 tolle Ideen