Kreative Umgestaltung einer Mikro-Wohnung 29 m² für 900.000 Rubel
Wie man im Budget bleibt und alles bis ins kleinste Detail plant
Budgetrenovierung einer Wohnung – der Traum vieler Eigentümer. Scheint es wirklich möglich, den gesamten Renovierungsjob für 900.000 Rubel unterzubringen?
Genau so hoch war das Budget für das Projekt von Lyubov Utkina, die sich mit der Einrichtung einer winzigen Studio-Wohnung für ein junges Paar beschäftigte. Da die Kunden beabsichtigen, das Wohnhaus später zu vermieten, stand dem Designer nur eine Aufgabe bevor – einen Basis-Interieur mit Schlafplatz zu erstellen.
Schauen wir, wie dies in der Praxis umgesetzt wurde.
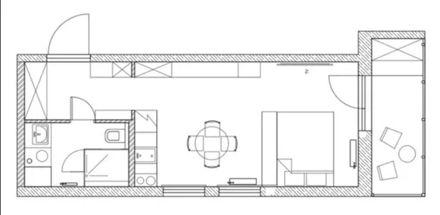
Raumkonzept

Materialien und Möbel
Ursprünglich war kein teurer Renovierungsjob geplant, daher wurden alle Kosten im Projektplan gespart. Baustoffe wurden auf Märkten gekauft, Möbel in bekannten Massen-Markt-Designern.
Allerdings konnten Möbel von IKEA und Hoff mit österreichischen Stühlen ergänzt werden, und ein Gemälde über dem Bett wurde aus einem Stück Stoff und einer IKEA-Rahmen gebaut.



Für Lyubov war die beste Lösung die deutschen Tapeten Rasch mit Dekorationsputz-Ähnlichkeit. Sie wirken deutlich teurer als klassische Materialien und machen den geringsten Teil der Ausgaben aus.

Küche
Da die Studio-Wohnung eine gestreckte Form hat, wurde die Küchen- und Schlafzone durch ein IKEA-Bücherregal getrennt. Um den Arbeitsbereich zu vergrößern, wurde die Arbeitsplatte bis an das Fensterbrett verlängert.
Die Küche wurde von einer privaten Firma realisiert: Es wurden Standard-Garnituren installiert, Schiebeablage und aufhängende Schränke.



Badezimmer
Das Badezimmer wurde mit allem Notwendigen ausgestattet, einschließlich Waschbecken, Spiegel-Schrank, Wäschetrockner und WC.
Die Duschplatform wurde umgebaut: Es musste das temperierte Glas des Duschenzauns gekürzt werden. Die Dusche mit Wassererhitzer konnte hinter den Türen mit dem Kollektor-Modul verborgen werden.


Momentan steht bereits ein IKEA-Schrank im Schlafzimmer und ein Garderobenschrank in der Eingangshalle, aber mit der Zeit möchten die Eigentümer einen weiteren auf dem Balkon aufstellen.

Need a renovation specialist?
Find verified professionals for any repair or construction job. Post your request and get offers from local experts.
You may also like
Weitere Artikel:
5 Einrichtungsstile aus den 90er Jahren, die man lassen sollte
9 Elemente im Kücheninterior, die schlechte Geschmacksrichtung des Hausherrn verraten
Idealer Ordnung auf dem Balkon: 7 Lebenshack, die funktionieren
Frühlingsaufräumarbeiten: 7 Tipps für einen perfekten Ordnung im Schrank
7 Lebenshacks, wo und wie man Winterkleidung in einer kleinen Wohnung aufbewahren kann
So machen Sie aus einem Zimmer zwei: 5 Ideen, die von Designern inspiriert wurden
Vorsicht, Betrüger! Wie Immobilienmakler sich auf Mieterinnen und Mieter einstellen
Frühling – ideale Zeit für diese Haushaltsaufgaben: Checkliste + Tipps