So machen Sie aus einem Zimmer zwei: 5 Ideen, die von Designern inspiriert wurden
Verwandeln Sie eine Einzimmerwohnung in eine Zweizimmerwohnung oder eine Zweizimmerwohnung in eine Dreizimmerwohnung – wir haben tolle Lösungen für Menschen, die ihre Wohnung umplanen möchten
Die Wohnraumplanung kann nicht passen, kann ärgerlich sein oder kann der Anfang für interessante Experimente sein. Designer wissen, wie man aus einem Zimmer zwei macht – es ist jetzt Ihre Zeit, dies zu erfahren. Notieren Sie sich die Ideen!
Einzimmerwohnung in komfortable Zweizimmerwohnung umgewandelt
Die typische Einzimmerwohnung mit einer Fläche von 43 Quadratmetern konnte von Designerin Maria Bezugkova in eine funktionale Zweizimmerwohnung umgewandelt werden. Dazu wurden alte Wände entfernt und neue aufgebaut, der Flur verkleinert und eine Zimmer in zwei getrennt: Schlafzimmer und Wohnzimmer.
Design: Maria BezugkovaIn der Wohnzimmer gibt es einen Erker, daher wirkt der Raum lichter und geräumiger. Um Licht in das Wohnzimmer und die Eingangshalle zu lassen, wurden in der Wand Glasscheiben eingebaut. Zudem wurden alle Türen mit Glasscheiben versehen – dadurch wirkt der Raum heller und leichter.
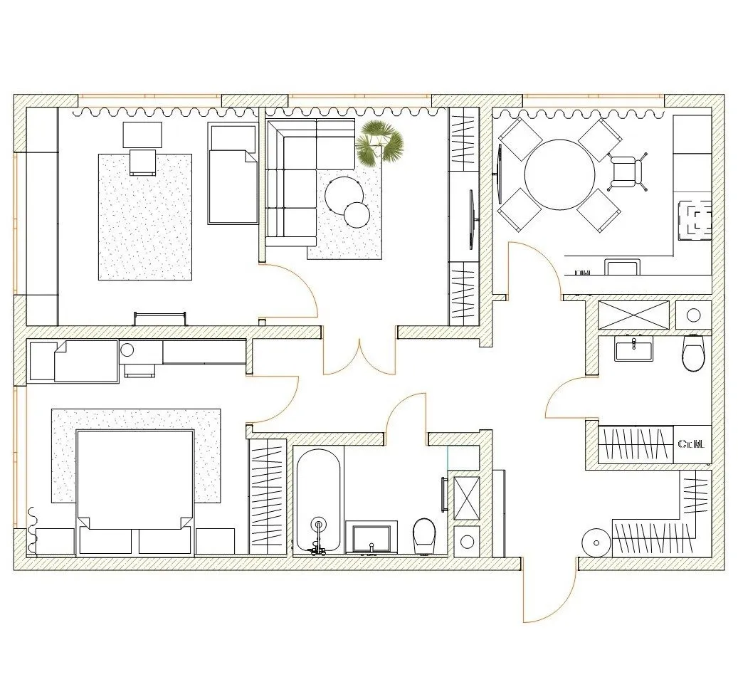
Zweizimmerwohnung mit drei RäumenEin Designer namens Anna Zueva sollte eine Zweizimmerwohnung so umplanen, dass drei Schlafzimmerräume entstehen: Schlafzimmer, Wohnzimmer und Kinderspielzimmer. Das Schlafzimmer mit etwa 13 Quadratmetern wurde nicht berührt, aber das große Wohnzimmer wurde aufgeteilt in zwei Bereiche – Wohnzimmer und Kinderspielzimmer.
Design: Anna ZuevaGlücklicherweise verfügt das große Zimmer über drei Fenster. So bleibt auch nach dem Aufbau der Wand natürliches Licht sowohl im Wohnzimmer als auch im Kinderspielzimmer.
In der Wohnzimmerbereich wurde die Sitzzone näher zum Fenster platziert. Gegenüber fand sich Platz für die Aufbewahrungslösungen: zwei Schränke und ein großes Kommode.
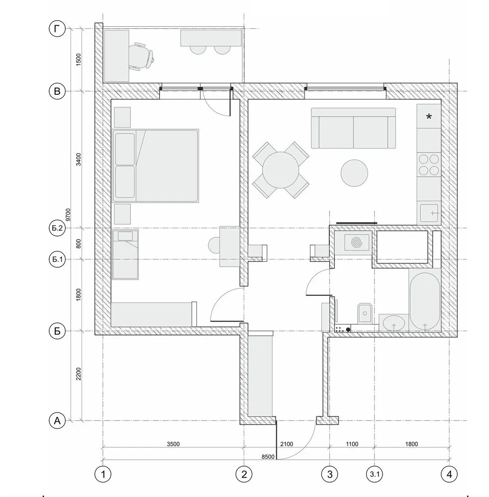
Zweizimmerwohnung mit Küche im FlurDie Umplanung in dieser Einzimmerwohnung mit 50 Quadratmetern war revolutionär – die funktionellen Bereiche haben ihre Positionen geändert. Die Küche wurde näher an den Eingang verlegt, und im freigewordenen Raum wurde ein Schlafzimmer eingerichtet.
Design: Tatjana MitevaIn der Wohnung ist eine elektrische Herd, daher konnte dieser ohne Probleme in den Flur verlegt werden, der zu einer Durchgangszone wurde. Die Kunden waren nicht beeindruckt – sie sind oft unterwegs.
Die Ess- und Ruhezone sowie das Arbeitszimmer wurden in den gemeinsamen Raum integriert. Und selbst bei diesem Layout bleibt das Zimmer nicht überfüllt. In der Schlafzimmereinrichtung wurde ein Bett aufgestellt, eine Ruhezone mit Sessel eingerichtet und eine kleine Garderobe angelegt.
Funktionales Interieur ohne große UmplanungIn diesem Projekt wurde auf eine Umplanung verzichtet. Da nichts mit der tragenden Wand gemacht werden konnte, entschied sich Designer Denis Tarasenko gemeinsam mit Kunden dafür, die Küche in einen funktionaleren Bereich umzuwandeln – eine Küche-Wohnzimmer-Kombination.
Design: Denis TarasenkoIn der weitesten Ecke des Raumes gibt es eine Art Nische – dort wurde das Küchenmodul aufgestellt. In der Mitte wurde ein bequemer Sofa und ein Sessel platziert, und die Esszone wurde an die gegenüberliegende Wand verlegt – der Tisch mit Stühlen sind aus dem Flur sichtbar.
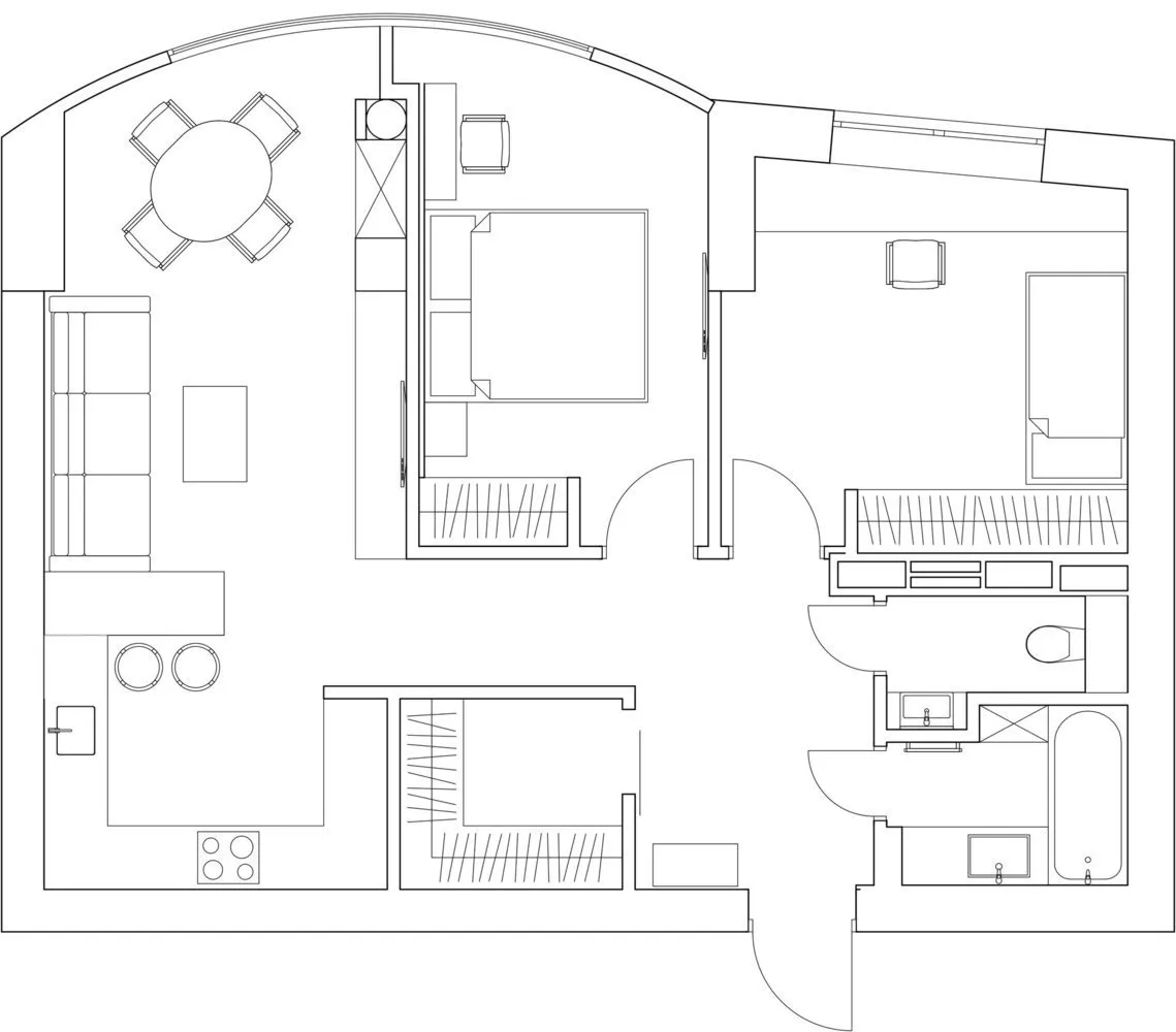
Zweizimmerwohnung in Dreizimmer umgewandelt, Küche in Flur verlegtDie Planung des Bauherren stimmte nicht mit den Kunden überein. Letztendlich konnte Designerin Veronika Zaznova die Zweizimmerwohnung in eine komfortable Dreizimmerwohnung mit verborgener Garderobe im Eingangsbereich umwandeln.
Design: Veronika ZaznovaDie große Zimmer wurde in ein Wohnzimmer- und Esszimmer sowie Schlafzimmer getrennt. Die Schwierigkeit war, dass in dem Zimmer eine runde äußere Wand mit einem Fenster bis zur Decke ist. Das Schlafzimmer und das Wohnzimmer wurden sorgfältig an der Fensteröffnung ausgerichtet, um keine unnötigen Lücken an den Stellen zu haben.

Auf der Titelseite: Design-Projekt von Tatjana Miteva
Need a renovation specialist?
Find verified professionals for any repair or construction job. Post your request and get offers from local experts.
You may also like
Weitere Artikel:
5 Dinge in Ihrem Zuhause, auf denen Sie absolut nicht sparen sollten
Coole Geschenke von IKEA ab 299 Rubel: 10 Ideen für ihn und sie
Aus welchem Material sollte der Boden in einer kleinen Studie sein? 7 erfolgreiche Beispiele
Ungewöhnliche Lösung: 9 Badezimmer mit schwarzem Akzentfarbe
Warum Ihnen Ihre Wohnung nicht gefällt: 10 mögliche Gründe
Wie eine gewöhnliche preiswürdige Küchenlösung mit vielen Lagersystemen aussieht
Küche der Träume: Wie man die Raumaufteilung, den Stil wählt und nicht mit dem Budget verheddert wird
Weiß, blau oder rosa: Welche passenden Farbkombinationen für die Küche?