3 beste Varianten zur Umgestaltung eines Panelhauses
Das Fehlen innerer tragender Wände eröffnet mehr Möglichkeiten zur Verbesserung der Wohnverhältnisse. Dennoch braucht man für eine erfolgreiche Umgestaltung einen Profi. Architektin Anastasia Kisilewa schlug Varianten zur Raumaufteilung in einem Haus der Serie 1-515-9M vor, und Experte für Umplanungen Maxim Dzuraew kommentierte die Vereinbarungsaspekte.
Kurze Informationen
Der Vorteil der Raumaufteilung in einer Trishka (57,42 qm) in der Serie 1-515-9M ist das Fehlen von innen stehenden tragenden Wänden. Jedoch gibt es einige Nachteile: Hier ist ein großer unfunktioneller Flur, eine kleine Küche und die Wohnräume haben eine geringe Fläche.
Typische RaumaufteilungVariante 1: Für eine Familie mit Kind
Die Fläche der Küche und des Wohnzimmers kann erhöht werden, indem man sie zu einer einzigen Räumlichkeit vereint. Bei dieser Raumaufteilung lässt sich ein größeres Küchenmodul einbauen. Im kombinierten Badezimmer reicht der Platz für eine vollständige Badewanne und eine Dusche. In den Wohnräumen wurde ein Elternschlafzimmer und ein Kinderzimmer eingerichtet. Hauptaufbewahrungslösungen – eine Garderobe und ein Kleiderschrank.
Meinung des Experten: Die Zustimmung ist möglich über einen Umplanungsplan und ein technisches Gutachten von jeder Projektierungsorganisation, die den entsprechenden SRO-Zugang besitzt. Zwischen Küche und Wohnzimmer muss eine Wand gebaut oder die Installation einer elektrischen Kochfelder vereinbart werden (was schwieriger ist). In der kombinierten Badezimmerfläche ist eine Wasserdichte- und Schallisolierung des Bodens erforderlich.

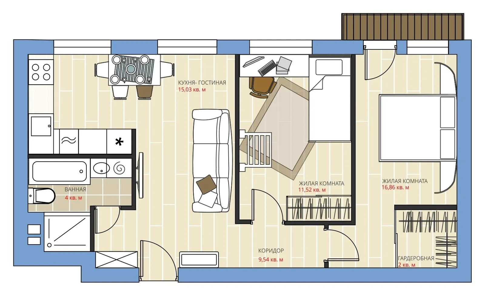
Variant 2: Für eine Familie mit zwei Kindern
Die große Fläche des Flurs erlaubt es, die Küche dorthin zu verlegen, und in der angrenzenden Wohnzimmerfläche eine Ess-/Wohnraum einzurichten. Die beiden kleinen Räume wurden für die Kinder eingerichtet. Dabei verschieben sich einige Wände leicht in Richtung der großen Wohnzimmerfläche. In der Elternschlafzimmertür wurde eine Garderobe eingerichtet – dort befindet sich der Hauptanteil aller Kleidungsstücke der Familienmitglieder. Der Badezimmerbereich blieb getrennt, daher musste die Waschmaschine unter der Waschbeckenfläche platziert werden.
Meinung des Experten: Solche Umplanungen lassen sich genehmigen, aber es braucht etwas Aufwand. Die Wohnzimmerfläche an der Stelle der Küche kann genehmigt werden, wenn die Wohnung sich im obersten Stockwerk befindet. Oder es muss in der Projektierung als Büro ausgewiesen werden. Außerdem ist eine elektrische Gasplattform erforderlich.

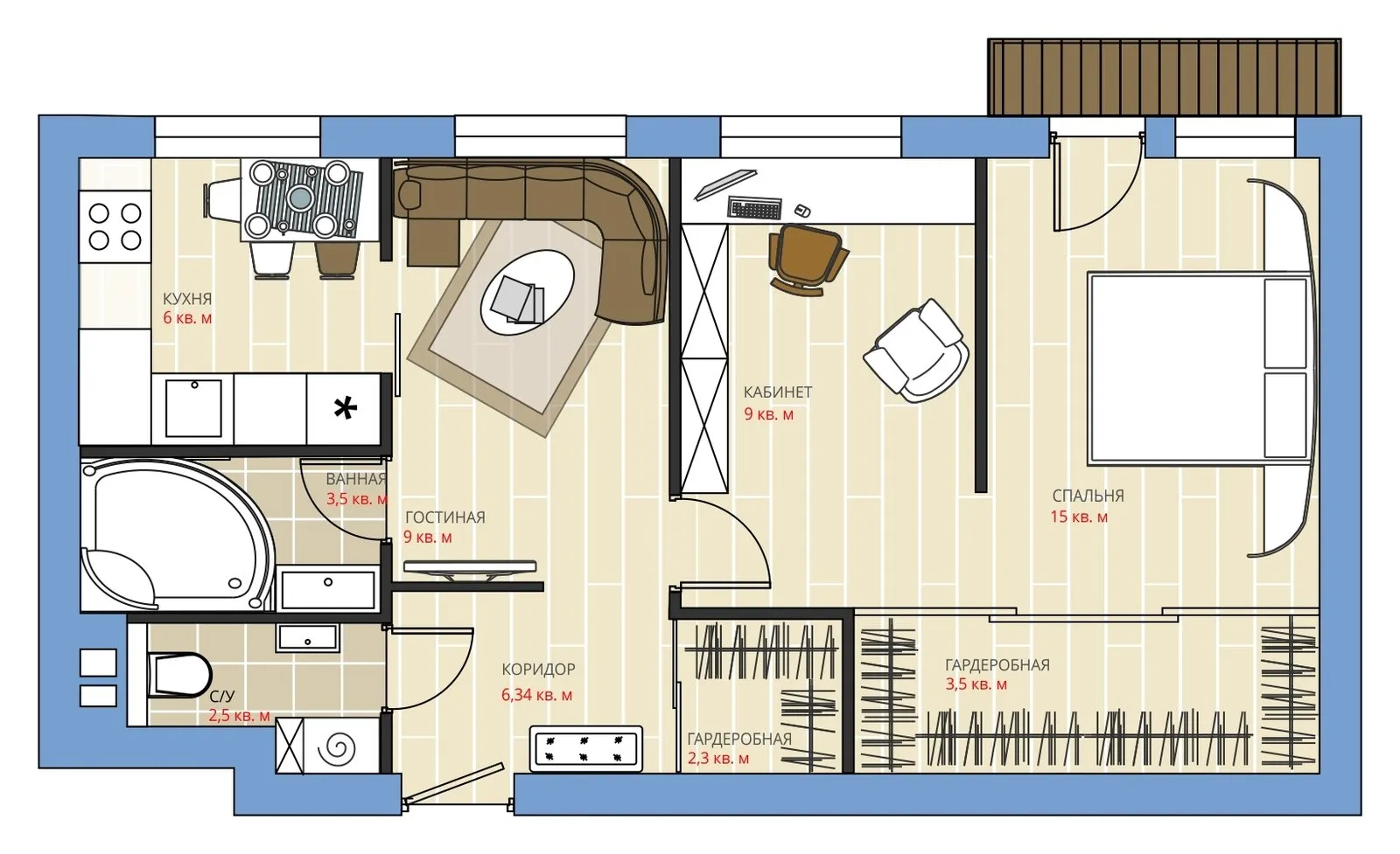
Variant 3: Für ein Paar ohne Kinder
Obwohl die Wohnung dreizimmerig ist, entspricht ihre Größe eher einer modernen Zweizimmerwohnung und eignet sich hervorragend für das Leben von zwei Personen. Die Badezimmerfläche wurde durch den Flur vergrößert: In einem Raum wurde eine große Eckbadewanne und Waschbecken installiert, im anderen ein Toilettensitz und ein eingebautes Schrank mit Waschmaschine. Der Eingang zur Küche erfolgt jetzt aus dem Wohnzimmer: Hier befindet sich ein großer Sofa und Fernseher. Die beiden Wohnräume wurden zu einer privaten Zone vereinigt mit einem vollwertigen Schlafzimmer, Arbeitszimmer und einer großen Garderobe.
Meinung des Experten: Die Genehmigung ist nicht schwierig. Es wird ein Umplanungsprojekt und ein technisches Gutachten von jeder Projektierungsorganisation benötigt, die den entsprechenden SRO-Zugang besitzt.

Auf dem Umschlag: Design-Projekt von Elena Martyniuk.
Need a renovation specialist?
Find verified professionals for any repair or construction job. Post your request and get offers from local experts.
You may also like
Weitere Artikel:
10 Tipps zur Dekoration einer Wohnung im modernen, ökologischen Stil
Wie man eine Umplanung durchführt: Regeln und Normen
Wie man legal die Größe eines Badezimmers vergrößern kann – professioneller Rat
Wie Sie die Mini-Gewächshaus SOKKER nutzen können
So sparen Sie Wasser und Geld: 8 zuverlässige Methoden
Küche in Panelbau: 3 rechtliche Planungsmöglichkeiten
Hat der Minimalismus eine Seele und für wen eignet sich dieser Interior-Stil
Skandinavische Küche mit Kamin in der Küche