A4estudio设计的阳光混凝土度假屋:门多萨的现代住宅
位于门多萨查克拉德科里亚私人住宅区,A4estudio设计的Kasa EE是一座510平方米的精致住宅,巧妙融合了自然采光、私密性和空间效率。该项目于2019至2023年间完成,由乔治·埃斯特拉达建造,景观设计由艾琳娜·拉韦尔负责。
位于门多萨查克拉德科里亚私人住宅区,A4estudio设计的Kasa EE是一座510平方米的精致住宅,巧妙融合了自然采光、私密性和空间效率。该项目于2019至2023年间完成,由乔治·埃斯特拉达建造,景观设计由艾琳娜·拉韦尔负责。
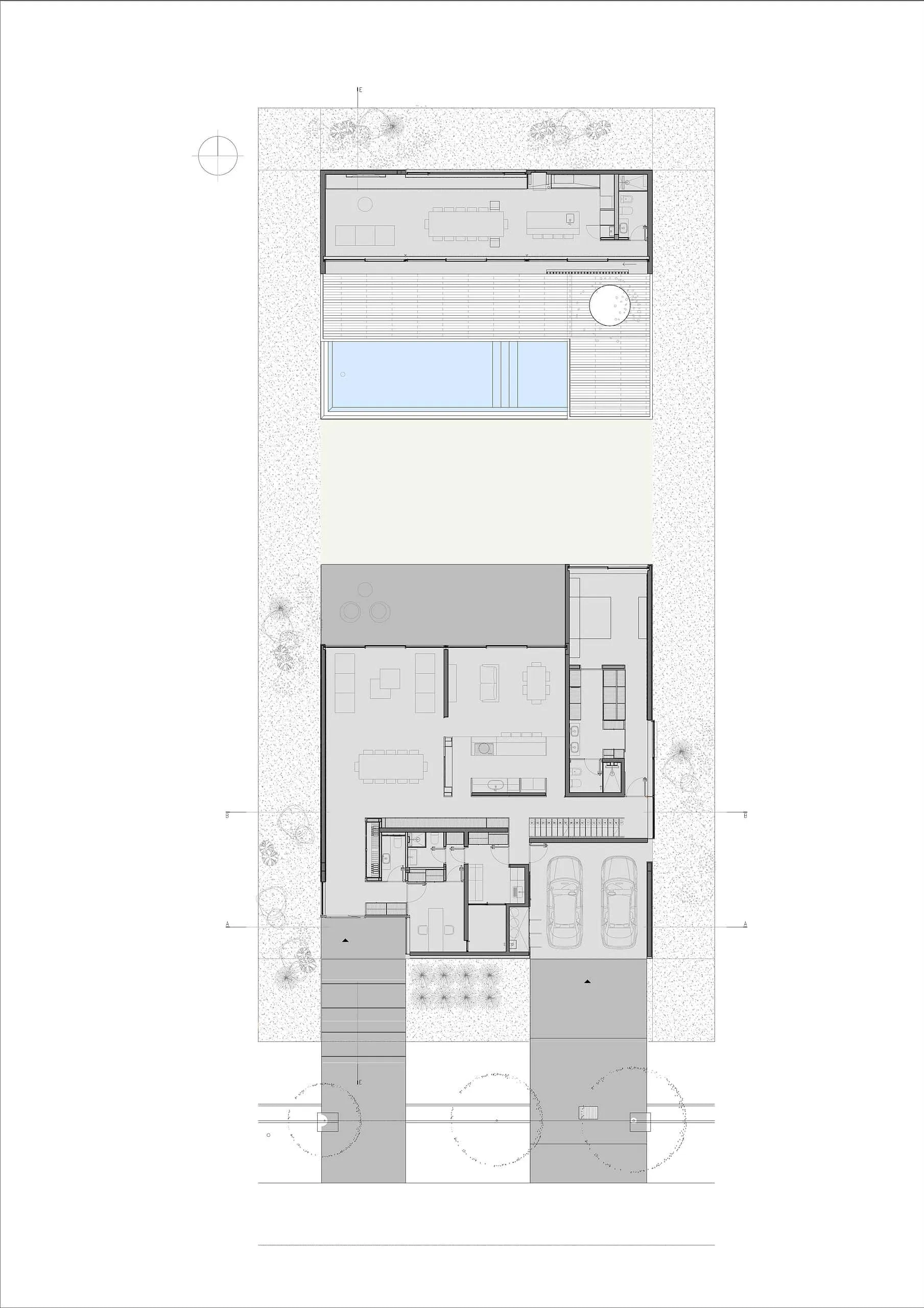
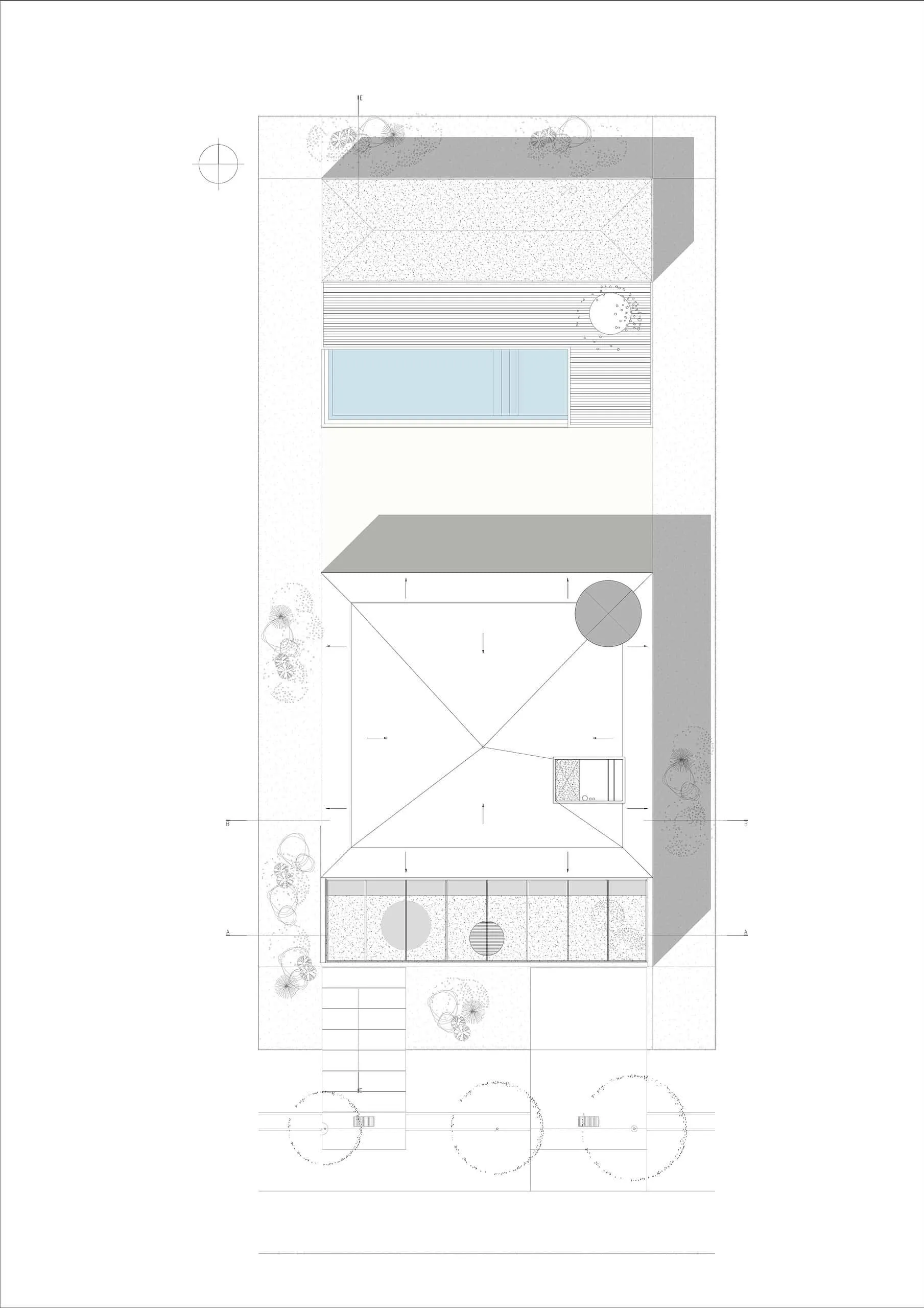
坐落在安第斯山脉背景下,Kasa EE占据了一片平坦的郊区土地。设计采用紧凑型双层住宅结构,包含四间卧室和一个集成在后院的kinchō/桑拿房(阿根廷烧烤区)。该项目符合严格的建筑面积规范,同时实现创造双层高空间的愿望——从设计之初就引导垂直组织。
光与形的对话
建筑师果断地将住宅朝向街道(南面)封闭,并在该侧布置了服务和设施用房。与此相对,北立面完全开放以最大化自然光进入主要的休闲区和餐厅。戏剧性的16米维伦德尔梁跨越此开口,作为垂直通风-日光房调节全年太阳辐射。这一结构化的照明细节投射动态阴影,随季节变化,增强舒适感和美学深度。
在上层,额外的细节为南面开放创造了半私密庭院,由厚重裸露混凝土梁限定。这种朝向的对立使建筑能够呼吸,在上层提供温馨的空间用于更私密的目的。
材料策略与热舒适性
Kasa EE以其双层材料结构为特征。底层配备保温饰面,提供中央区域的热效率。上层则以裸露混凝土为主导,赋予建筑雕塑感和纪念碑式的外观。这种分层材料性帮助住宅相对于环境进行尺度调整,并在室内外空间之间建立触觉联系。
结合被动太阳能策略、材料的坚固选择和合理的空间分区,Kasa EE展示了A4estudio的建筑语言——简约但基于语境。
摄影 © A4estudio
摄影 © A4estudio
摄影 © A4estudio
摄影 © A4estudio
摄影 © A4estudio
摄影 © A4estudio
摄影 © A4estudio
摄影 © A4estudio
摄影 © A4estudio
摄影 © A4estudio
摄影 © A4estudio
摄影 © A4estudio
摄影 © A4estudio
摄影 © A4estudio
摄影 © A4estudio
摄影 © A4estudio
摄影 © A4estudio
摄影 © A4estudio
摄影 © A4estudio
摄影 © A4estudio
摄影 © A4estudio
摄影 © A4estudio
摄影 © A4estudio
摄影 © A4estudio
摄影 © A4estudio
摄影 © A4estudio
摄影 © A4estudio
摄影 © A4estudio
摄影 © A4estudio
摄影 © A4estudio
摄影 © A4estudio
摄影 © A4estudio
摄影 © A4estudio
摄影 © A4estudio
摄影 © A4estudio
摄影 © A4estudio
摄影 © A4estudio
摄影 © A4estudio
摄影 © A4estudio
摄影 © A4estudio
摄影 © A4estudio
摄影 © A4estudio
摄影 © A4estudio
摄影 © A4estudio
摄影 © A4estudio
摄影 © A4estudio
摄影 © A4estudio
摄影 © A4estudio
摄影 © A4estudio
摄影 © A4estudio
摄影 © A4estudio
摄影 © A4estudio
摄影 © A4estudio
摄影 © A4estudio
摄影 © A4estudio
摄影 © A4estudio
摄影 © A4estudio
摄影 © A4estudio
摄影 © A4estudio
摄影 © A4estudio
摄影 © A4estudio
摄影 © A4estudio
摄影 © A4estudio
摄影 © A4estudio
摄影 © A4estudio
摄影 © A4estudio
摄影 © A4estudio
摄影 © A4estudio
摄影 © A4estudio
摄影 © A4estudio
摄影 © A4estudio
摄影 © A4estudio
摄影 © A4estudio
摄影 © A4estudio





Need a renovation specialist?
Find verified professionals for any repair or construction job. Post your request and get offers from local experts.







