设计对决:如何在板楼中布置厨房
我们邀请Maria Lazzich和Flatforfox的设计师解决一个具有挑战性的任务。在仅七平方米的空间内,他们需要设置烹饪区域、必要的电器,放置完整的餐桌,并尽量节省开支。我们展示了设计师使用的解决方案,并邀请您在文章末尾投票选出最佳选项。
设计师的简报:厨房 7.3平方米 在一个工作室房屋系列 P-44T板楼 天花板高度 2.65米 业主 年轻家庭 无子女 生活方式 热爱烹饪 和招待客人 愿望 功能性的厨房 带用餐区 + 节省预算
挑战: 厨房位于板楼的开放式公寓中。P-44T房屋的布局特点在于墙壁无法移动或调整。因此,无法扩大厨房面积或将厨房与客厅合并。
P-44T房屋系列单间公寓中7.3平方米厨房的测量平面图Flatforfox工作室的设计理念
Flatforfox设计工作室成立于2015年,主要专注于住宅室内设计
布局特征
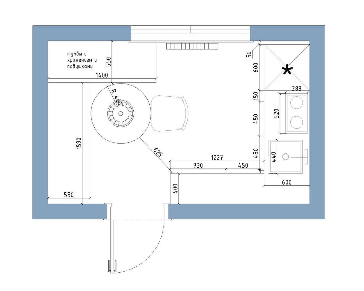
由于厨房宽度狭窄,我们选择并列式布置厨房单元。入口左侧的空间被两个高柜占据,内置冰箱、烤箱和微波炉。两者之间是操作台面,可以放置电热水壶和咖啡机。此外,在台面上方便摆放冰箱和烤箱中的食材。
右侧放置了炉灶、洗碗机和水槽的烹饪区。
装修由于预算有限,我们选择了经济实惠的材料。墙面采用防潮易清洁涂料,天花板也涂有油漆。地板可铺设陶瓷石英砖。背板选用金属板:实用、经济且易于清洁。
为了在视觉上扩大小空间,我们用镜面板装饰墙面。
家具与储物系统厨房单元将由中密度纤维板制成,门板光滑哑光。根据预算,可以选择两种饰面:中密度纤维板釉面或薄膜。台面由人造石材制成。
单元两侧都有储物空间。橱柜制作到天花板,以增加功能性。
照明照明不仅增加空间感,还能划分区域。例如,技术照明为厨房提供照明,工作区则提供任务照明。用餐区我们选择了一款带灯罩的吊灯。
Maria Lazzich的设计理念
Maria Lazzich,莫斯科Maryart室内设计工作室总经理
布局特征
由于空间有限,我们必须在我们想要的东西和最重要之处之间找到平衡。例如,我们只保留了必要的电器:冰箱、烤箱、炉灶和油烟机。
炉灶是双灶台型号。水平放置更便于在台面上烹饪。内置烤箱宽度为45厘米。油烟机嵌入上层橱柜,以避免在上层架子上浪费空间。
为了确保家具间通行顺畅,入口处的下层橱柜宽度仅为40厘米。
装修在小空间中,传统上使用浅色来装饰墙面和地板。这里我们没有例外:墙面涂有带轻微光泽的浅水性乳胶漆。这是一种实用且易于清洁的材料。用餐区墙面用镜面板装饰——现在小厨房看起来几乎双倍大。
背板我们选择了鲜艳的陶瓷瓷砖。放弃了传统图案:“松树”看起来更具原创性。地板采用中档价格区的摩洛哥风格图案瓷砖。
家具与储物厨房单元设计得足够大,以容纳所有必需物品。上层橱柜制作到天花板,配有储物架。入口右侧放置了40厘米深的橱柜,配有滑动抽屉组,便于存放电器和餐具。这些橱柜也可作为额外的食品准备工作台。
为了在餐桌旁容纳三人以上,厨房中放置了一个带软垫和内抽屉的角落橱柜,用于储物。
照明照明场景非传统。在天花板上安装了双路电源轨道灯。用餐区装饰了一个吊灯。镜面墙则安装了三个壁灯,为空间增添适当的深度。

Need a renovation specialist?
Find verified professionals for any repair or construction job. Post your request and get offers from local experts.







