索非亚住宅,保加利亚由Simple Architecture设计
请提供需要翻译的文本,我会将其翻译成中文。
项目:索非亚住宅
建筑师:Simple Architecture
位置:索非亚,保加利亚
年份:2022
摄影:Assen Emilov
Simple Architecture设计的索非亚住宅
该住宅位于黑海城市索非亚附近,坐落在拥有全景海景的地块上。
该项目包括对现有住宅的部分改造和整体视觉重塑。原有的房屋大约在15年前建成,风格模仿了索非亚当地特有的建筑元素和材料:大量倾斜的屋顶配瓦片、外墙格栅与瓷砖饰面、阳台及拱门。

客户希望实现相反的效果:打造对比鲜明、令人难忘、极简且现代的建筑风格。
项目的主要目标是尽可能减少几何体块的堆积,并突出建筑物的结构原理,同时优化室内空间布局与组织。
本项目的核心理念是营造一种轻盈、优雅且超凡脱俗的氛围,以海景为主导,并随周围自然环境不断变化的颜色为点缀。无论是室内还是外观,都采用了白色调的细微差别,并以屋内的艺术作品作为唯一的色彩亮点。

庭院设有多个休闲区域,每个区域都拥有独特的特质,为户外空间带来多样化的体验。
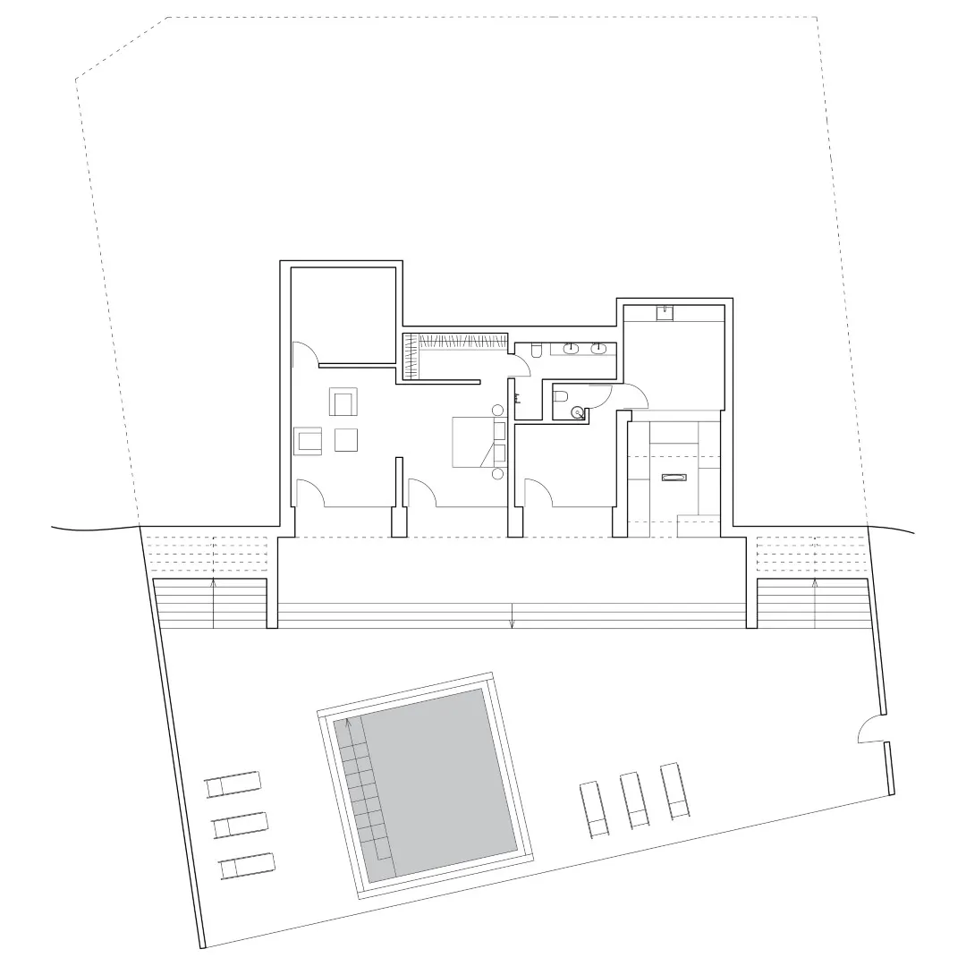
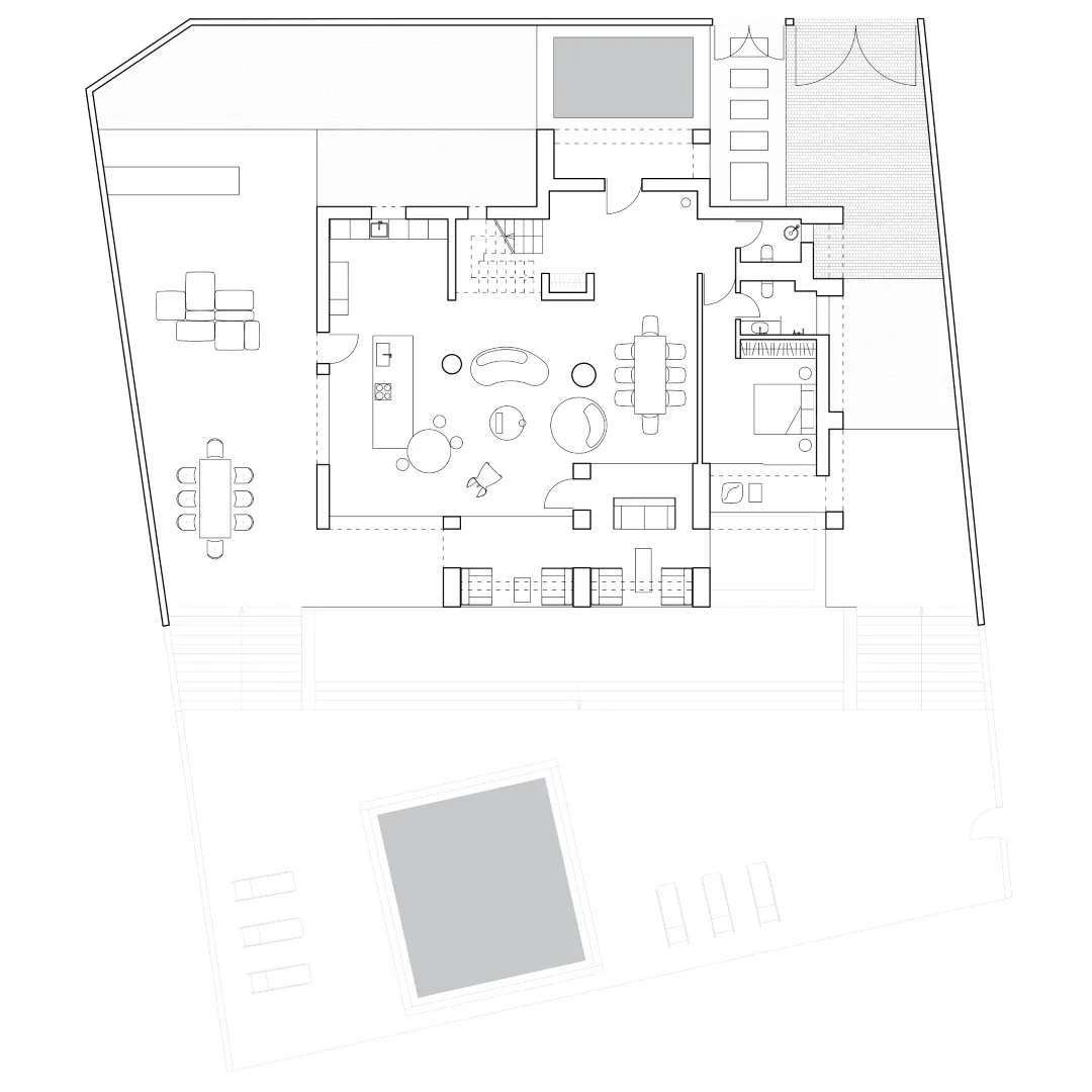
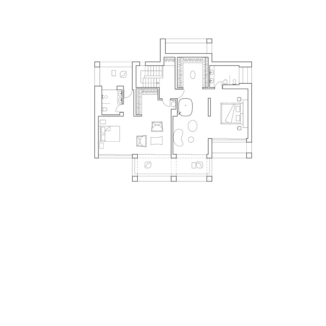
从布局上看,这栋三层住宅包含一个大的公共区域,包括客厅、厨房和餐厅。此外还有四间卧室、四间浴室、两个卫生间以及储藏室和服务设施。家具选用具有塑料质感、抽象和非传统造型的设计,旨在营造置身于艺术画廊的整体感觉。
-项目描述与图片由Simple Architecture提供














平面图









Need a renovation specialist?
Find verified professionals for any repair or construction job. Post your request and get offers from local experts.







