塔什干家用办公室:功能性与舒适性的和谐结合
塔什干现代家庭办公室概念
在塔什干市中心,The Big Picture 重新定义了现代家庭办公室,创造了一个专业高效与温暖舒适氛围完美结合的空间。该精致的办公空间专为私人客户设计,是一个多功能场所,适用于商务会议、企业活动和个人聚会。将舒适和优雅置于首位,该项目将宽敞的商业大厅转变为一个私密而温馨的避风港。
从传统办公室设计中转变
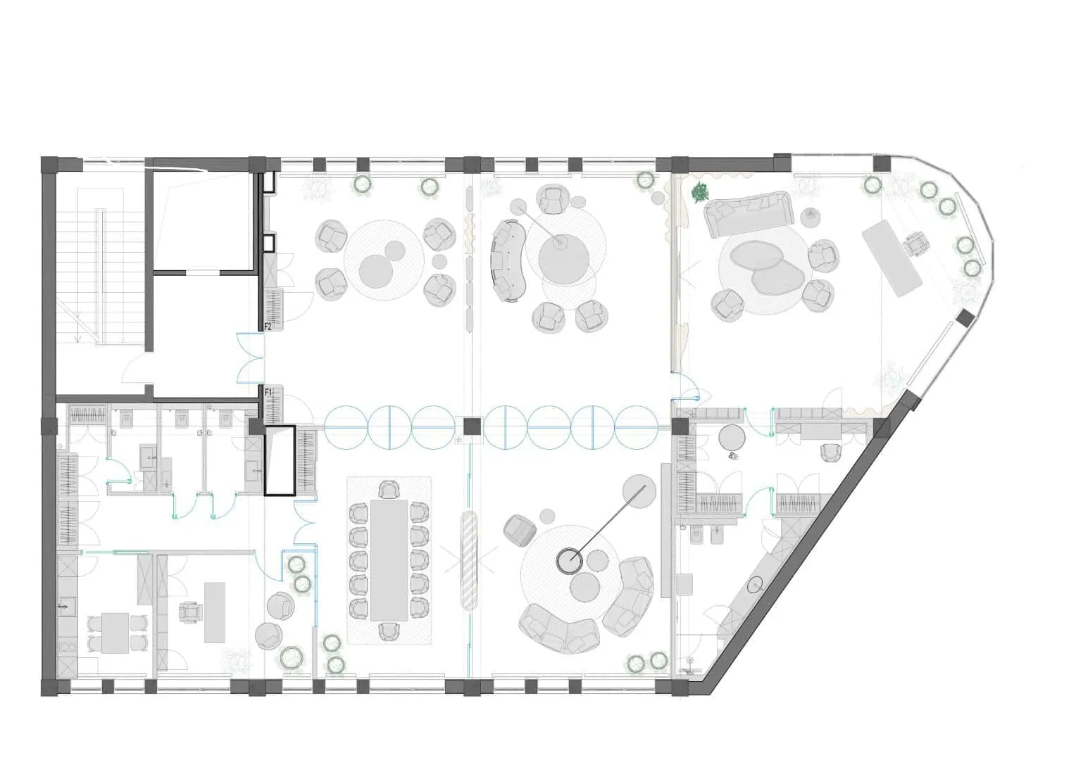
摆脱传统的办公布局理念,设计师用灵活舒适的区域取代了僵硬的会议室。相比宽敞开放的空间,该办公室提供精心挑选的温馨角落,促进有意义的对话、非正式聚会和轻松交流。客户专属私人办公室、助手工作区以及必要的技术区域均已融入设计之中,确保功能性和舒适性。
受建筑流动性启发
建筑物的圆润外观直接影响内部空间的有机流动,增强开放感的同时保持温馨氛围。两面墙未完工处理,为客户提供了可不断发展的艺术收藏和临时展览画布。这种动态方法使办公室成为一个空间,其中建筑与艺术交织融合,随着居住者的愿景不断变化。
舒适性与当地工艺的平衡
为了抵御城市生活的喧嚣,设计团队选择了温暖的木质饰面、柔软织物和舒缓纹理。使用定制圆润家具营造放松氛围,使工作区看起来像优雅的休闲室而非普通办公室。几乎所有材料均由本地供应商提供,体现了对可持续发展和社区参与的承诺。与当地工匠合作,The Big Picture 精心融合了现代欧洲影响和塔什干丰富的文化传统。精选的进口元素,如来自伊朗的大理石和斑岩,经过精心挑选以与本地设计和谐搭配。
与全球专家合作
该项目体现了 The Big Picture 的哲学,即融合全球知识与本地工艺。来自柏林、克拉科夫和塔什干的专业人士合作,创造出国际影响与地区真实性的融合。每个元素都经过精心构思,打造一个充满活力、启发灵感和归属感的空间。
超越工作空间的家庭办公室
这个项目不仅仅是一个家庭办公室。这是一个精心设计的环境,促进创造力、加强联系并激发创新。凭借现代设计与多功能性的完美结合,The Big Picture 打造了一个工作和生活和谐共存的空间,在乌兹别克斯坦树立了现代办公设计的新标准。
摄影师 © 丹尼斯·科马罗夫
摄影师 © 丹尼斯·科马罗夫
摄影师 © 丹尼斯·科马罗夫
摄影师 © 丹尼斯·科马罗夫
摄影师 © 丹尼斯·科马罗夫
摄影师 © 丹尼斯·科马罗夫
摄影师 © 丹尼斯·科马罗夫
摄影师 © 丹尼斯·科马罗夫
摄影师 © 丹尼斯·科马罗夫
摄影师 © 丹尼斯·科马罗夫
摄影师 © 丹尼斯·科马罗夫
摄影师 © 丹尼斯·科马罗夫
摄影师 © 丹尼斯·科马罗夫
摄影师 © 丹尼斯·科马罗夫
摄影师 © 丹尼斯·科马罗夫
摄影师 © 丹尼斯·科马罗夫
摄影师 © 丹尼斯·科马罗夫
摄影师 © 丹尼斯·科马罗夫
摄影师 © 丹尼斯·科马罗夫
摄影师 © 丹尼斯·科马罗夫
摄影师 © 丹尼斯·科马罗夫
摄影师 © 丹尼斯·科马罗夫
摄影师 © 丹尼斯·科马罗夫
摄影师 © 丹尼斯·科马罗夫
Need a renovation specialist?
Find verified professionals for any repair or construction job. Post your request and get offers from local experts.







