Современна квартира / Александр Тишлер / Росія - Ідеї для дому - REMONTNIK.PRO

Современна квартира / Александр Тишлер / Росія

Share:
Ця стаття також доступна на наступних мовах:🇺🇸🇷🇺🇫🇷🇩🇪🇪🇸🇵🇱🇨🇳🇮🇳🇯🇵
Оригінальний текст:
Кольорова стіна з гонконавіками в сучасній гостьовій кімнаті з великими вікнами, строгим мебллю та сучасним дизайном, ідеально підходить для міського будинку з стильним інтер'єром

Декор в стилі поп-культури, розкішні облицювання та інноваційні рішення зберігання визначають цю стильну квартиру площею 71 м² в Москві, розроблену для фінансиста та його родини. Головний дизайнер Карен Карапетян керував проектом, а студія дизайну Александра Тишлера створила функціональне та візуально привабливе простір, яке безуперечно поєднує високоякісні матеріали з художніми елементами.

Функціональна планувка з розумними рішеннями

Квартира має продуману планувку площею 71 м², максимально ефективно використовуючи простір без втрати естетики. Просторова кухня-гостьова (36,6 м²) служить серцем дому та освітлена трьома великими вікнами, наповнюючи простір природнім світлом. Кастомна кухонна стійка від італійського бренду Cesar виготовлена з керамограніту та прикрасжена текстурованими кварцевими столешницями. Інтегрована техніка, включаючи вбудований вентилятор, барне зберігання та глибокі ящики для зберігання, забезпечує безперебійну функціональність.

Квартира з тяжким характером від Александра Тишлера — інтер'єр вид 01, МоскваФото © Ольга КарапетянКвартира з тяжким характером — портретний вид 04 з кастомним меблемФото © Ольга КарапетянКвартира з тяжким характером — портретний вид 05, об'єднання гостьової кімнати та кухніФото © Ольга Карапетян

Майстерні деталі та індивідуальне меблесвітло

Гостьова кімната створена для комфорту та універсальності. Диван Milano Bedding забезпечує додаткове місце для гостей, а стінна металева полиця збільшує обсяг зберігання. Для розваг передбачена система звуку з розташуванням динаміків по стратегічних точках. У затишній зоні біля вікна знаходиться крісло MisuraEmme та стійка для вінілових пластинок, доповнена настінним баром від Александра Тишлера з ребристими скляними фронтами.

Щоб додати унікальний художній акцент, команда запросила художника Василія Матафонова з Єкатеринбургу створити кастомну панораму всередині аркової ниші, включивши слова, що мають значення для власників.

Квартира з тяжким характером — портретний вид 15, зона відпочинкуФото © Ольга КарапетянКвартира з тяжким характером — портретний вид 02, деталі меблівФото © Ольга КарапетянКвартира з тяжким характером — вид 07, кухонна стійкаФото © Ольга Карапетян

Елегантні та ефективні рішення зберігання

Холл обладнаний дзеркалом на всю висоту та зеркальною плаваючою консолью, що створюють ефект простору та забезпечують приховане зберігання. Велика вбудована гардеробна, облицьована декоративною штукатуркою та прикрашена кастомним мистецтвом, приховує побутові приналежності та спеціальне місце для багажу. Вбудована кімната з доглядовою технікою приховує пральний машину, сушилку та місце зберігання пилососа — оптимізуючи простір.

Квартира з тяжким характером — вид 08, дзеркало та консоль в холліФото © Ольга КарапетянКвартира з тяжким характером — вид 03, інтеграція зберіганняФото © Ольга Карапетян

Кухня та гостьова кімната: матеріали і функціональність

Кастомний острів Cesar — обрамлений керамогранітом та з текстурованими кварцевими столешницями — є центральним елементом відкритої планувки. Інтегрована техніка (вбудований вентилятор, барне зберігання) та глибокі ящики підтримують чистий профіль, забезпечуючи щоденну практичність. Три великі вікна створюють світловий ефект, підкреслюючи тактильний контраст між металом, каменем, штукатуркою та деревом.

Квартира з тяжким характером — вид 09, гостьова кімната з медіа-стіноюФото © Ольга КарапетянКвартира з тяжким характером — портретний вид 12, деталі стелажуФото © Ольга КарапетянКвартира з тяжким характером — вид 11, відкрита кухня та стійкаФото © Ольга КарапетянКвартира з тяжким характером — портретний вид 10, стіна і освітленняФото © Ольга Карапетян

Розкішна спальня з індивідуальними особливостями

Спальня демонструє індивідуальні вироби від італійського бренду MisuraEmme, включаючи тоновану скляну гардеробну з вертикальним освітленням та екокожані ящики для аксесуарів. Ліжко встановлене на зігнутий підсвічений панель, яка простягається в лоджію, об'єднуючи два простори.

Квартира з тяжким характером — вид 23, головна частина ліжка і панельФото © Ольга КарапетянКвартира з тяжким характером — вид 18, спальня з освітленням гардеробноїФото © Ольга Карапетян

Сучасний санвузол із спа-ефектом

Спочатку розташований в холлі, санвузол був переплановано таким чином, щоб об'єднатися безпосередньо з спальнею, збільшивши площу до 7,3 м². Тут встановлена ванна сидяча та душева головка Antonio Lupi, аккуратно вбудована в декоративну штукатурку стелі. Італійська плитка 41zero42 з мотивом пальми робить простір яскравим. Кастомна настінна раковина з підсвічуванням та дзеркальне зберігання підвищують зручність.

Квартира з тяжким характером — вид 24, раковина і зберігання в санвузліФото © Ольга Карапетян

Безшовне поєднання мистецтва та функціональності

У всіх приміщеннях художні деталі, високоякісні матеріали та розумні рішення дизайну створюють вишуканий досвід проживання. Використання декоративної штукатурки по стінах, стелям і дверях підсилює текстурну глибину, а паркет із рисунком палуби додає тепло та неперервність між спальнею і санвузлом.

З увагою до деталей студія дизайну Александра Тишлера надала вишукане, просторово ефективне житло, яке поєднує сучасні естетичні рішення з практичним міським способом життя.

Квартира з тяжким характером — портретний вид 13, перспектива коридоруФото © Ольга КарапетянКвартира з тяжким характером — вид 21, гостьова кімната з кухніФото © Ольга КарапетянКвартира з тяжким характером — портретний вид 16, стелаж для відображенняФото © Ольга КарапетянКвартира з тяжким характером — вид 26, відкрита планувка зі стійкоюФото © Ольга КарапетянКвартира з тяжким характером — портретний вид 06, високі кухонні модуліФото © Ольга КарапетянКвартира з тяжким характером — вид 17, сидіння і мистецтвоФото © Ольга КарапетянКвартира з тяжким характером — портретний вид 14, кастомний бар з ребристим скломФото © Ольга КарапетянКвартира з тяжким характером — портретний вид 19, зона відпочинку біля вікнаФото © Ольга КарапетянКвартира з тяжким характером — портретний вид 25, меблі та мистецтвоФото © Ольга КарапетянКвартира з тяжким характером — портретний вид 20, гардероб і освітленняФото © Ольга КарапетянКвартира з тяжким характером — портретний вид 27, зберігання в коридоріФото © Ольга КарапетянКвартира з тяжким характером — вид 29, загальний складФото © Ольга КарапетянКвартира з тяжким характером — вид 33, стійка і обідній стілФото © Ольга КарапетянКвартира з тяжким характером — портретний вид 28, аркова ниша з мистецтвомФото © Ольга КарапетянКвартира з тяжким характером — портретний вид 30, консоль і дзеркалоФото © Ольга КарапетянКвартира з тяжким характером — портретний вид 31, деталі декоративної штукатуркиФото © Ольга КарапетянКвартира з тяжким характером — портретний вид 38, стелаж і пластинкиФото © Ольга КарапетянКвартира з тяжким характером — портретний вид 44, бар з ребристим скломФото © Ольга КарапетянКвартира з тяжким характером — портретний вид 36, внутрішнє простір гардеробноїФото © Ольга КарапетянКвартира з тяжким характером — портретний вид 47, деталі освітлення ванноїФото © Ольга КарапетянКвартира з тяжким характером — портретний вид 45, дзеркало в холліФото © Ольга КарапетянКвартира з тяжким характером — портретний вид 41, аксесуари ванноїФото © Ольга КарапетянКвартира з тяжким характером — вид 34, загальний відкритий планФото © Ольга КарапетянКвартира з тяжким характером — портретний вид 32, зберігання в коридоріФото © Ольга КарапетянКвартира з тяжким характером — портретний вид 35, високий кухонний шафФото © Ольга КарапетянКвартира з тяжким характером — портретний вид 39, ниша стелажуФото © Ольга КарапетянКвартира з тяжким характером — портретний вид 46, аксесуари ванноїФото © Ольга КарапетянКвартира з тяжким характером — портретний вид 37, декоративна штукатурка стіниФото © Ольга КарапетянКвартира з тяжким характером — портретний вид 40, об'єднання спальни і лоджіїФото © Ольга КарапетянКвартира з тяжким характером — портретний вид 43, кут гостьової з мистецтвомФото © Ольга Карапетян

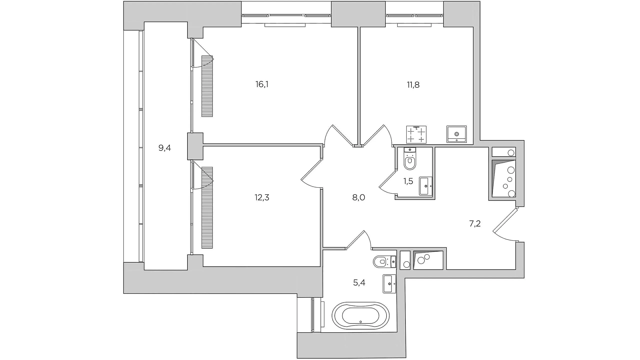
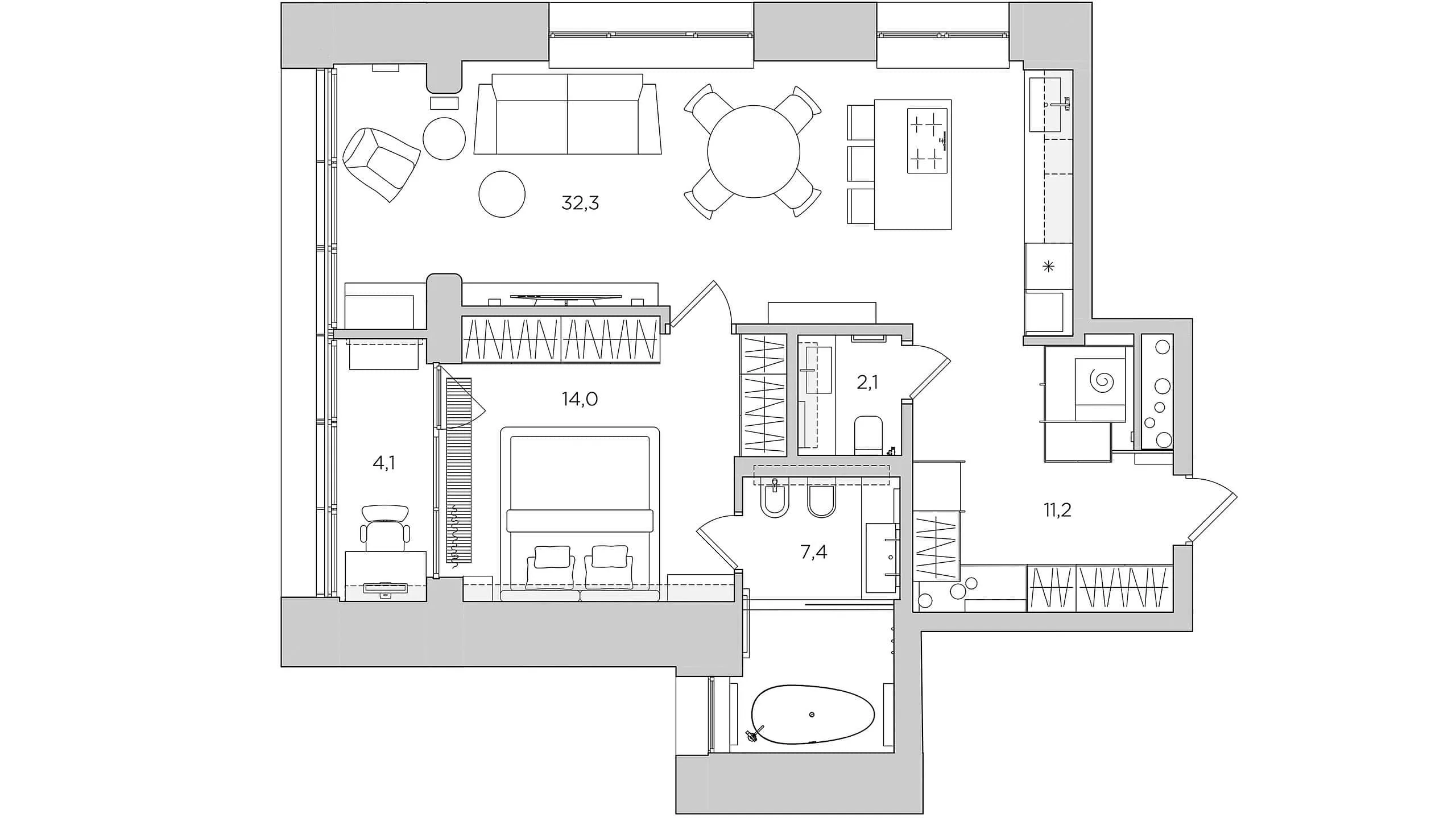
Плани: до і після

Квартира з тяжким характером — план після оптимізаціїПлан — ПісляКвартира з тяжким характером — план до перебудовиПлан — До

Need a renovation specialist?

Find verified professionals for any repair or construction job. Post your request and get offers from local experts.

You may also like