Дизайнер відремонтувала міні-квартиру 20 м² за два місяці та 700 тис. руб.
Комфортне місце для життя та роботи
У цій квартирі живе молодий чоловік, якому важливо іноді працювати з дому. Він попросив дизайнера Ольгу Воденєву організувати кухонну зону, робоче місце, спальню та систему зберігання.
У результаті вдалося спроектувати комфортне місце для життя та роботи. Розглянемо детальніше, як саме.

- Місце: м. Муріно
- Площа: 20 кв. м
- Кімнати: 1
- Бюджет: 700 тис. руб.
- Дизайн: Ольга Воденєва
- Стиліст: Анна Королєва
- Фото: Максим Максимов
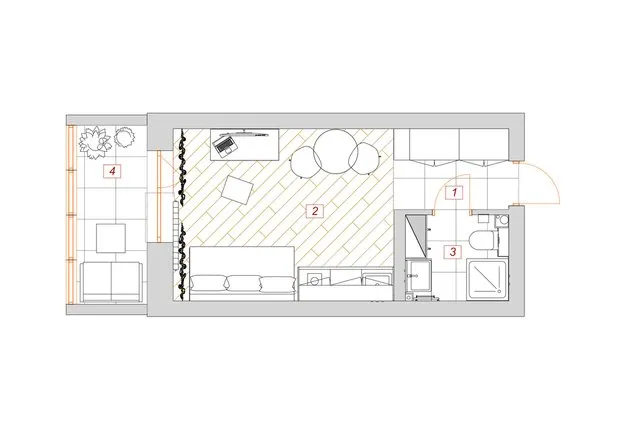
ПлануванняЧерез обмежену площу студії вирішили зняти перегородку, яка розділяє коридор і житлову кімнату. Простір зонували за допомогою різних типів підлоги та корпусної меблі.
КухняКухня виготовлена на замовлення і обладнана фурнітурою з доводчиками Boyard. Вона розміщена в компактній ниші синього кольору, всередині якої встановлено вбудовані шафи та техніку.
Дзеркало біля фартука візуально розширює простір, а природні відтінки з акцентами роблять інтер’єр більш індивідуальним.


Під столешницею в нижніх шафах вмонтовано раковину та шафу з смітником, а також холодильник, мікрохвильову печь і варочну панель на дві конфорки. Верхні шафи складаються з 90 см у висоту і оснащені полицями для зберігання посуду, сушилкою та витяжкою.
Стіни та плинтуси фарбуються стійкою до миття матовою фарбою Tikkurila, що імітує шовковисту поверхню.

Входова зонаУ входовій зоні встановили гардеробний шкаф до стелі: праву частину використали для зберігання верхньої одягової та взуття, а ліву – для аксесуарів на полицях і білизни в комоді. На антресолях можна приховати побутову хімію та внесезонні предмети.
На підлозі у коридорі лежить керамограніт під бетон з вкрапленнями а-ля терраццо.
БалконЗона відпочинку розміщена на балконі – тут стоїть м’який диван, на якому зручно пити каву та любити вид з останнього поверху.
СпальняВ якості спальні використано розкладний диван з IKEA, який може перетворитися в двоспальну ліжко. У ньому є ящики для зберігання подушок і одягів.

ВаннаВанна кімната облицьована плиткою під бетон, а на підлозі лежить той самий керамограніт, що і у входовій зоні – це створює єдиний стиль. Також тут вдалося встановити пральну машину, розмістивши її під керамічною раковиною неживого білого відтінку.


Need a renovation specialist?
Find verified professionals for any repair or construction job. Post your request and get offers from local experts.
You may also like
Більше статей:
Фото інтер’єрів, які набрали більше всього лайків у 2022-му
Найстильніші квартири до 45 м², які сподобалися вам у 2022 році
Топ-10 найкращих квартир, в яких живуть дизайнери
Важні поради з декору, які виявилися найкориснішими у 2022 році
Найцікавіші статті 2022 року
Вибір редакції: інтер’єри, які сподобалися нам найбільше у 2022 році
Топ-5 інтер'єрів, які наші герої вирішили оформлення власними силами в 2022 році
Топ-6 кухонь без дизайнера, які сподобалися вам у 2022 році