Дизайнер оформила студію 34 м² для себе: вийшов маленький пентхаус із меблями з фанери
Класні ідеї для невеликої квартири
Цю однушку 34 м² у Волгограді дизайнер Анна Букаєва оформила для себе. Вона хотіла жити в найменшій квартирі на найвищому поверсі. І тепер вона в шарті називає своє творіння «пентхаусом». Анна обладнала все з повним комфортом для життя: тут є повноцінна ванна кімната, ліжко, стіл для гостей і ще багато чого. Подивимось, як вона змогла все зробити.

- Місце: Волгоград
- Метраж: 34 кв. м
- Кімнати: 1
- Дизайн: Анна Букаєва
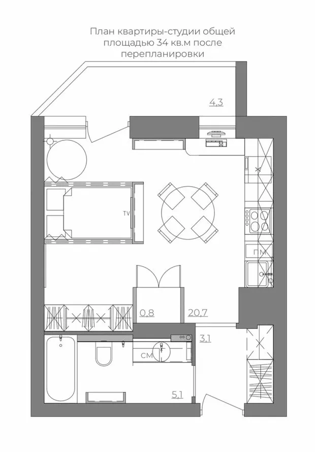
Планування
Квартира має типове планування студії. Під час ремонту побудовано опорні стіни для вбудованих систем зберігання, що дозволило зонувати простір.
Кухня з спальней розділяється вбудованим шафою, який підсвічений теплим світлом. З боку ліжка до нього прикріплено телевізор, а з боку кухні — відсік для посуду.

Оздоблення і декор
У гостьовій кімнаті, прихожій і ванній стіни фарбуються кольором темно-синього і зеленого відтінку Deep space blue і Pale lime від бренду Little Greene. На підлозі всюди лежить ламінат, а меблі придбавали з урахуванням розмірів.
Декор у квартирі наведений французьким і природним стилем (крісло в духу 60-х, сине-зелені стіни, біле фактурне панно, булыжник у раковині). Панно з штукатурки Анна створила в співпраці з колегою, постер для лоджії привезли з Парижа, а тарілки на стіну розписала сама.
У кімнаті і ванній висять великі дзеркала, чудово розширюють простір і візуально удовольняють приміщення.





Зберігання
Системи зберігання виготовлено на замовлення переважно з бюджетних матеріалів. Шафи виконані по всій довжині стіни, а найбільшим із них є шафа-кладова для побутового інвентарю.




Кухня
Ізюмом квартири є кухня: корпус і стілешниця з ДСП, фасади з фанери, фартук із прозорого скла.
Тут знаходиться компактний холодильник для одного-двох людей, а також посудомийна машина, вентилятор і духовка — словом, все необхідне.


Ванна кімната
Ванна кімната має витягнуту форму і становить п’ять квадратів у величині. Простір розділено на три частини: саму ванну, туалет із шафою для зберігання, а також накладну раковину із пралильною машиною і тумбою. Завершує концепцію настінне кругле дзеркало.



Need a renovation specialist?
Find verified professionals for any repair or construction job. Post your request and get offers from local experts.
You may also like
Більше статей:
5 порад із архітектора для створення комфорту в маленькій площі
Як бюджетно організувати інтер’єр будинку в селі: хитрощі від експерта
Величезний пейзаж: 10 вражаючих гостьових з вікнами від стелі до підлоги
8 дерев'яних кухонь, від яких так і виходить тепло та затишок
На будь-який смак і колір: 6 продуманих гардеробних
6 красивих ідей оформлення балконів, які захочеться повторити
Як круто вдати малогабаритну квартиру: показуємо на реальному прикладі
Заміна IKEA: класні товари для дитинського кімнати