Перепланування студії в стилі лофт: як це було?
Дизайнери вигадали, як розділити простір на функціональні зони, і при цьому залишити відчуття простору
Недавно ми розповідали про інтер'єр квартири за проектом студії VizDiz, а сьогодні трохи детальніше зупинимемося на плануванні. Для молодої замовниці, яка любить влаштовувати вечірні вечори, профі передбачив і загальне простір кухні-гостинної, і ізольовану спальню. А щоб дівчина відчувала себе максимально комфортно, для гостей навіть передбачили окремий санвузел.
Що ми знаємо про цю квартиру?Метраж63 кв. мКімнати2СтильлоФТ

Об'єднали простір
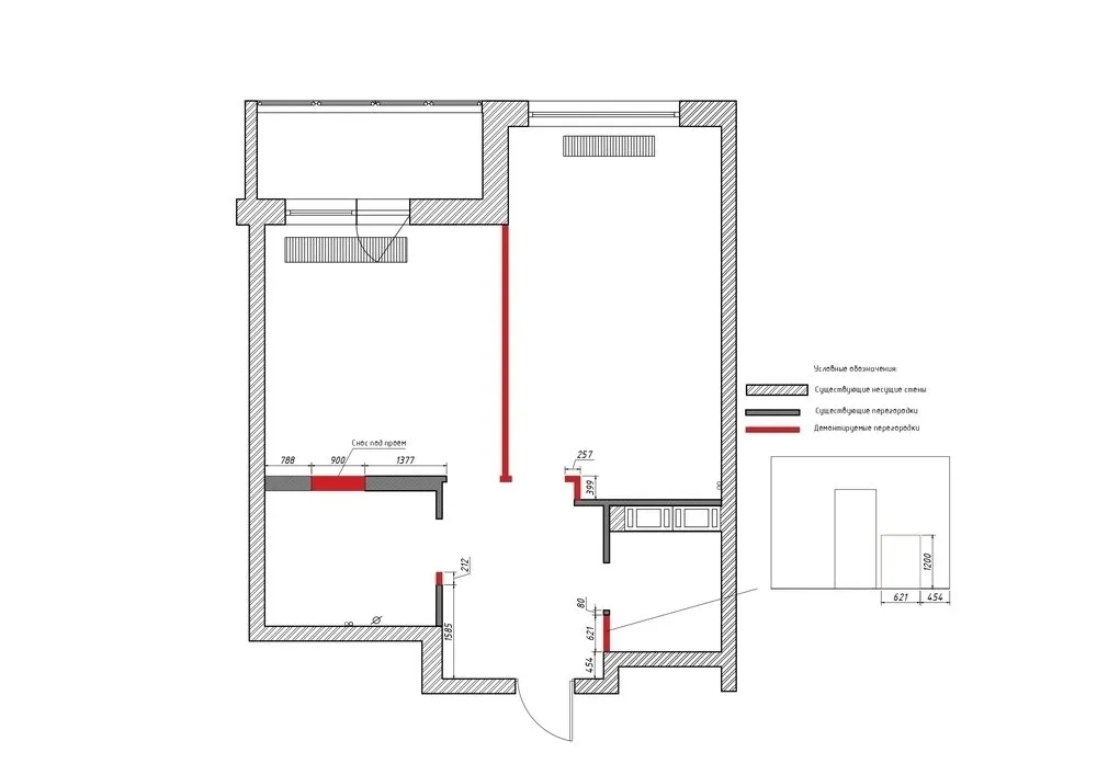
Стену між кухнею-гостинною і спальню зруйнували і замінили на скляну перегородку. Візуально вона розділяє простір, але при цьому не дробить його на маленькі окремі приміщення. А коли розсувні двері відкриті, зберігається відчуття єдиного простору.
За бажанням можна навіть залишити гостей на ніч у гостиній — скляну перегородку можна закрити щільною шторою.

Оформили гістевий санвузел
Спочатку планування передбачало лише один санвузел — до нього можна було потрапити з коридору. Але, оскільки площа дозволяла (більше шести квадратних метрів), його розділили на два. Тепер у господарський санвузел можна потрапити зі спальні, а в гістевий — з прихожої.
Спроектували гардеробну
Її розташували відразу під час входу в квартиру — тут зручно зберігати верхню і несезонну одяг. Також у прихожій знайшлося місце для ще одного шафі і вмонтованої в стіну обувниці.

Що вийшло в результаті?
Need a renovation specialist?
Find verified professionals for any repair or construction job. Post your request and get offers from local experts.
You may also like
Більше статей:
Як без витрат оновити стару квартиру в Швеції
Ще одна ідея для прикрашання дому до Нового року: приклад із Іспанії
Думка професіонала: як обрати безпечні матеріали для дитинської?
Часто задавані питання: як швидко прикрасити дачний участок до Нового року?
Що купити в IKEA, поки діють знижки?
Ремонт квартири: найгірші рішення
7 ярих квартир, які вам сподобаються
Що дизайнер «Квартирного питання» зробив у кімнаті 16 м²: до і після