Comment transformer une petite maison en un logement élégant et pratique : 7 idées de professionnels
Solutions simples et efficaces issues du projet d'un professionnel
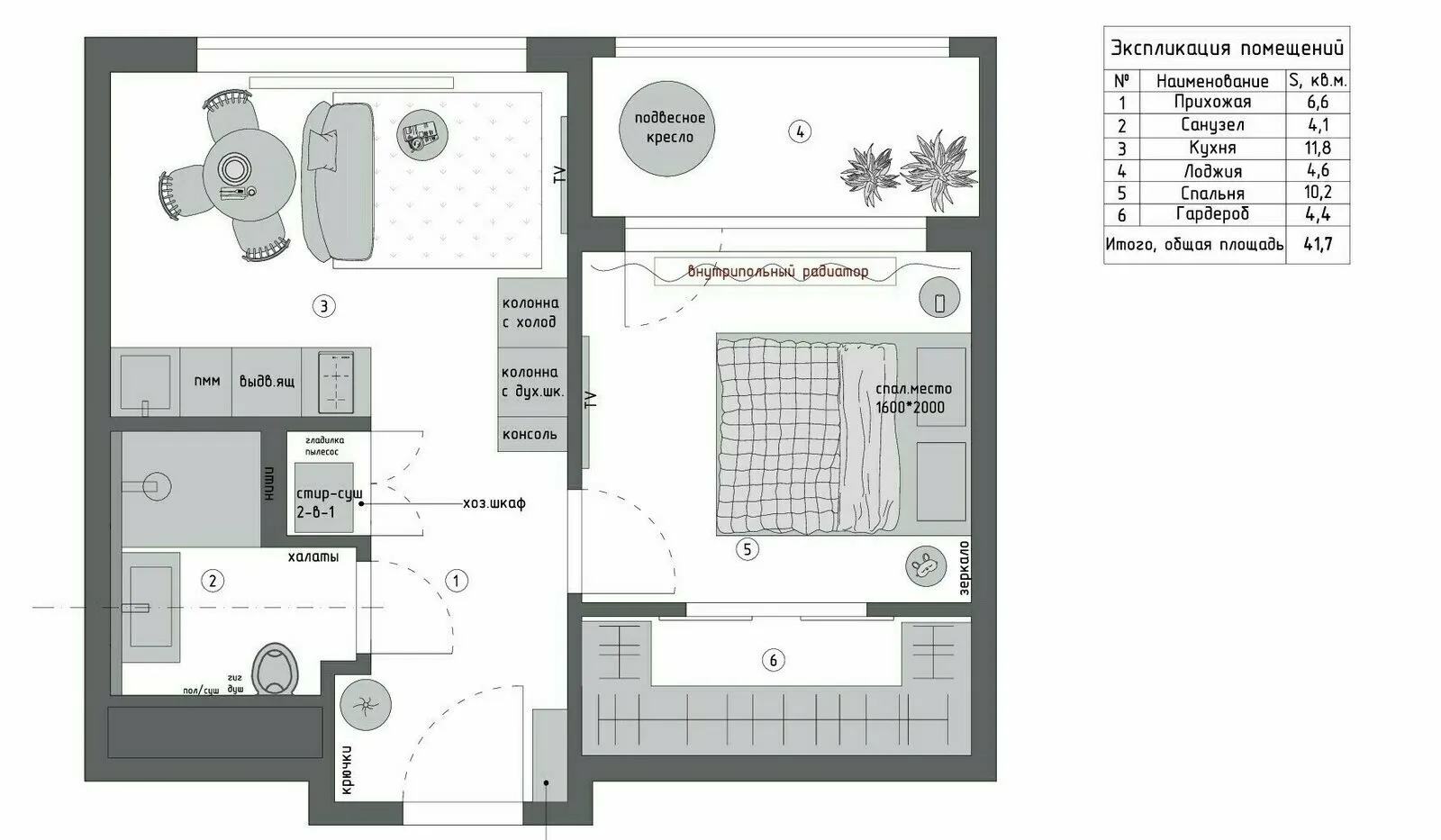
Organiser l'espace dans un petit appartement est une tâche non simple. Mais avec une approche créative et un design soigneusement conçu, même les petits espaces peuvent être transformés en un logement chaleureux et fonctionnel. Nous vous proposons ici des idées remarquables que nous avons observées dans un studio européen conçu par l'architecte Evgenia Akimova — elles vous aideront à optimiser votre espace et à rendre votre appartement confortable.
Teintes clairesPour les espaces de petite surface, les teintes claires et pastel conviennent parfaitement. Elles donnent un effet d'air et de légèreté, et amplifient visuellement l'espace. Pour vivre l'ambiance de cet espace, on y a ajouté une touche vive – une peinture dans la zone de la table à manger. La tapisserie texturée de la meublure souple et le textile doux apportent du volume et du confort.
Minimalisme dans le décorDans les espaces restreints, évitez l'accumulation d'objets et de décoration. Il vaut mieux choisir quelques accessoires élégants qui mettent en valeur votre goût sans surcharger l’espace. Pour cette salle à manger, on a choisi quelques touches colorées : une peinture vive originale et une touche de verdure fraîche.
Utilisation efficace de l'espaceOn a agrandi l’ouverture entre le couloir et la cuisine-salle à manger, ce qui permet de loger les colonnes avec l’équipement. Cette solution amplifie visuellement l’espace et permet une utilisation rationnelle de la surface, libérant le mur au-dessus du plan de travail de l’armoire encombrante.
Zonage de l’espaceDéliminez les zones fonctionnelles d’une pièce à l’aide de différents principes de design. Dans la salle à manger, on a marqué la zone de la table à manger et du téléviseur grâce à des décorations en placo, tandis que le groupe de canapés a été souligné par un tapis texturé. Dans la chambre, l’espace de sommeil est visuellement défini par une couleur verte des murs, et la garde-robe est séparée grâce à une cloison de verre légère.
Meubles compactsLe choix des meubles est un point clé dans un appartement de petite surface. Optez pour des éléments réduits : un canapé compact, une table basse ronde sur un support haut, des meubles à pieds minces, des tables basse minimalistes et des commodes simples.
Miroirs et surfaces vitréesLes miroirs peuvent visuellement élargir l’espace et ajouter de la lumière. Placez-les dans les endroits où ils reflètent la lumière naturelle. Dans cette chambre, le miroir près du lit crée une sensation de profondeur, de légèreté et d’ouverture.
Éclairage soigneusement conçuUn éclairage bien choisi est essentiel pour assurer l’harmonie dans un design. Utilisez des lustres, des lampes de bureau et des lampes de table pour créer un éclairage en plusieurs couches. Mettez l’accent sur certaines zones – cela permet de visuellement étendre les frontières de la pièce.

Organiser l’espace dans un appartement de petite surface exige de la créativité et une approche attentive. N’hésitez pas à expérimenter et trouver des solutions uniques pour votre intérieur.
Need a renovation specialist?
Find verified professionals for any repair or construction job. Post your request and get offers from local experts.
You may also like
Plus d'articles:
Avant et après : 5 transformations impressionnantes de logements « détruits »
5 idéaux intéressants pour décorer une salle de bain
5 ennuyeuses salles de bains qui vous inspireront pour des rénovations
Comment décorer une cuisine dans un petit espace : 6 idées
6 solutions de design inspirantes vues dans une charmante studio de 35 m²
Sanitaires atmosphériques de 4,4 m² avec salle de blanchisserie derrière un rideau
«Avant et après» : comment une blogueuse a transformé une deux-pièces détruite en appartement élégant
6 mètres au lieu d’une cuisine détruite : comment créer un espace cosy dans une maison en brique